تصميم مخططات تغذية المياه لفيلا سكنية - الرياض

تفاصيل العمل

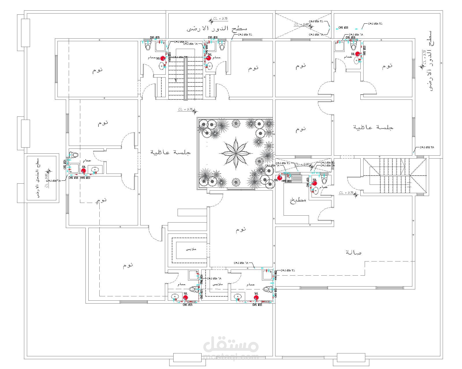
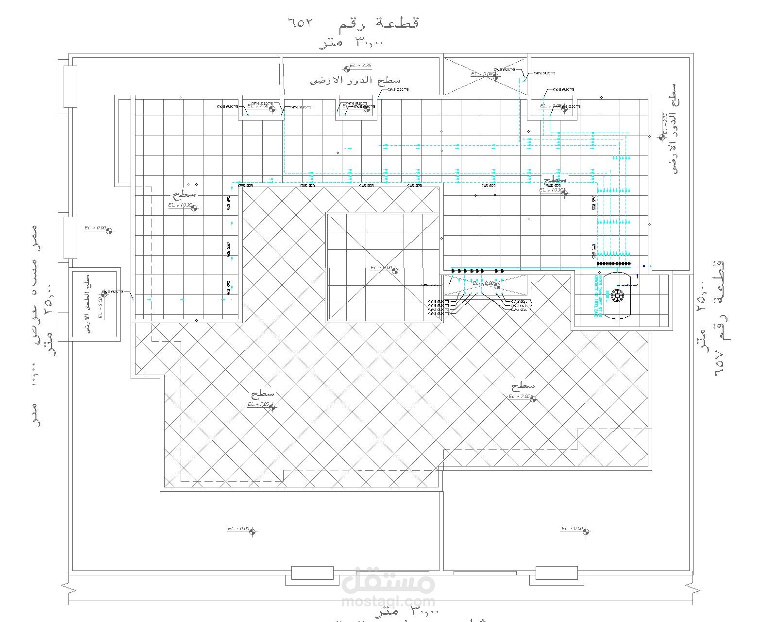
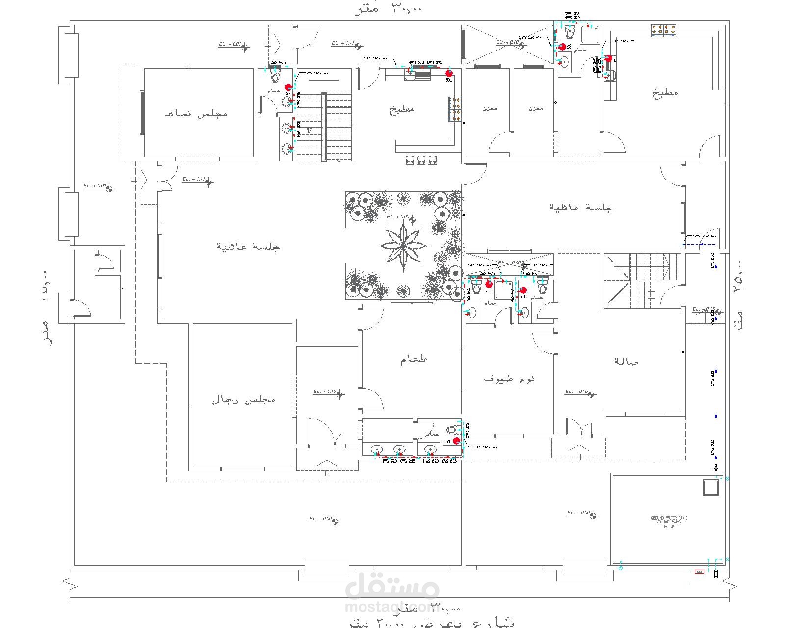
تصميم مخططات تغذية المياه لفيلا سكنية باستخدام برنامج الأوتوكاد واعتمادا على الكود السعودي للبناء والكود العالمي للأعمال الصحية .

بطاقة العمل

اسم المستقل
عدد الإعجابات
0
عدد المشاهدات
646
تاريخ الإضافة
تاريخ الإنجاز
المهارات