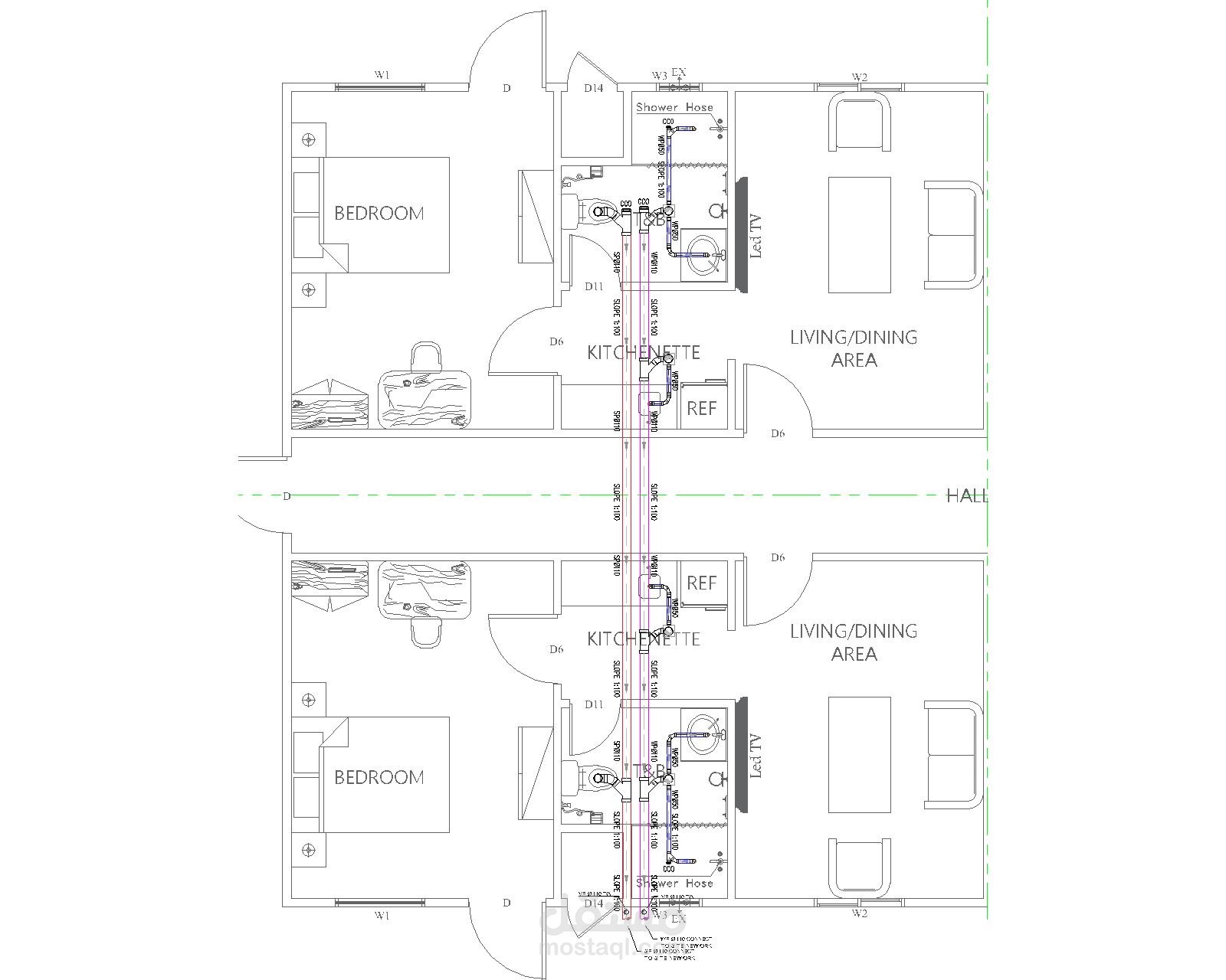
تصميم مخططات الصرف الصحي لمشروع مكون من 120 مبنى - المنطقة الشرقية

تفاصيل العمل

تصميم مخططات الصرف الصحي لمشروع يتكون من 120 مبنى عمل الحسابات المناسبة بالاعتماد على كود البناء السعودي و الكود العالمي للأعمال الصحية .

بطاقة العمل

اسم المستقل
عدد الإعجابات
0
عدد المشاهدات
736
تاريخ الإضافة
تاريخ الإنجاز
المهارات