الرئيسية
المستقلين
عمر ق.
معرض الأعمال
اطلب عمل مماثل
Villa Working Drawings
تفاصيل العمل
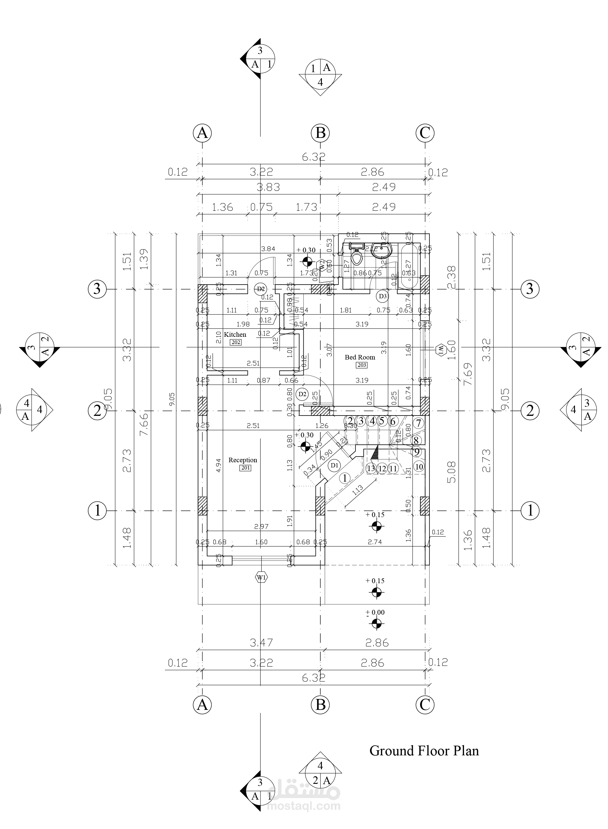
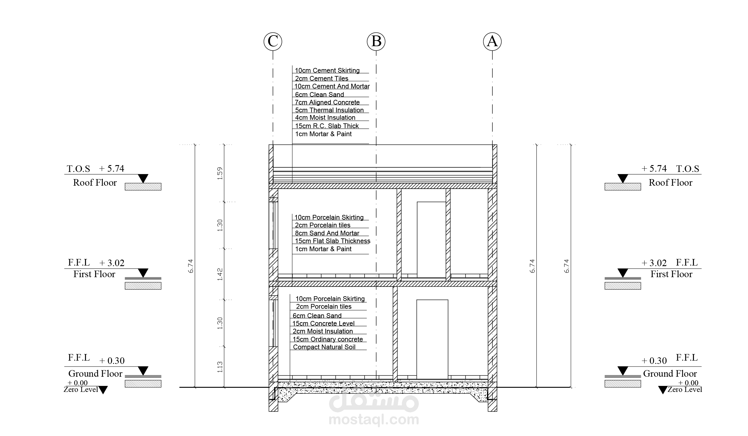
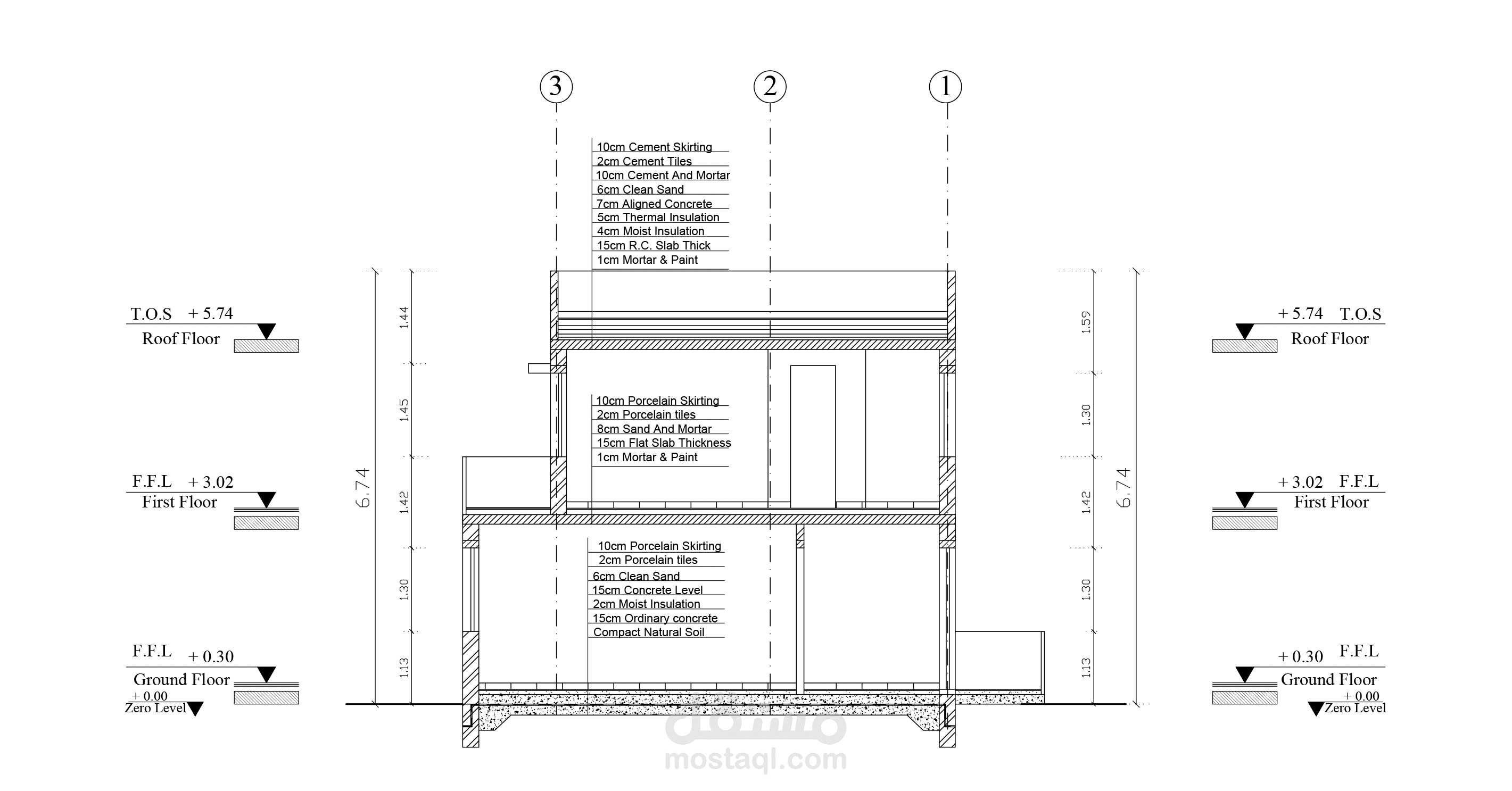
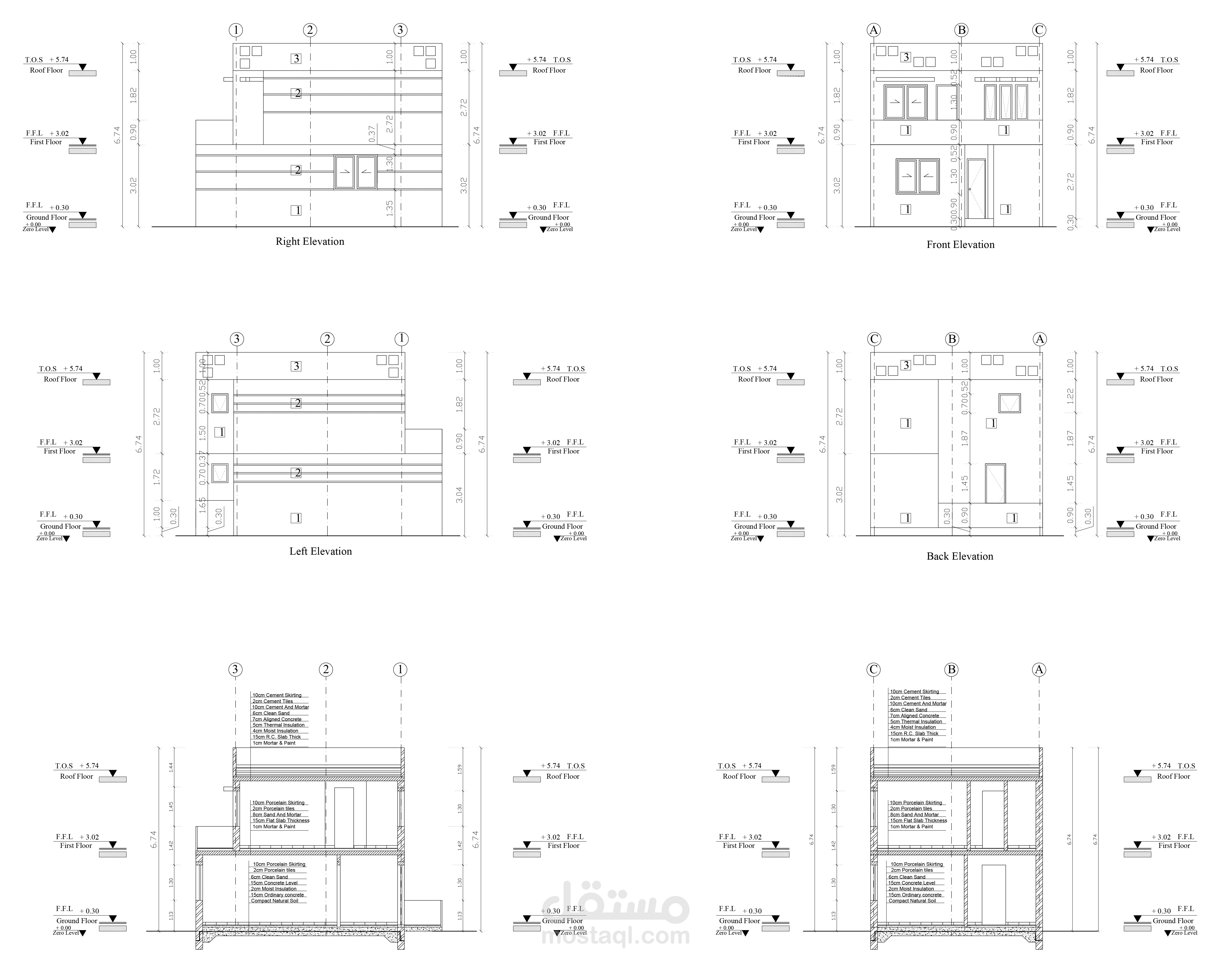
رسومات تنفيذية ( معماري - كهرباء - صحى ) لفيلا مكونة من دورين
بطاقة العمل
اسم المستقل
عمر ق.
عدد الإعجابات
0
عدد المشاهدات
360
تاريخ الإضافة
02/09/2020
تاريخ الإنجاز
31/05/2019
المهارات
أوتوكاد
×