الرئيسية
المستقلين
Nour S.
معرض الأعمال
اطلب عمل مماثل
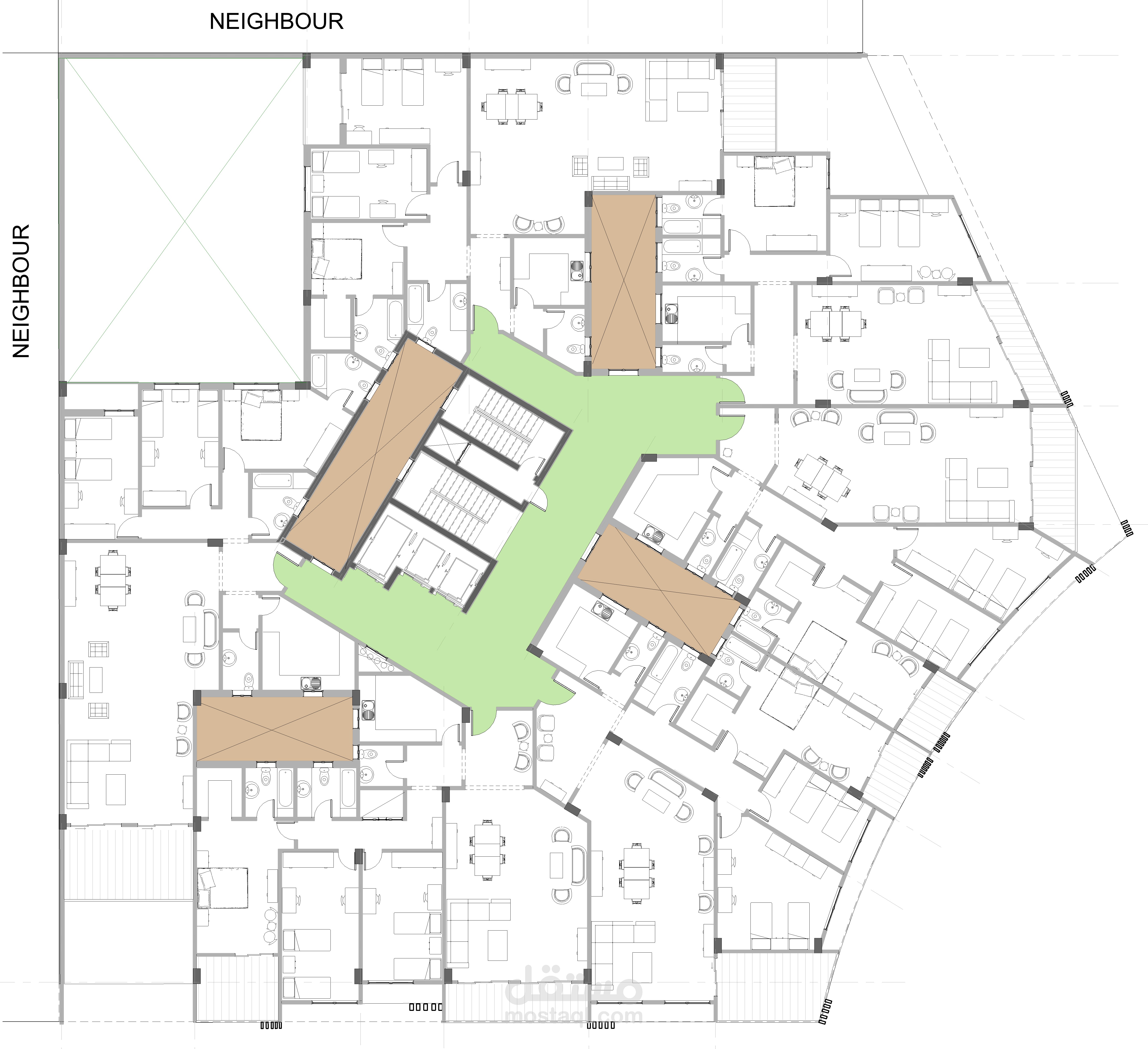
RESIDENTIAL AND COMMERCIAL BUILDING AT VINII SQUARE
تفاصيل العمل
تصمصم معماري كامل لعماره سكنية بالدقي -الجيزة -مصر
معاينة
بطاقة العمل
اسم المستقل
Nour S.
عدد الإعجابات
0
عدد المشاهدات
232
تاريخ الإضافة
22/08/2020
المهارات
ريفيت
فوتوشوب
لوميون
×