تفاصيل العمل

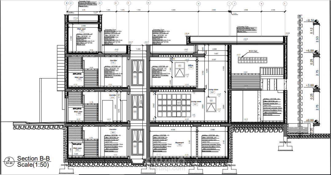
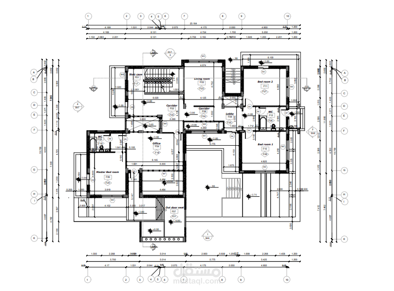
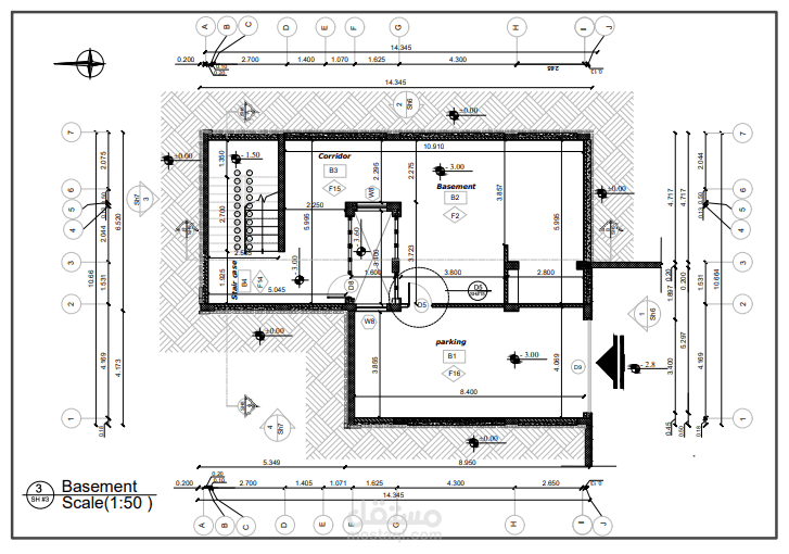
رسم مخططات تنفيذية:

-مخططات مساحة

-الموقع العام

-المخططات بالأبعاد و الأثاث

-المقاطع الطولية مفصلة للبناء و التفاصيل المعمارية.

بطاقة العمل

اسم المستقل
عدد الإعجابات
0
عدد المشاهدات
270
تاريخ الإضافة
المهارات