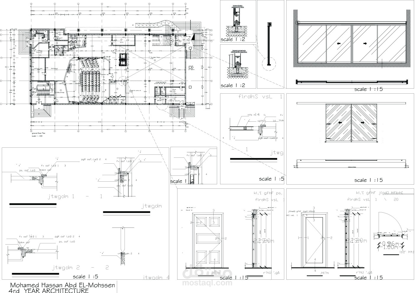
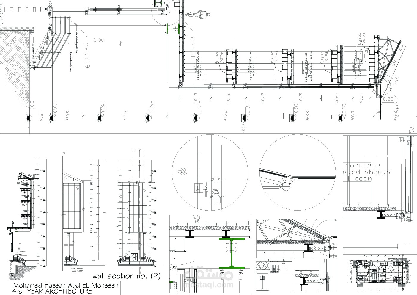
رسومات تنفيذية -لمشروع مكتبة عامة

تفاصيل العمل

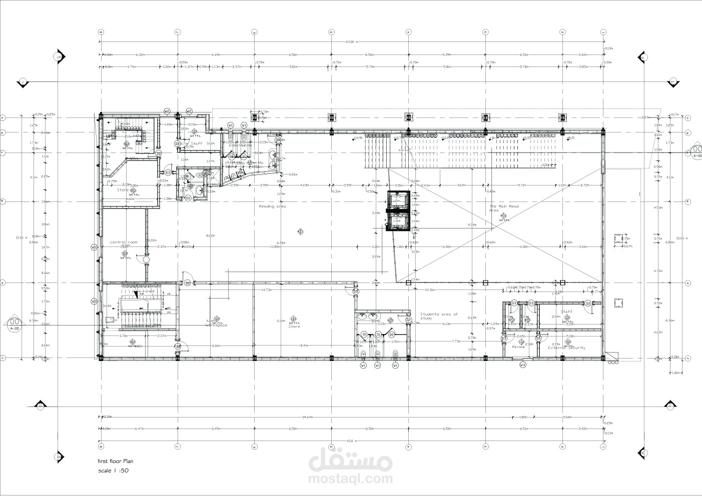
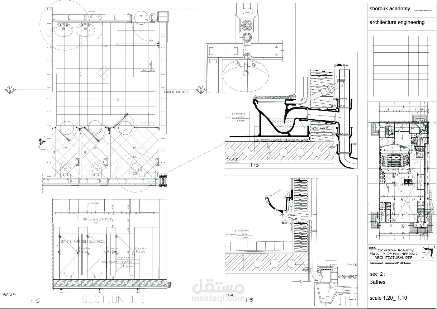
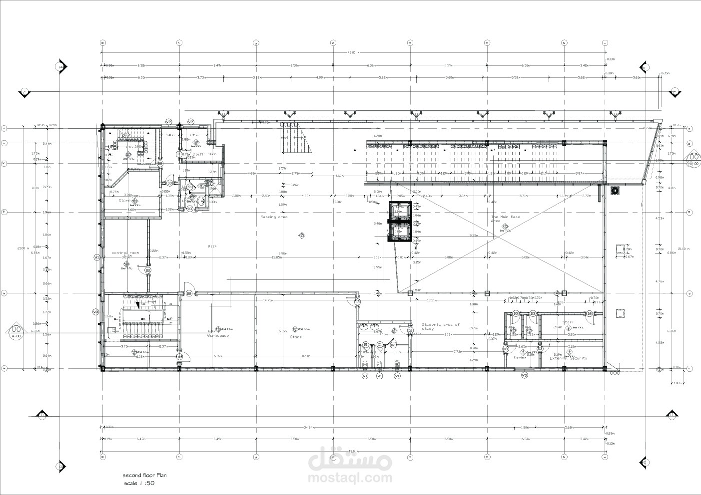
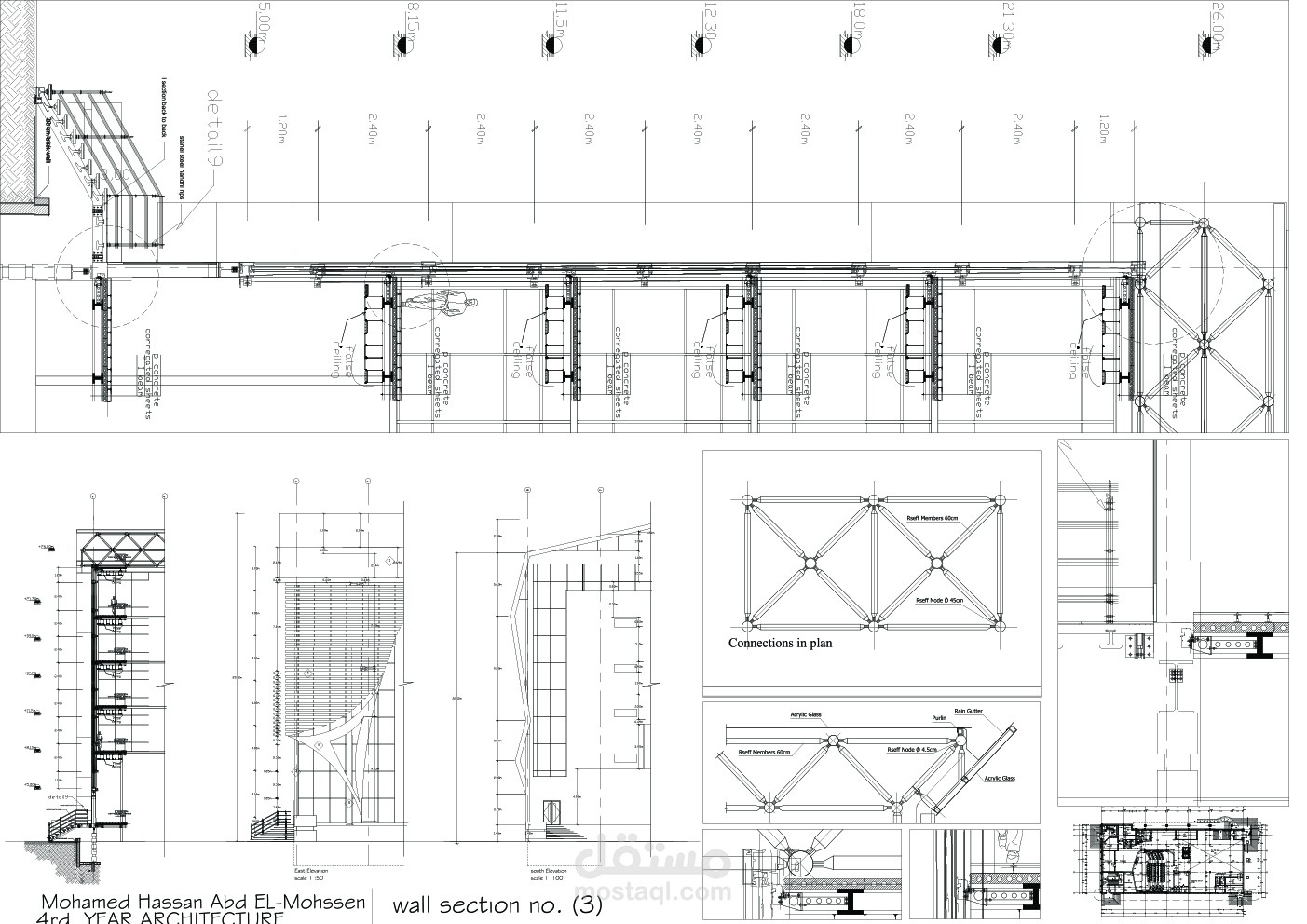
تم عمل التصميم المعماري بداية من الفكرة وحتى الوصول لأدق التفاصيل بالرسومات التنفيذية الخاصة بالمشروع

بطاقة العمل

اسم المستقل
عدد الإعجابات
5
عدد المشاهدات
1337
تاريخ الإضافة
تاريخ الإنجاز
المهارات