الرئيسية
المستقلين
Jasmin S.
معرض الأعمال
اطلب عمل مماثل
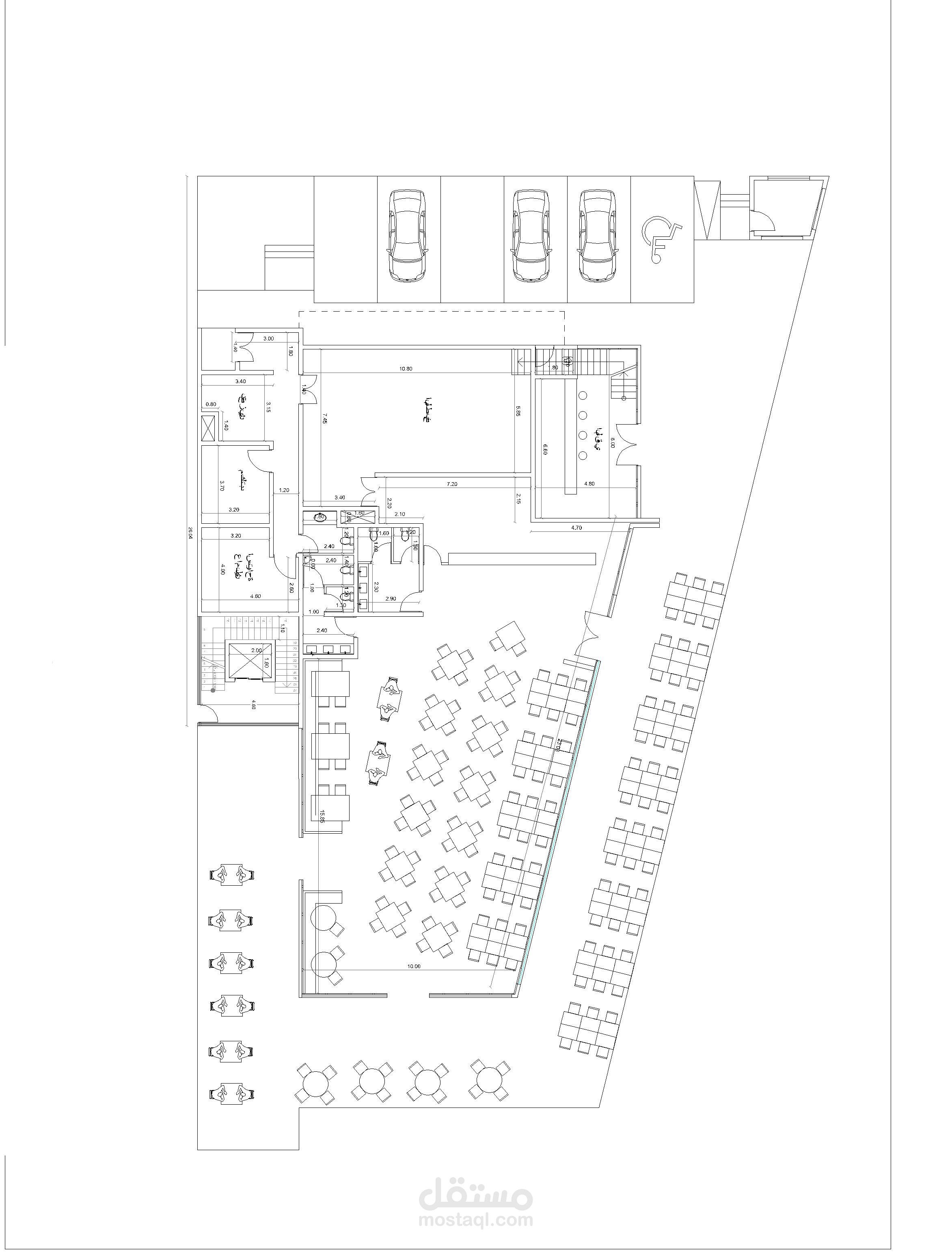
تصميم مطعم
تفاصيل العمل
مطعم مطل ع ساحل البحر الابيض المتوسط بمدينة الخمس بليبيا
بطاقة العمل
اسم المستقل
Jasmin S.
عدد الإعجابات
0
عدد المشاهدات
149
تاريخ الإضافة
10/11/2019
تاريخ الإنجاز
10/11/2019
المهارات
تصميم 3D
البناء المعماري
الفكرة التصميمية
تصميم الأثاث
فوتوشوب
الهندسة
×