تفاصيل العمل

هذا المشروع عبارة عن تصميم فيلا سكنية بأسلوب عصري، مع التركيز على إبراز التفاصيل المعمارية والإضاءة الطبيعية في الواجهة الخارجية.

تم العمل على إخراج رندرات خارجية نهارية وليلية لإظهار التصميم بأفضل شكل ممكن، بالإضافة إلى لقطات داخلية توضح توزيع المساحات والأجواء الداخلية.

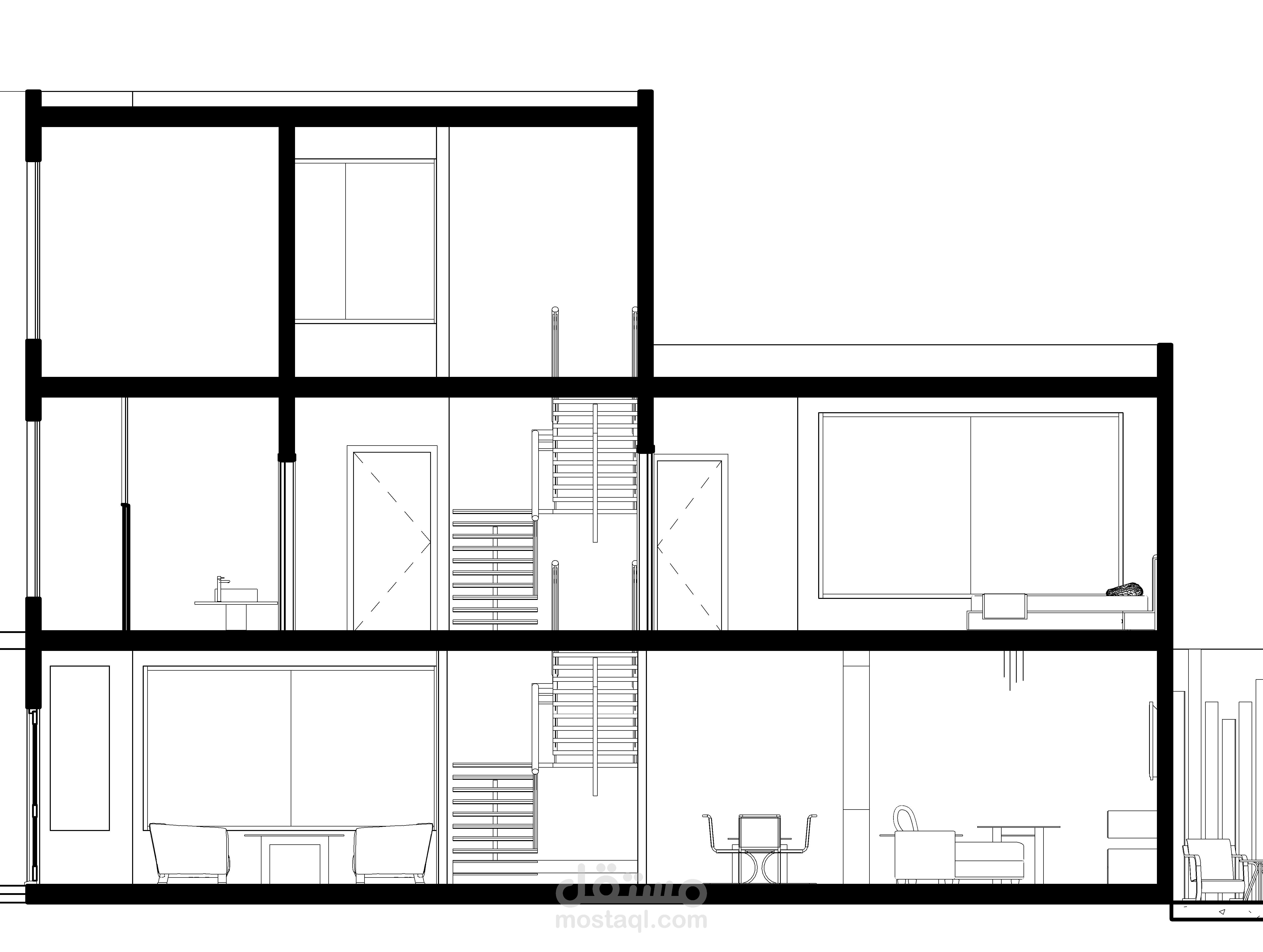
يتضمن المشروع أيضاً عرض قبل وبعد لإظهار مراحل تطوير التصميم، مع مجموعة من المخططات المعمارية (مساقط، واجهات، ومقاطع) لشرح المشروع بشكل متكامل.

البرامج المستخدمة:

Revit | Lumion | Photoshop

بطاقة العمل

اسم المستقل
عدد الإعجابات
0
عدد المشاهدات
1
تاريخ الإضافة
تاريخ الإنجاز
المهارات