تفاصيل العمل

Headline: Bridging the Gap Between Concept and Construction

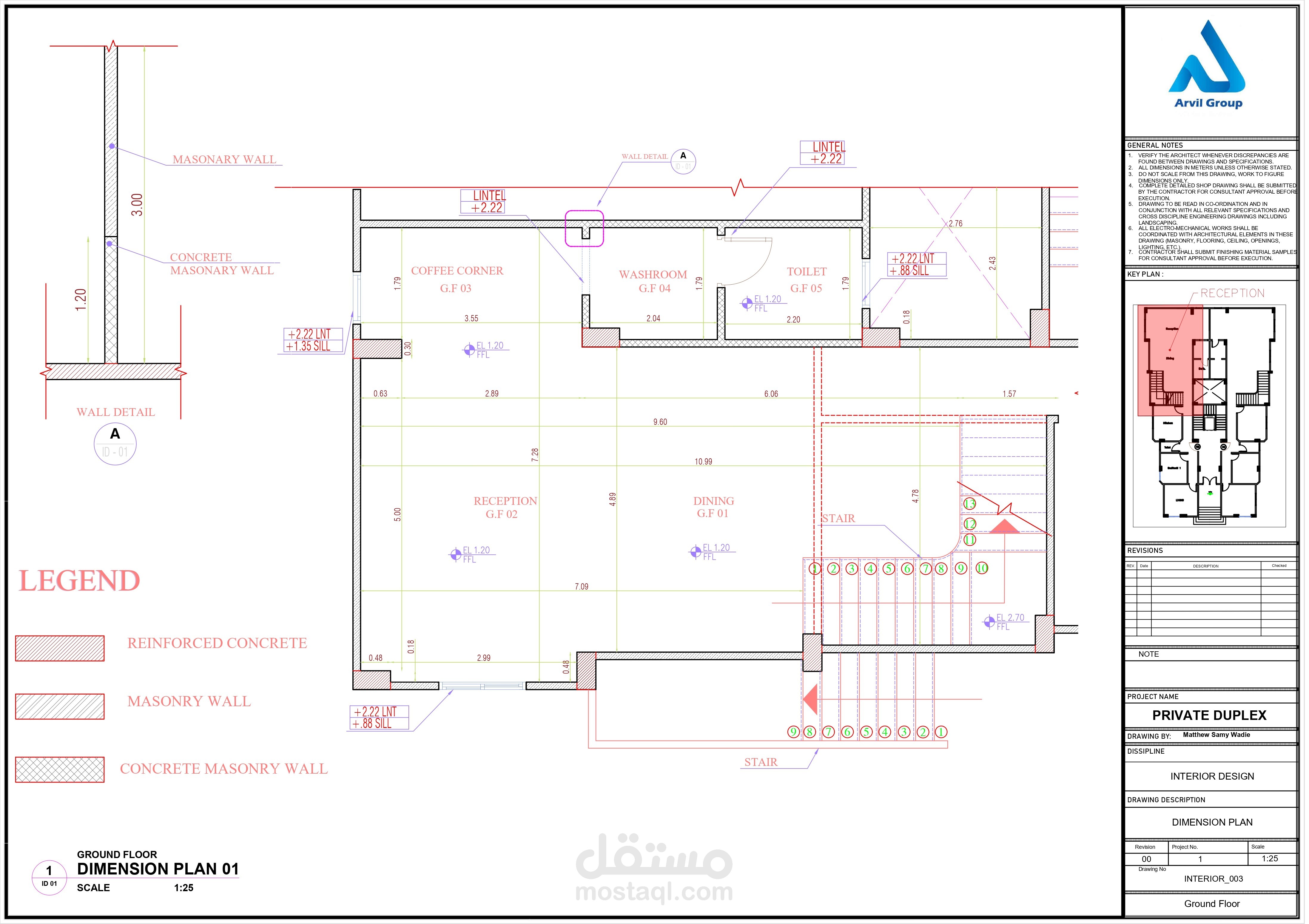
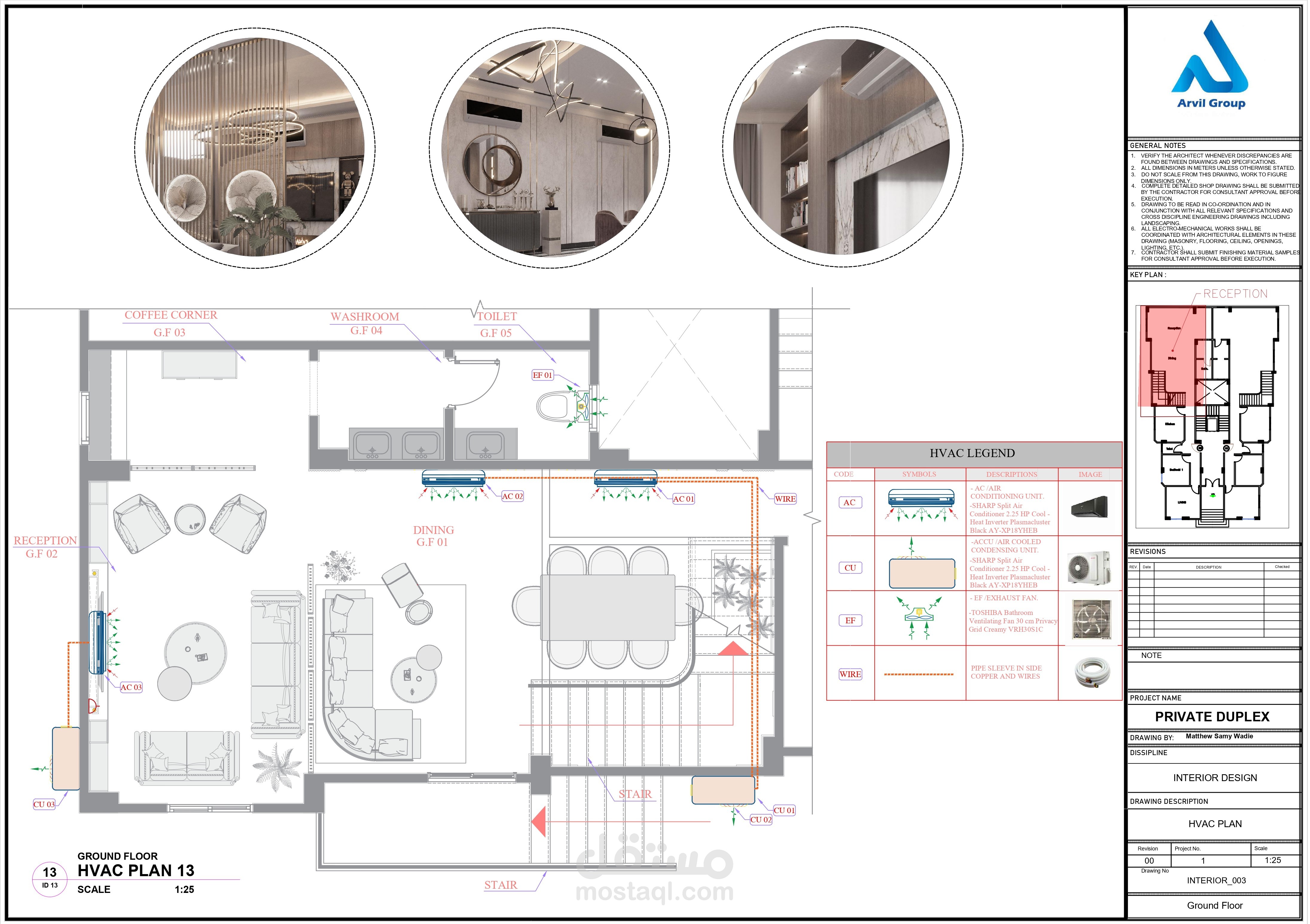
"I am pleased to present the complete Shop Drawing package for a high-end duplex residential project. My role involved translating the initial design intent into precise, execution-ready technical blueprints. By focusing on detailed sections, material specifications, and millwork integration, I ensured that every architectural element—from custom furniture to spatial layouts—is perfectly aligned for seamless on-site implementation."

بطاقة العمل

اسم المستقل
عدد الإعجابات
0
عدد المشاهدات
8
تاريخ الإضافة
تاريخ الإنجاز
المهارات