تفاصيل العمل

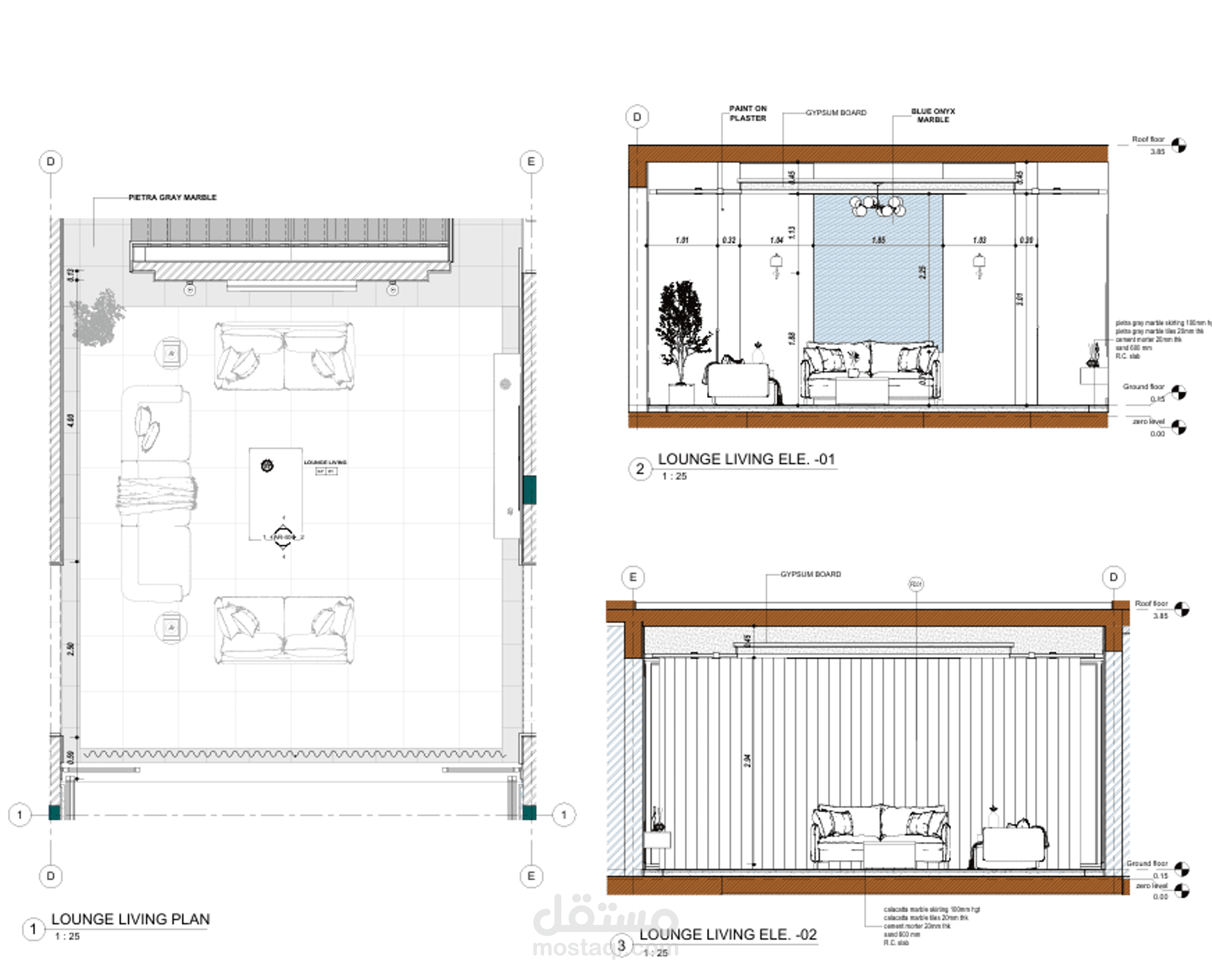
Designed a private residential villa with a focus on comfort, functionality, and modern aesthetics. The project involved developing a complete design from initial concept to detailed drawings.

The layout was carefully planned to ensure efficient space utilization and a smooth flow between spaces, while maintaining privacy and visual harmony.

The design reflects a balance between elegant architectural elements and practical living needs, tailored to suit the client’s lifestyle and the local context.

بطاقة العمل

اسم المستقل
عدد الإعجابات
0
عدد المشاهدات
12
تاريخ الإضافة
تاريخ الإنجاز
المهارات