تفاصيل العمل

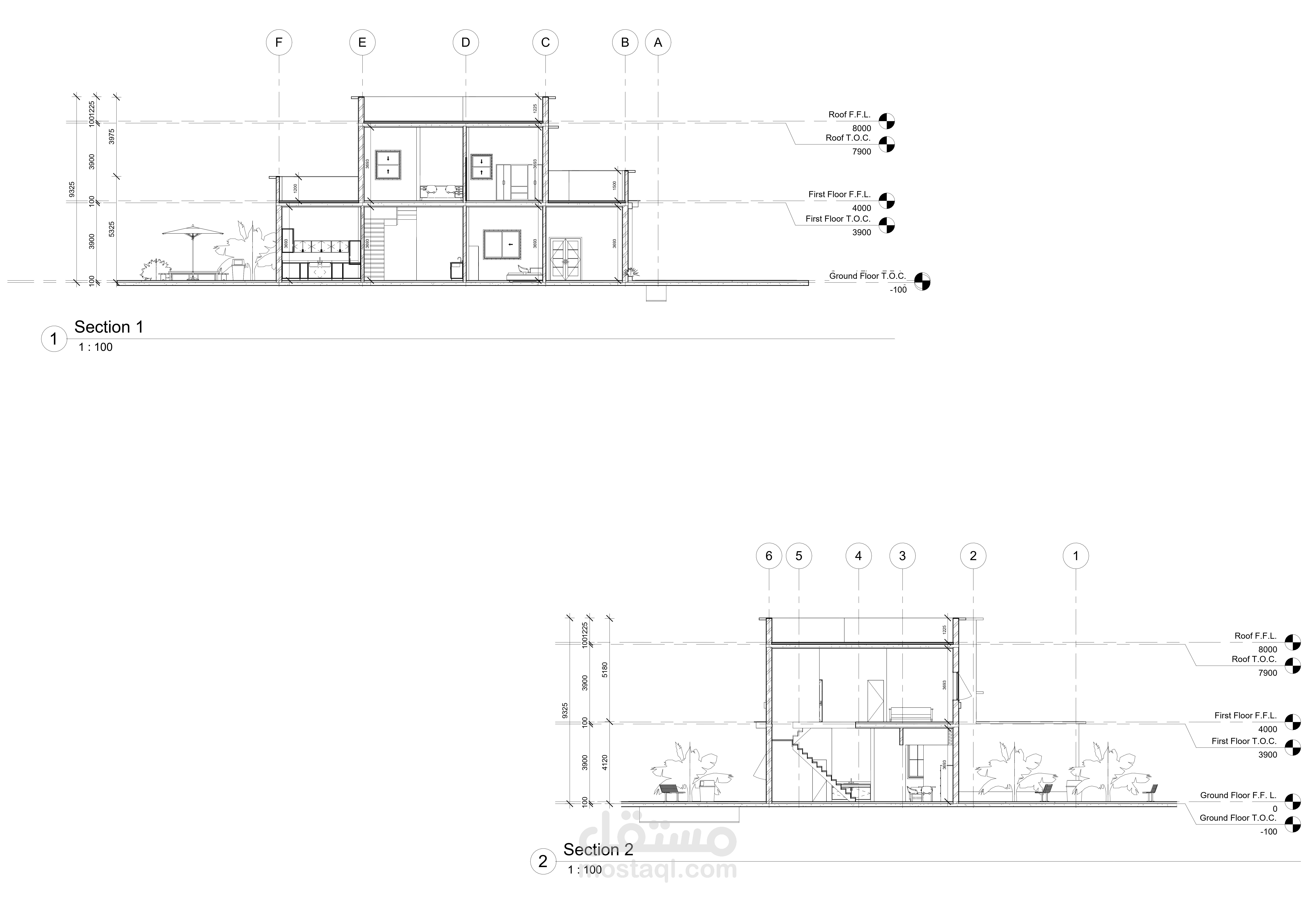
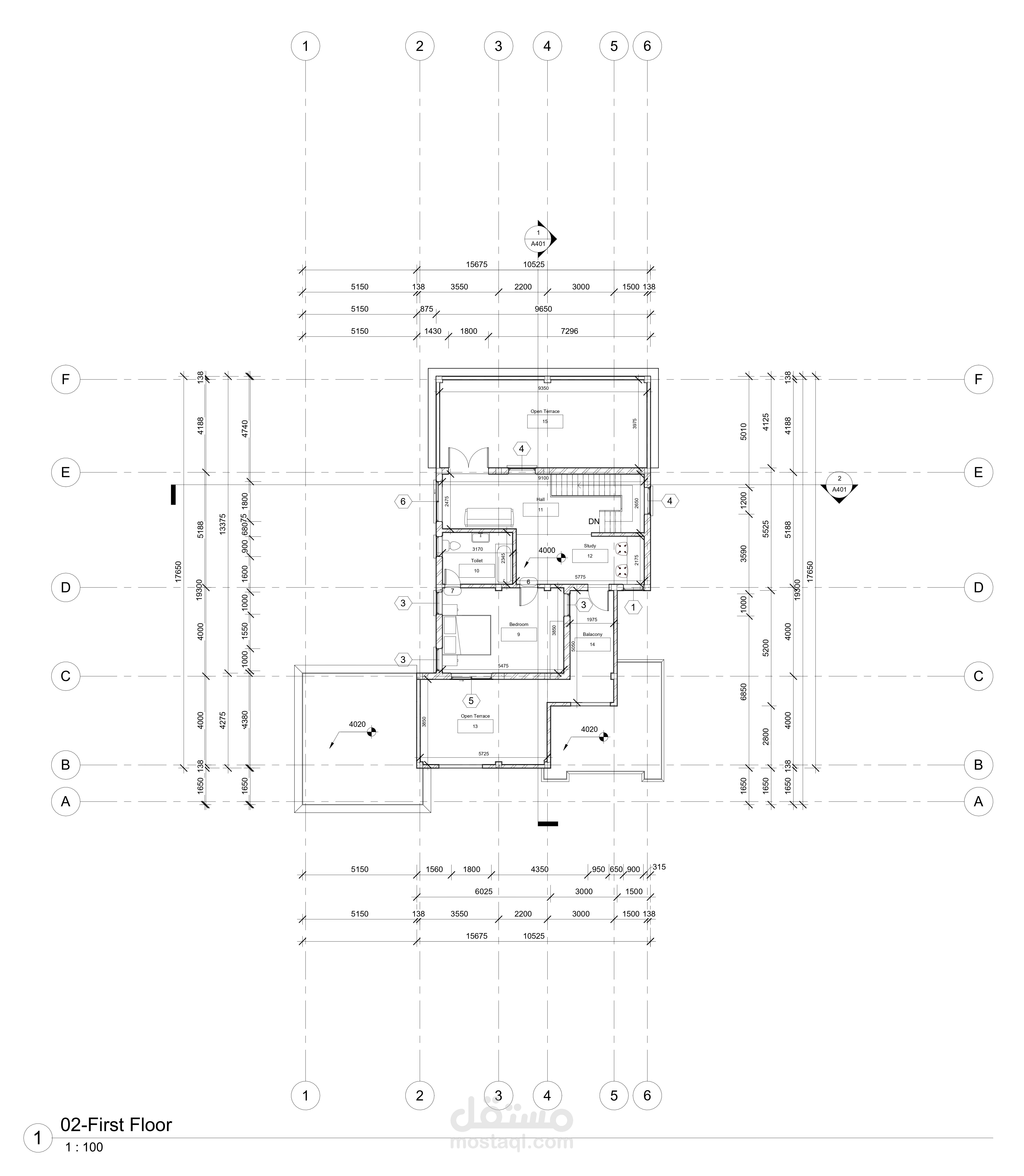
فيلا سكنية حديثة مكونة من طابقين تم تصميمها بتخطيط واضح وعملي يحقق الراحة وسهولة الحركة داخل الفراغات. يضم الطابق الأرضي المساحات المعيشية الرئيسية المرتبطة بالحديقة ومدخل الفيلا، بينما يضم الطابق العلوي المساحات الخاصة مثل غرف النوم مع شرفات وتراسات تسمح بدخول الإضاءة الطبيعية والتهوية الجيدة. يعتمد التصميم على خطوط معمارية نظيفة وتوازن في الكتل لتحقيق بيئة سكنية مريحة وأنيقة.

بطاقة العمل

اسم المستقل
عدد الإعجابات
0
عدد المشاهدات
7
تاريخ الإضافة
المهارات