تفاصيل العمل

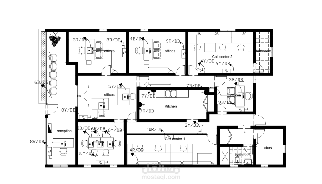
Scope of Work: • Lighting layout & lux calculation using DIALux EVO

• Power layout design

• Load schedule preparation

• 3-Phase lighting panel shop drawing

• Circuit distribution & load balancing

• Breaker sizing & single line diagram

Design Objectives: ✔ Uniform illumination for workstations

✔ Optimized phase load distribution

✔ Efficient and safe power design

Tools: AutoCAD – DIALux EVO

بطاقة العمل

اسم المستقل
عدد الإعجابات
0
عدد المشاهدات
7
تاريخ الإضافة
المهارات