تفاصيل العمل

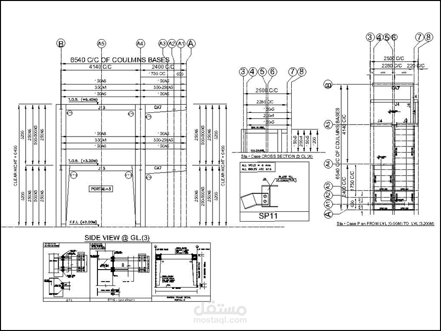
قمت بتصميم مبنى مكاتب صغير بنظام الميزانين ملحق بالمبنى الرئيسي لصالح شركة STC بالدمام، شمل المشروع تصميم الإطارات والميزانين والسلالم الصغيرة، بالإضافة إلى التحليل الإنشائي وحساب الأحمال طبقاً للكود السعودي للبناء (SBC). تم تنفيذ التحليل والتصميم باستخدام برامج SAP2000 وIDEA StatiCa وRAM Connection وCFS لضمان الأمان والكفاءة وسهولة التنفيذ.

I designed a small mezzanine office building, attached to the main building, for STC in Dammam, Saudi Arabia. The project included the design of frames, mezzanines, and small staircases, along with structural analysis and load calculations in compliance with the Saudi Building Code (SBC). The analysis and design were carried out using SAP2000, IDEA StatiCa, RAM Connection, and CFS, ensuring safety, efficiency, and constructability.

بطاقة العمل

اسم المستقل
عدد الإعجابات
0
عدد المشاهدات
5
تاريخ الإضافة
المهارات