الرئيسية
المستقلين
Noura A.
معرض الأعمال
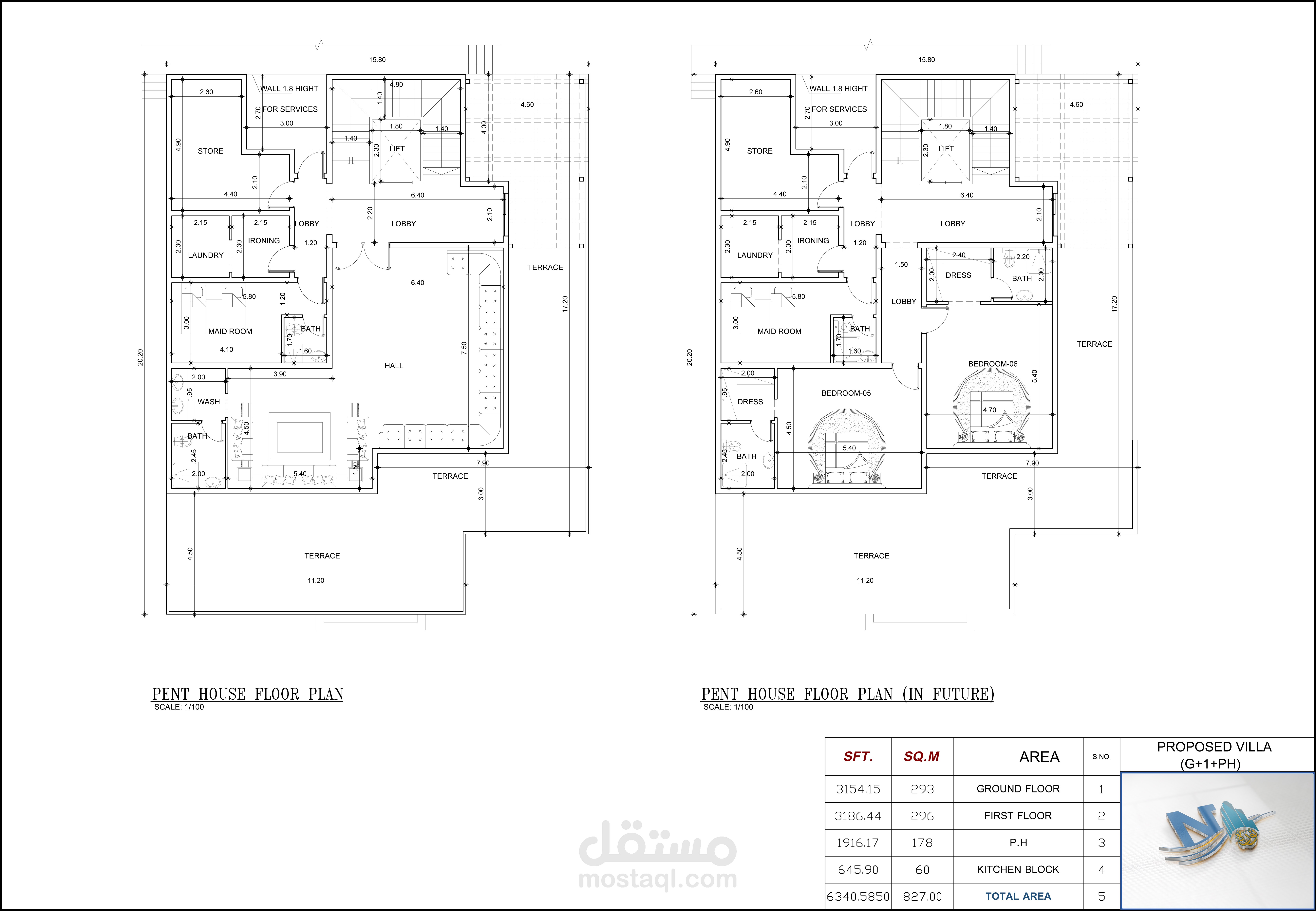
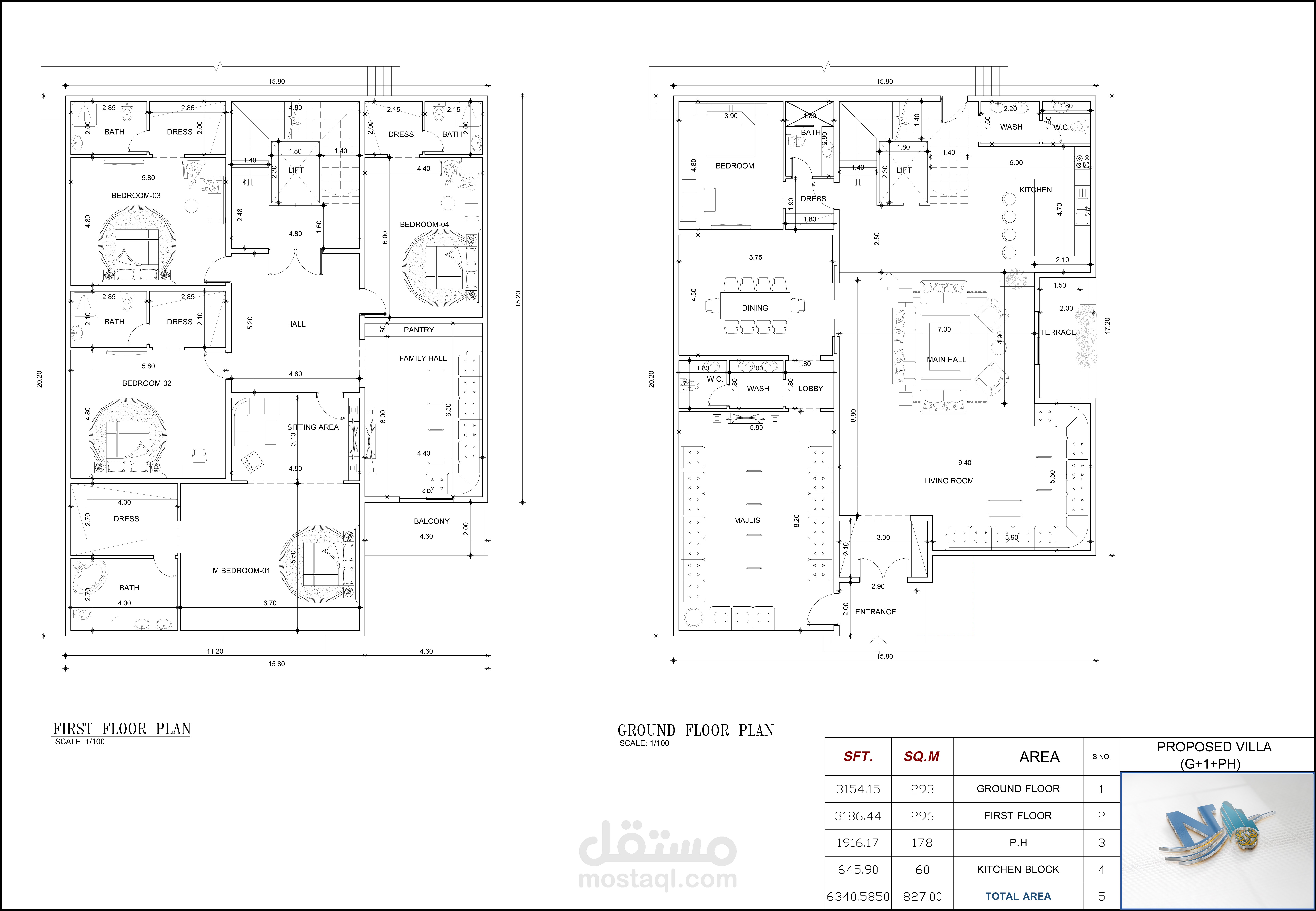
فيلا في قطر
معرض الأعمال
اطلب عمل مماثل
تفاصيل العمل
طابق أرضي - طابق أول - طابق البنتهاوس
بطاقة العمل
اسم المستقل
Noura A.
عدد الإعجابات
3
عدد المشاهدات
771
تاريخ الإضافة
10/10/2019
تاريخ الإنجاز
06/10/2019
المهارات
تصميم 3D
3ds Max
البناء المعماري
الفكرة التصميمية
التصميم الإبداعي
أوتوكاد
الهندسة
×