تفاصيل العمل

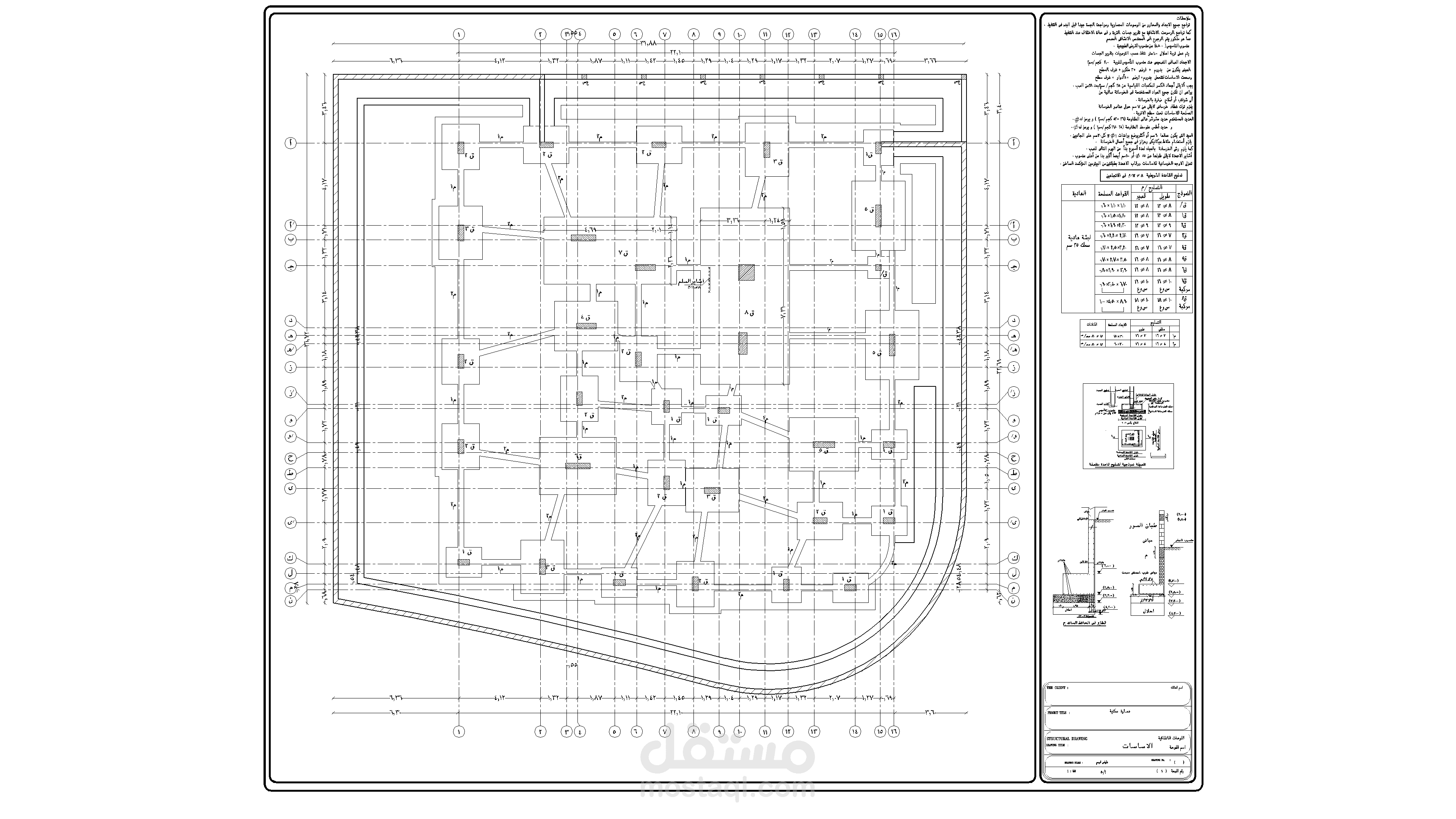
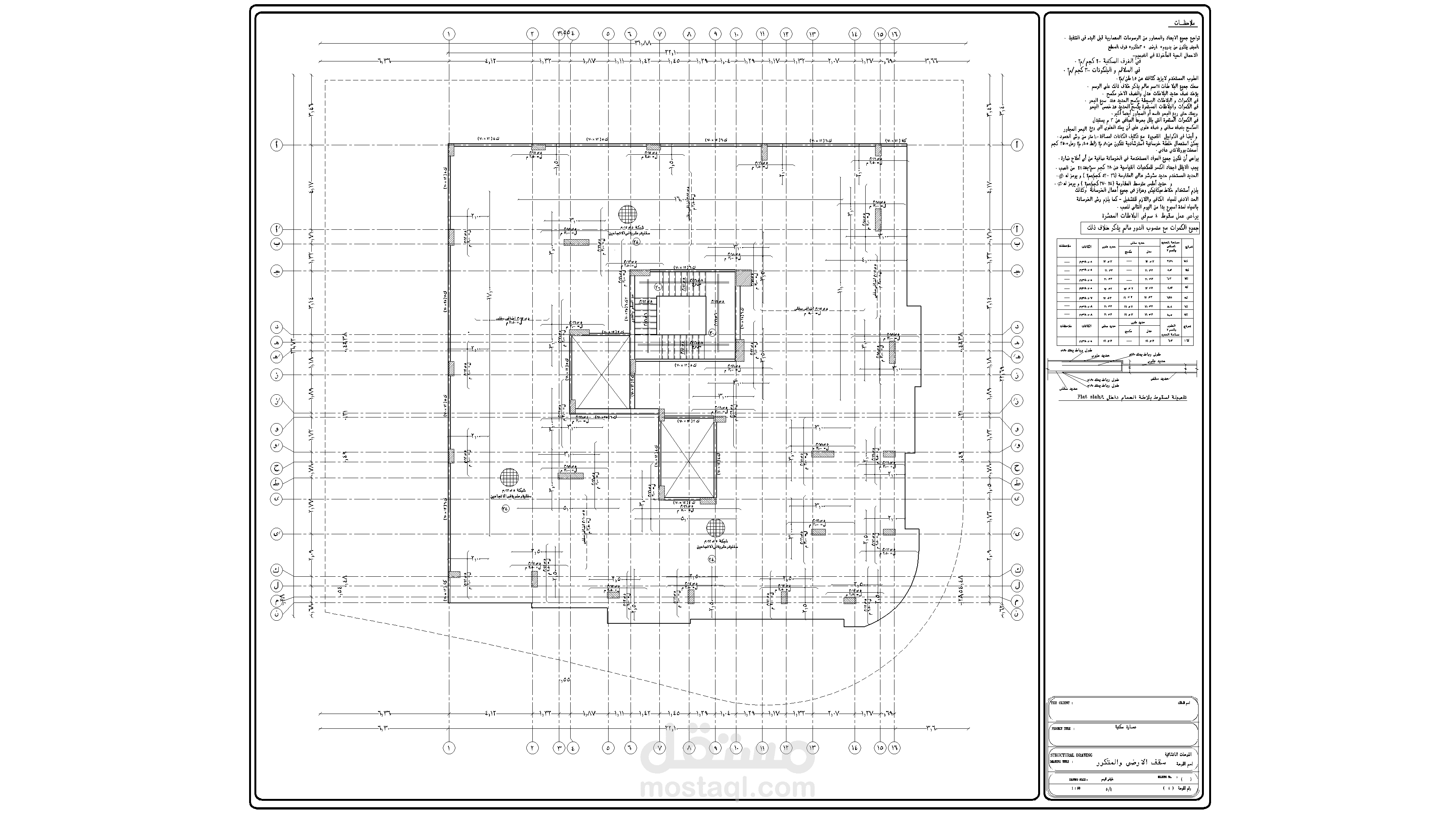
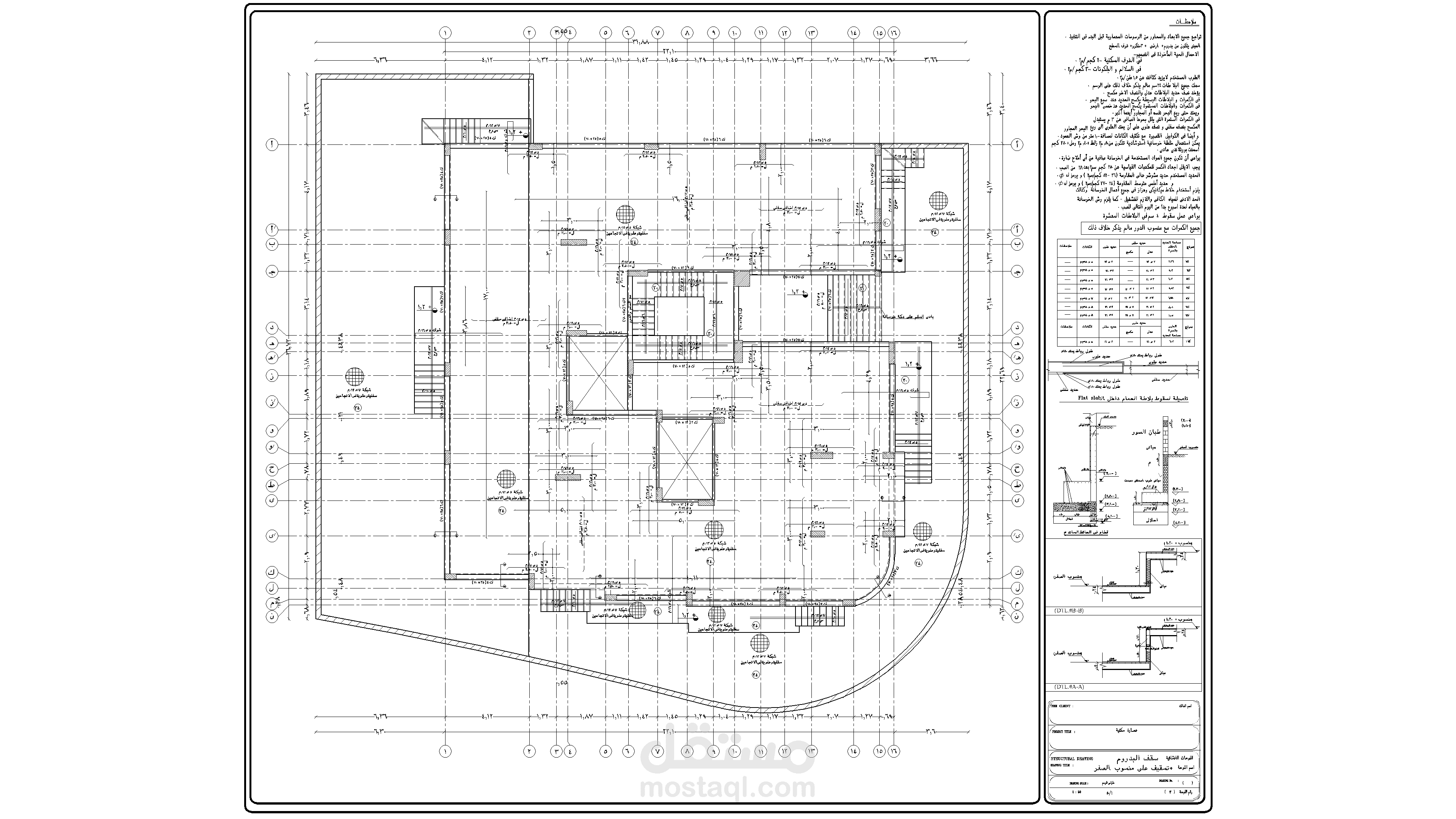
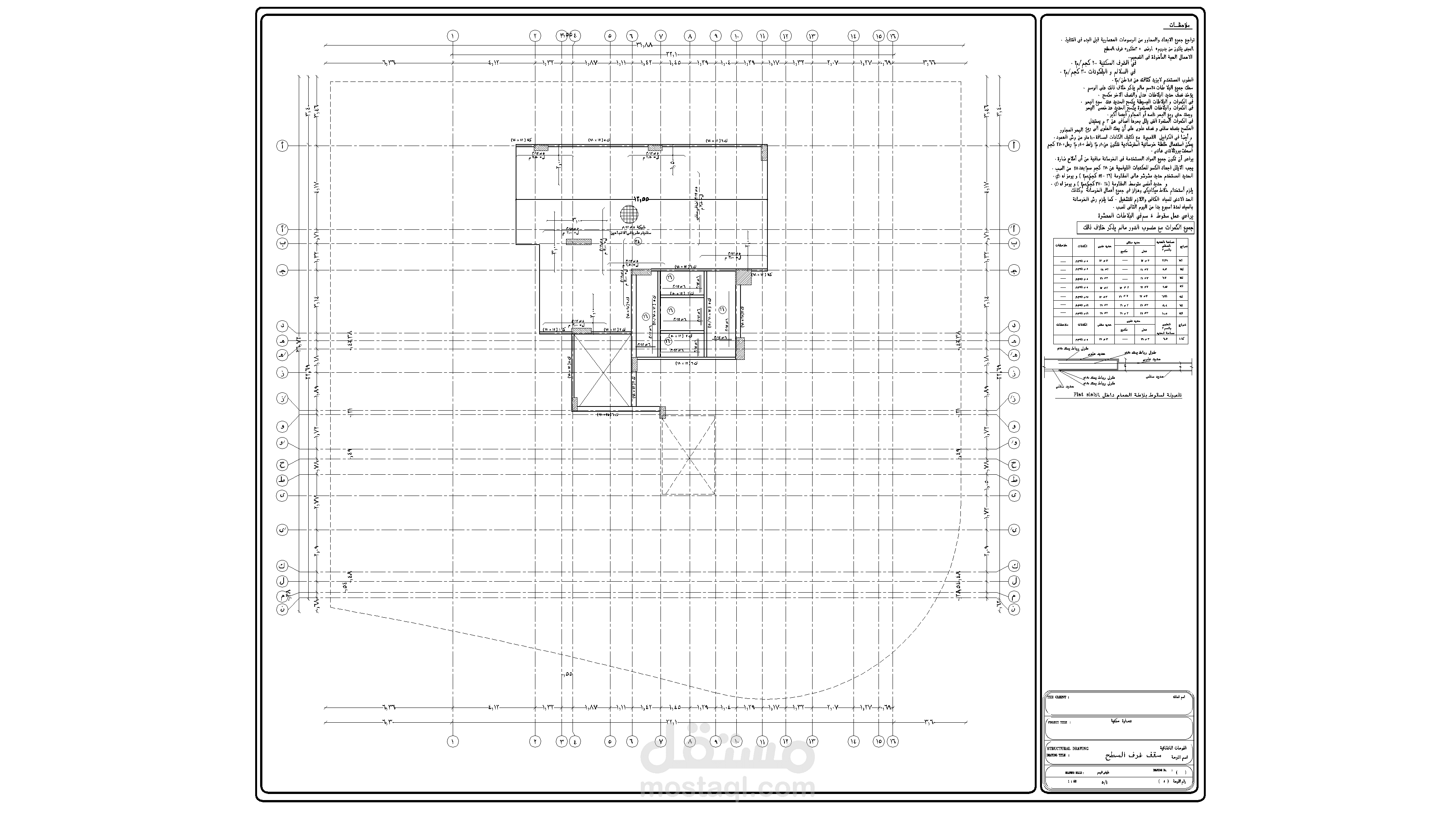
تصميم إنشائي لعمارة سكنية بمساحه 930متر مربع مكونة من بدروم، دور أرضي، وأربعة أدوار علوية بالإضافة إلى السقف. تم إجراء التحليل والتصميم الإنشائي باستخدام برامج ETABS و SAP2000 لتحليل الإطار الإنشائي ودراسة الأحمال المختلفة، كما تم استخدام برنامج SAFE في تصميم الأساسات والبلاطات الأرضية.

شمل نطاق العمل إعداد النموذج الإنشائي الكامل، وتحليل الأحمال الميتة والحية وأحمال الرياح (إن وجدت)، وتصميم جميع العناصر الإنشائية طبقًا لاشتراطات الكود المعتمد. كما تم استخراج اللوحات التنفيذية التي تتضمن:

لوحات المحاور العامة.

لوحات الأعمدة وجداول التسليح.

لوحات الكمرات وتسليحها لجميع الأدوار.

لوحات تسليح الأسقف.

لوحات الأساسات وتفاصيل التسليح.

تم مراجعة النتائج وضبط التصميم لضمان تحقيق متطلبات الأمان والكفاءة الاقتصادية

بطاقة العمل

اسم المستقل
عدد الإعجابات
0
عدد المشاهدات
1
تاريخ الإضافة
تاريخ الإنجاز
المهارات