تفاصيل العمل

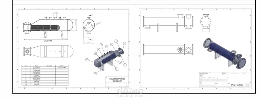
Starting frm an idea to a real prototype ready for assembly and testing going through the design, analysis,detail design, and manufacturing processes to have the model ready and in reality.

A very challenging journey to start from scratch especially with the industrial equipment with a lot of details and missing know how.

بطاقة العمل

اسم المستقل
عدد الإعجابات
0
عدد المشاهدات
11
تاريخ الإضافة
تاريخ الإنجاز
المهارات