تفاصيل العمل

✨ تصاميم 2D باحترافية عالية ✨

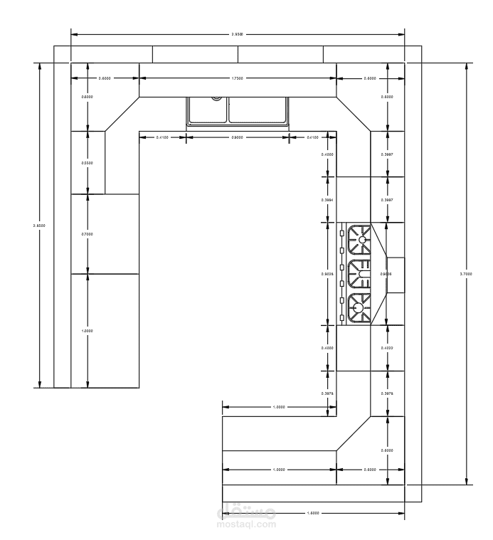
نقدم خدمات التصميم ثنائي الأبعاد 2D بدقة واحتراف، مع التركيز على التفاصيل الفنية الصحيحة والقياسات الدقيقة ?

✔️ مخططات تنفيذية واضحة

✔️ توزيع مساحات مدروس

✔️ أبعاد دقيقة جاهزة للتنفيذ

✔️ تنظيم احترافي للفراغات

هدفنا يكون المخطط واضح وسهل القراءة لأي جهة تنفيذ، مع الحفاظ على جمالية التصميم ودقته ✨

إذا بدك مخططات 2D احترافية لمشروعك، تواصل معنا الآن ?

#تصميم_داخلي #مخططات #2D #ديكور #تصاميم

بطاقة العمل

اسم المستقل
عدد الإعجابات
0
عدد المشاهدات
6
تاريخ الإضافة
تاريخ الإنجاز
المهارات