تفاصيل العمل

✨ مطبخ داخلي في شقة فاخرة ✨

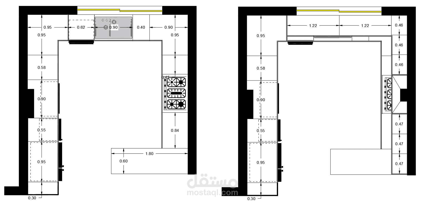
في هذا المشروع تم تصميم وتنفيذ مطبخ داخلي بعناية فائقة ليكون جزء أساسي من هوية الشقة الفاخرة ?

تم العمل على القياسات بأدق التفاصيل لضمان:

✔️ استغلال مثالي لكل سنتيمتر

✔️ توزيع عملي ومريح للحركة

✔️ تناسق كامل بين الخزائن والأجهزة

✔️ تشطيبات راقية تعكس الفخامة

كل زاوية محسوبة، وكل تفصيل مدروس ليجمع بين الجمال والوظيفة في نفس الوقت ✨

إذا بتحب يكون مطبخك بتصميم مميز وقياسات دقيقة 100%

راسلنا الآن لنبدأ بتصميم مساحتك بأسلوب يليق فيك ?

#تصميم_داخلي #مطبخ #مطابخ_فاخرة #ديكور #شقق

بطاقة العمل

اسم المستقل
عدد الإعجابات
0
عدد المشاهدات
3
تاريخ الإضافة
تاريخ الإنجاز
المهارات