تفاصيل العمل

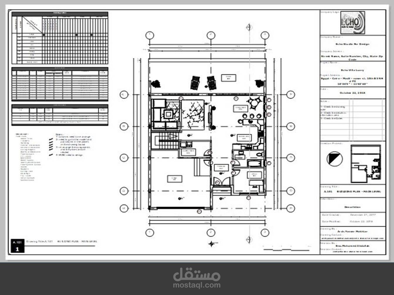
لقد قمت بالعديد من التصميمات الهندسية لمشاريع هندسية معماريا و انشاء ملفات انشائية وتصاميم داخلية وخارجية وعمل الابحاث والدراسات الهندسية بكافة اشكالها والتحليل المعماري للمنشئات وعمل الرسومات المعمارية و رسومات الشوب دروينج

والكثير من الاعمال الهندسية واعمال اخرى مرتبطة بالمجال الهندسي

بطاقة العمل

اسم المستقل
عدد الإعجابات
0
عدد المشاهدات
707
تاريخ الإضافة
تاريخ الإنجاز
المهارات