تفاصيل العمل

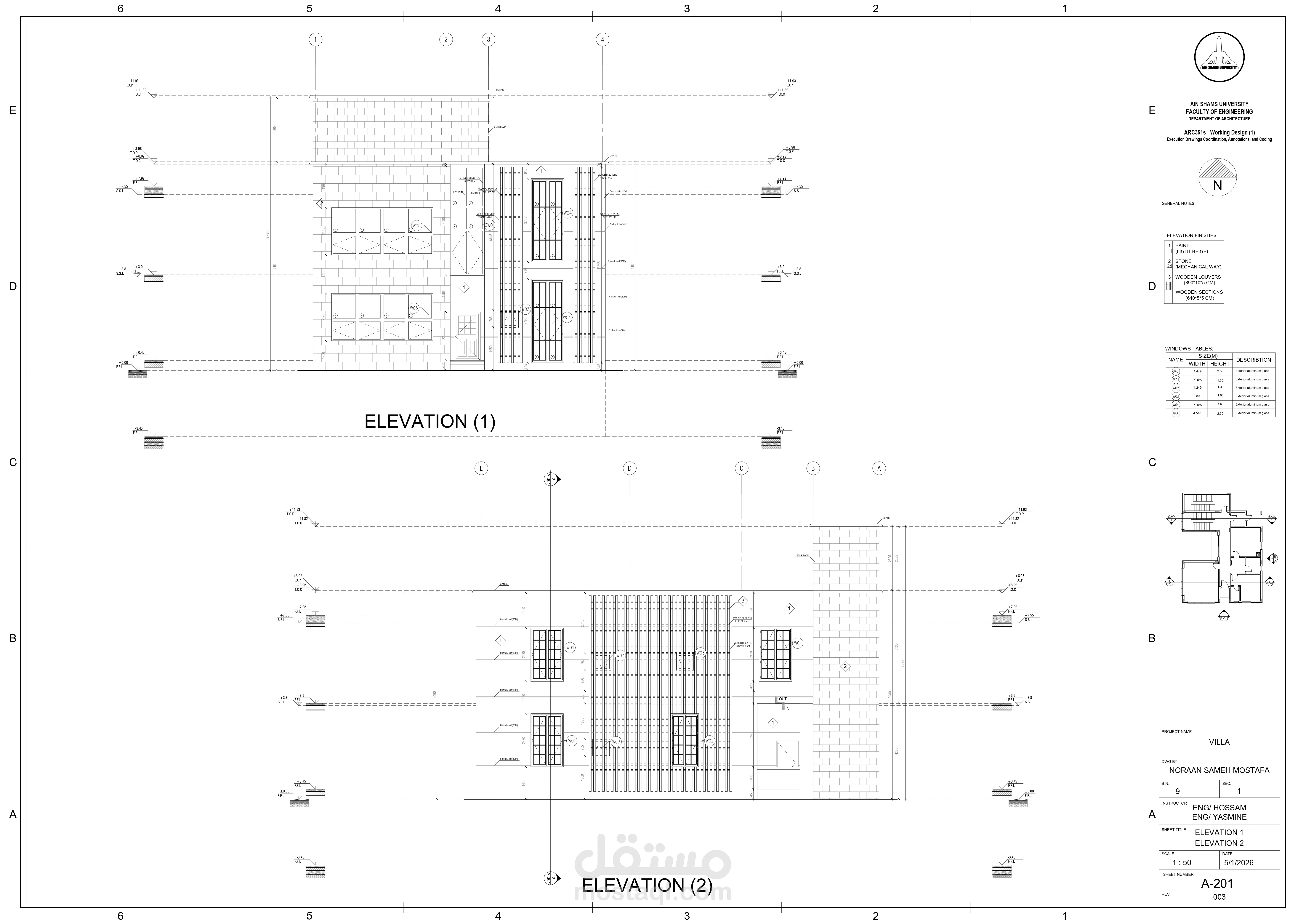
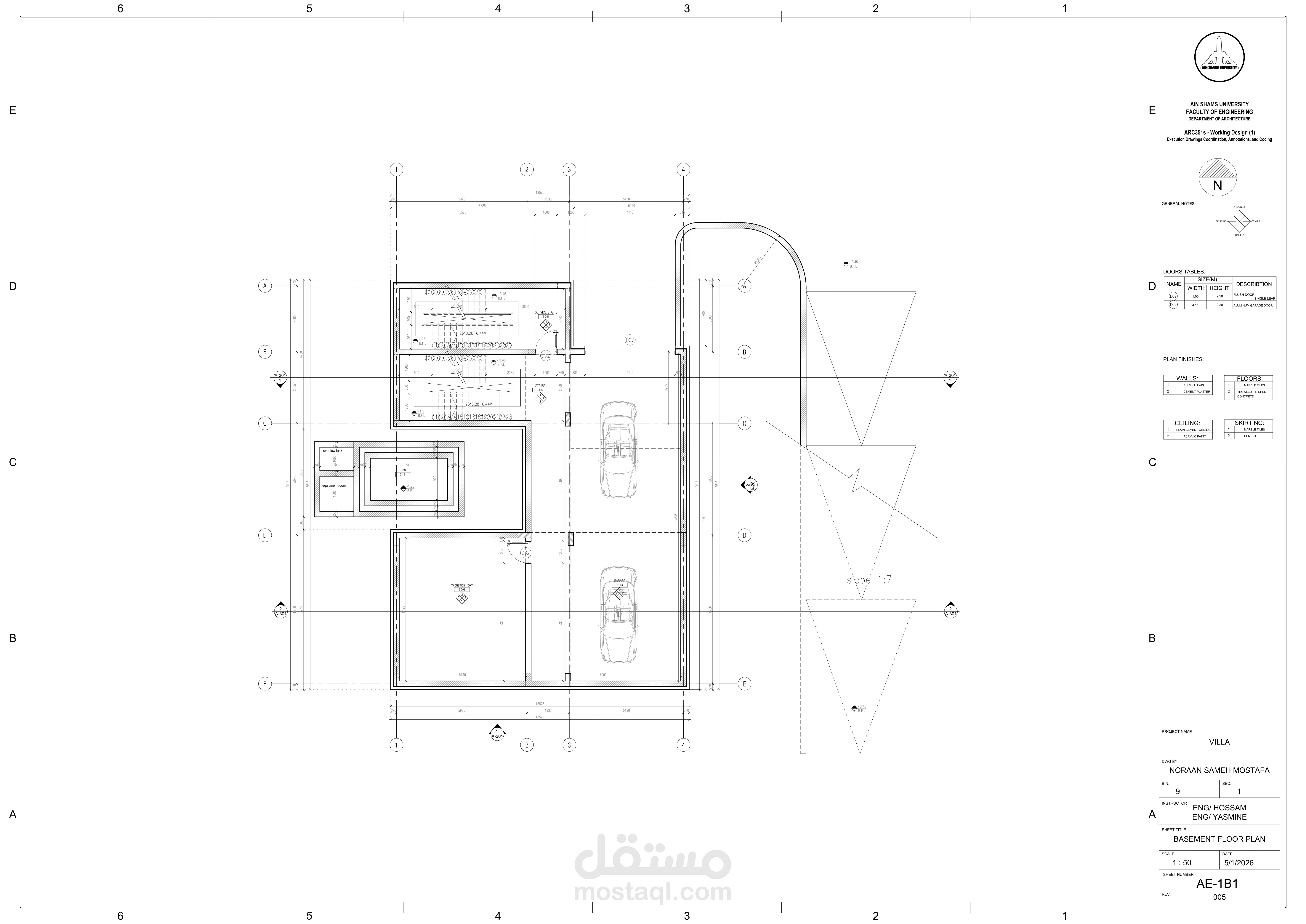
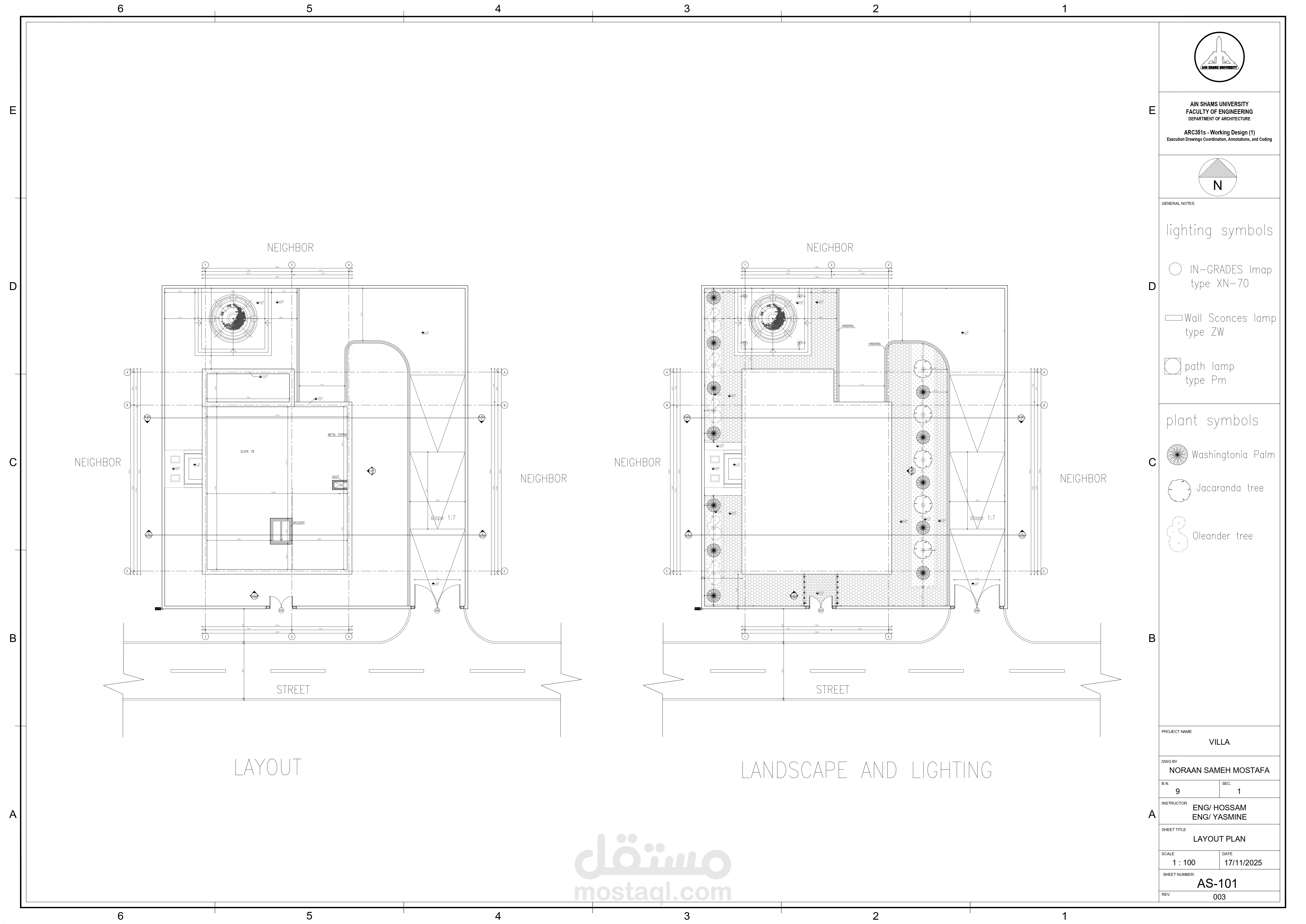
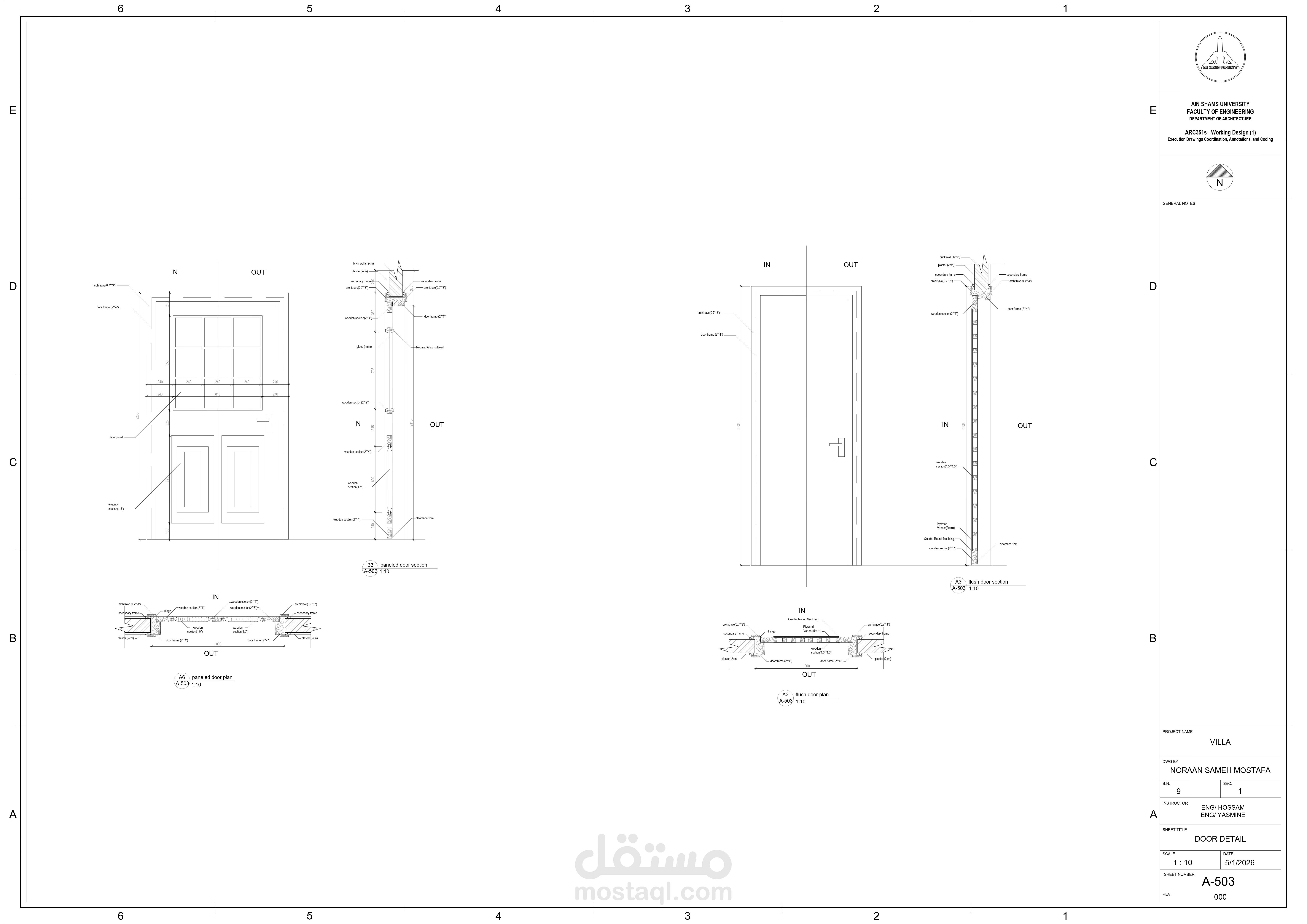
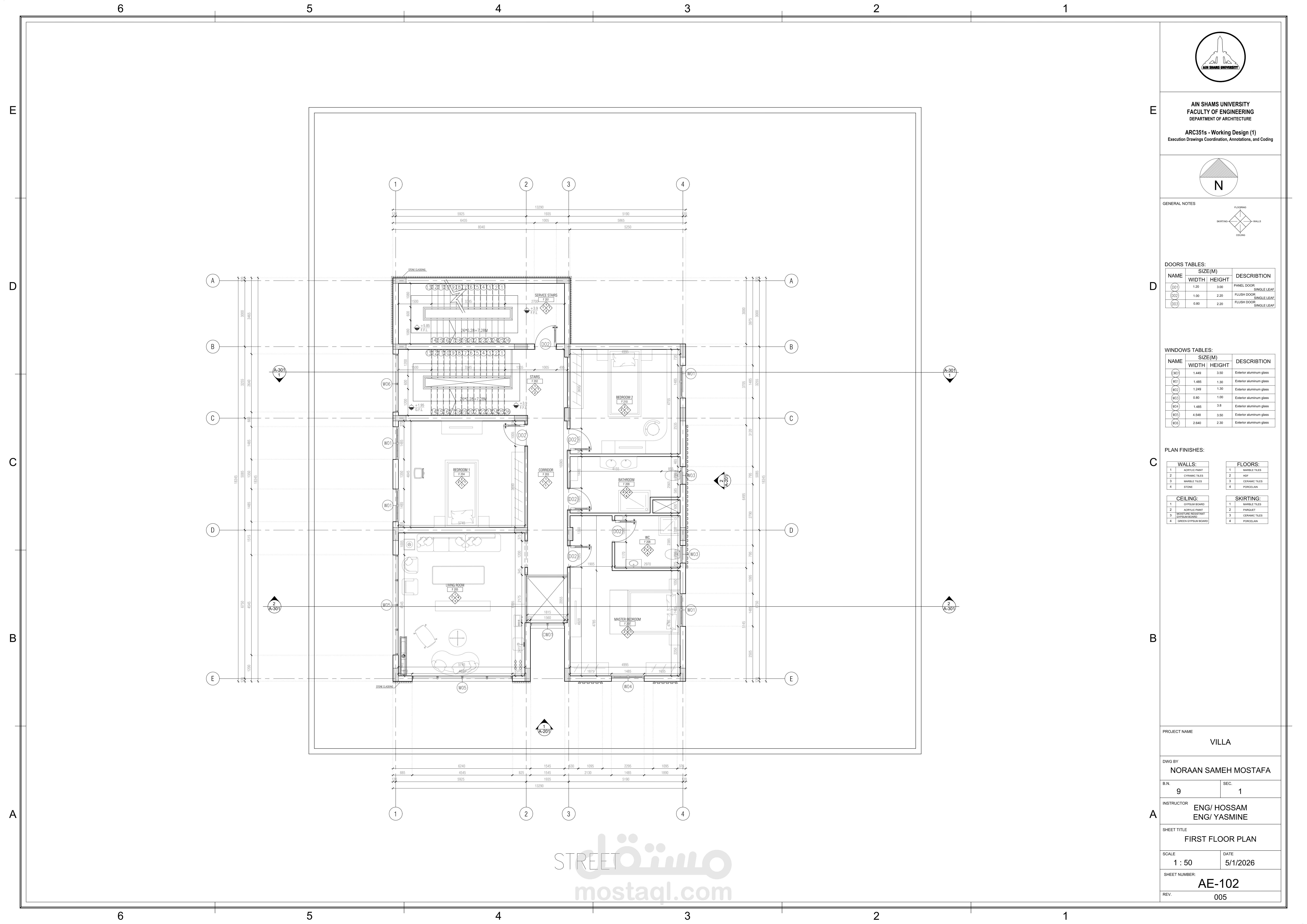
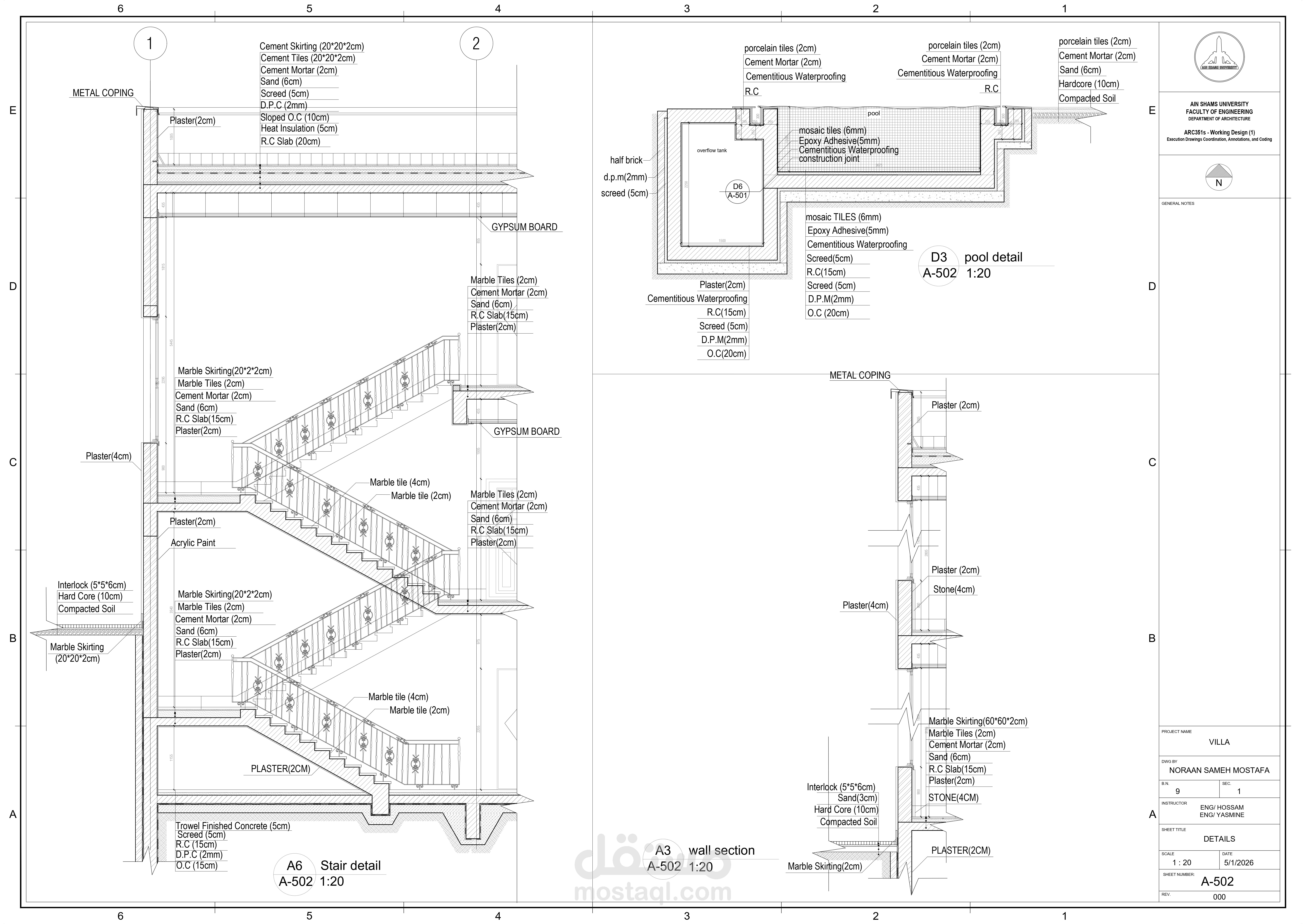
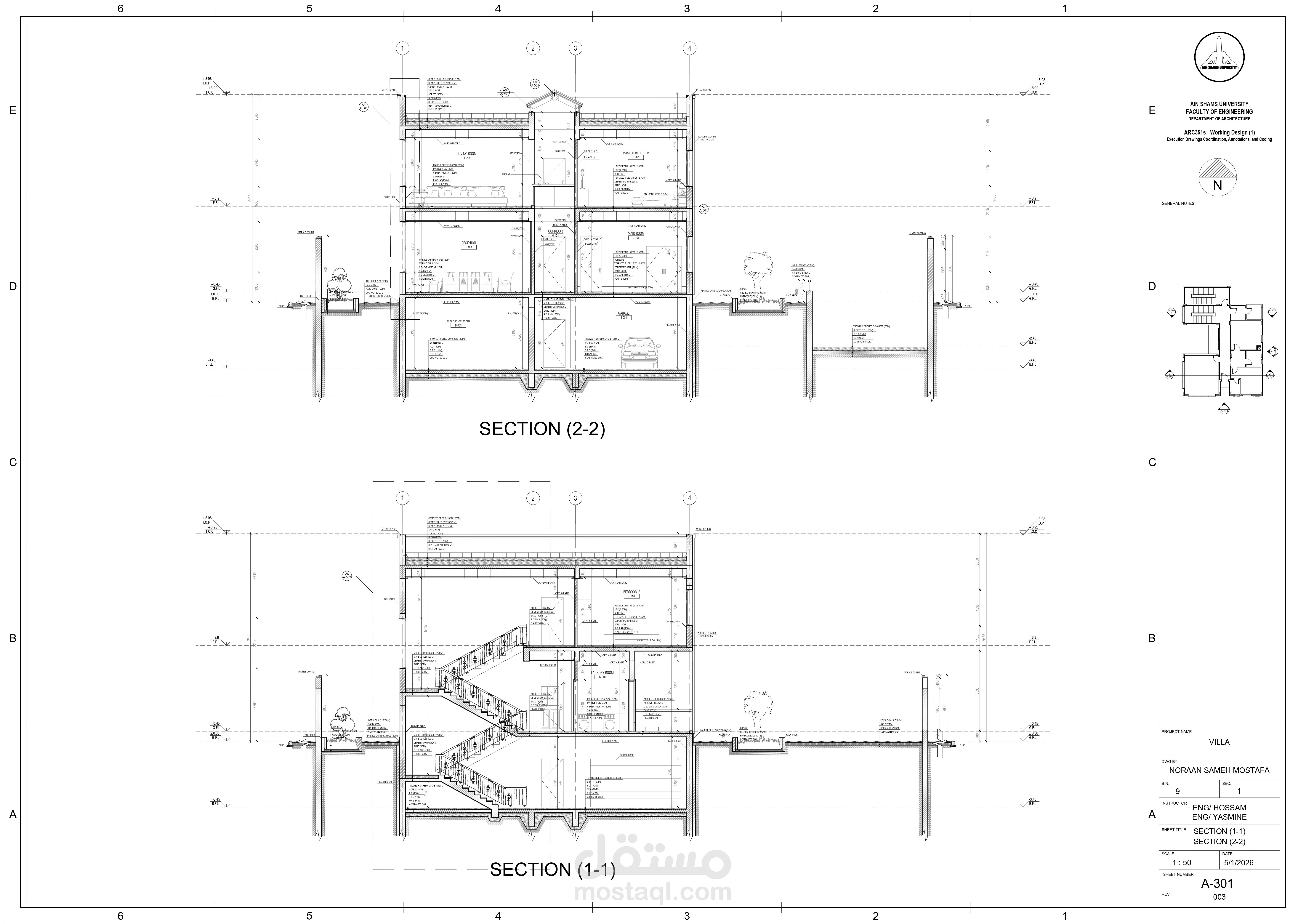
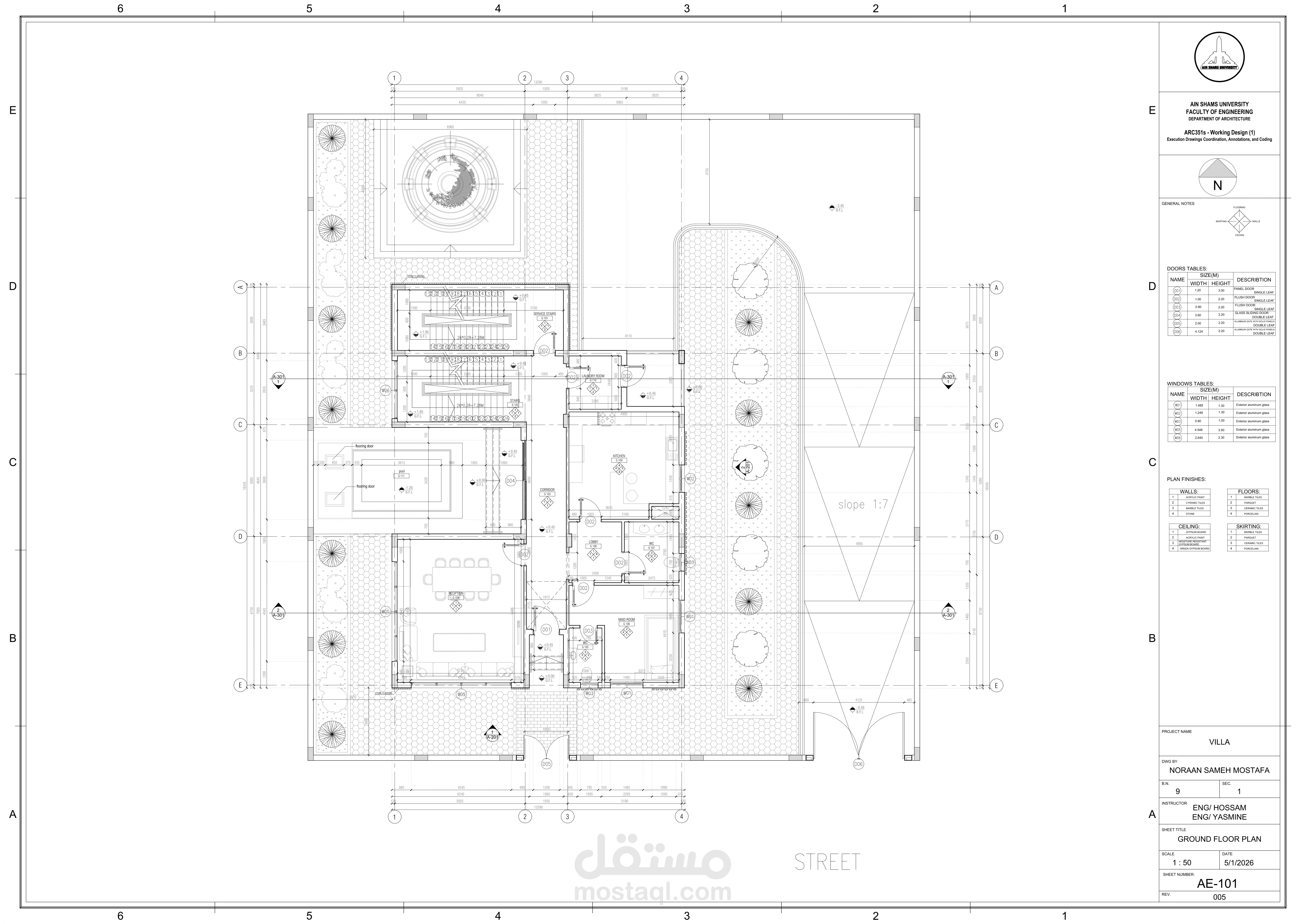
يستعرض هذا المشروع المهارة في تحويل التصميمات المعمارية إلى مخططات تنفيذية (Working Drawings) متكاملة وعالية الدقة، حيث تم إعداد حزمة هندسية شاملة لفيلا سكنية تضمن أعلى معايير الجودة في التنفيذ. تشمل المخرجات لوحات تفصيلية لتركيبات العناصر المعمارية والإنشائية، بالإضافة إلى إعداد كتالوج فني يوضح المواصفات والمواد المستخدمة لضمان دقة التوريد والتركيب في الموقع. تضمن المشروع تصميماً وتنفيذاً دقيقاً لحمام سباحة يدمج بين الجمالية والوظيفة، مع معالجة معمارية متطورة لمنطقة السكاي لايت (Skylight) لتعزيز الإضاءة الطبيعية وخلق أجواء داخلية مميزة. يعكس العمل قدرة فائقة على الربط بين التصميم الإبداعي والواقع التنفيذي، مع التركيز على التفاصيل الدقيقة التي تسهل عملية البناء وتمنع حدوث أخطاء فنية، مما يجعله نموذجاً مثالياً للمشاريع السكنية الفاخرة التي تتطلب إشرافاً تقنياً وتفصيلياً دقيقاً.

بطاقة العمل

اسم المستقل
عدد الإعجابات
0
عدد المشاهدات
7
تاريخ الإضافة
تاريخ الإنجاز
المهارات