تفاصيل العمل

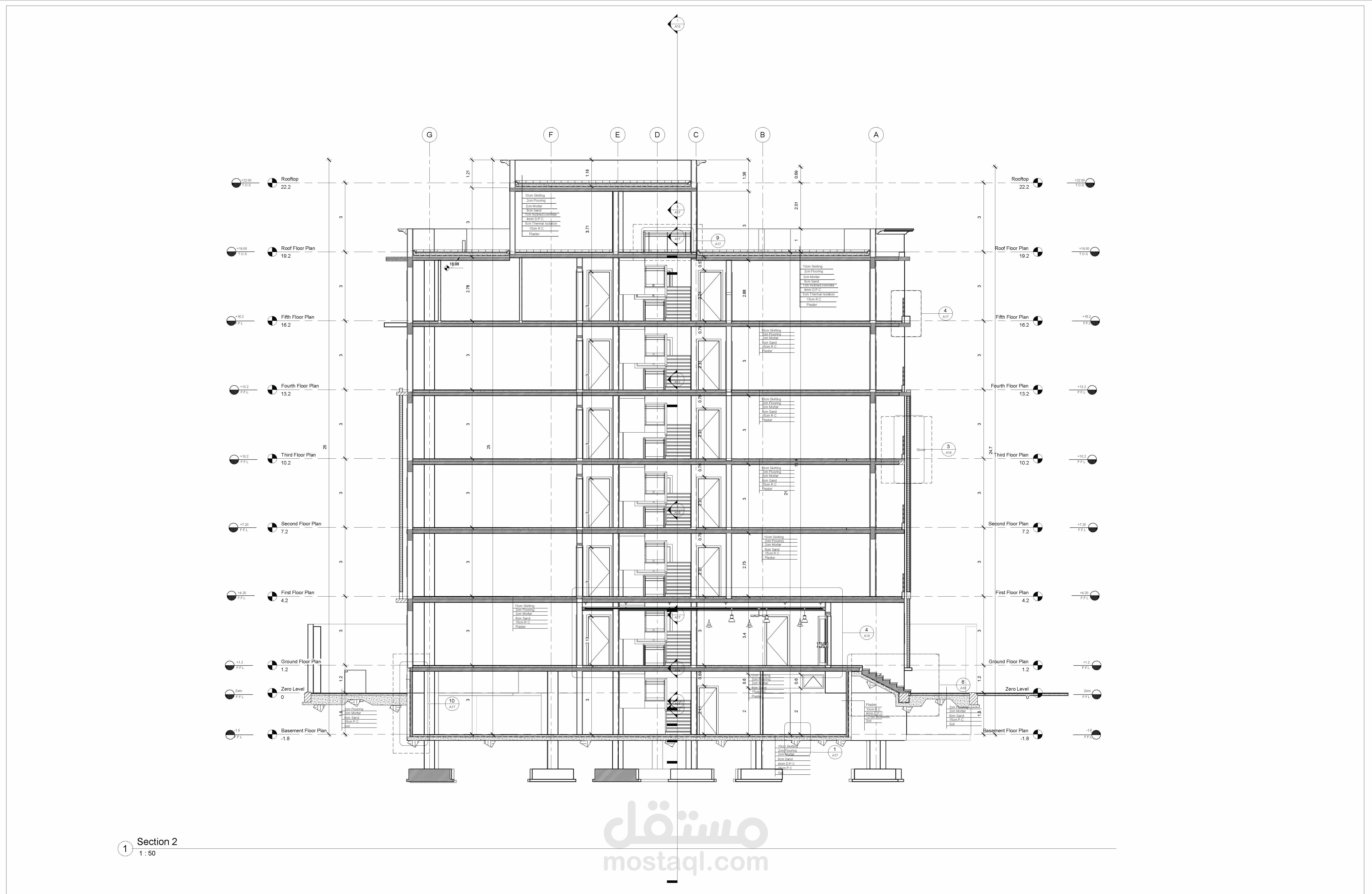
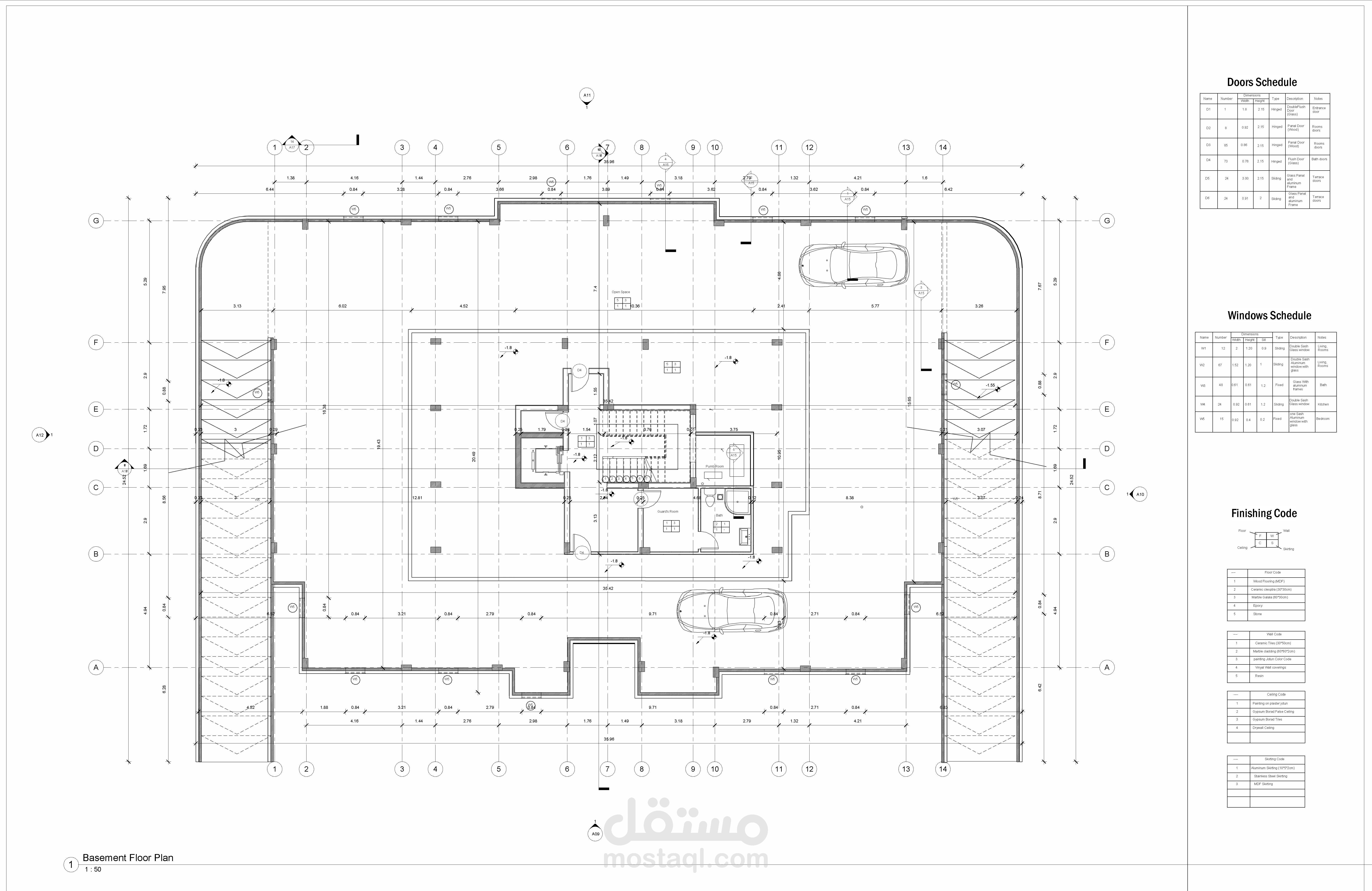
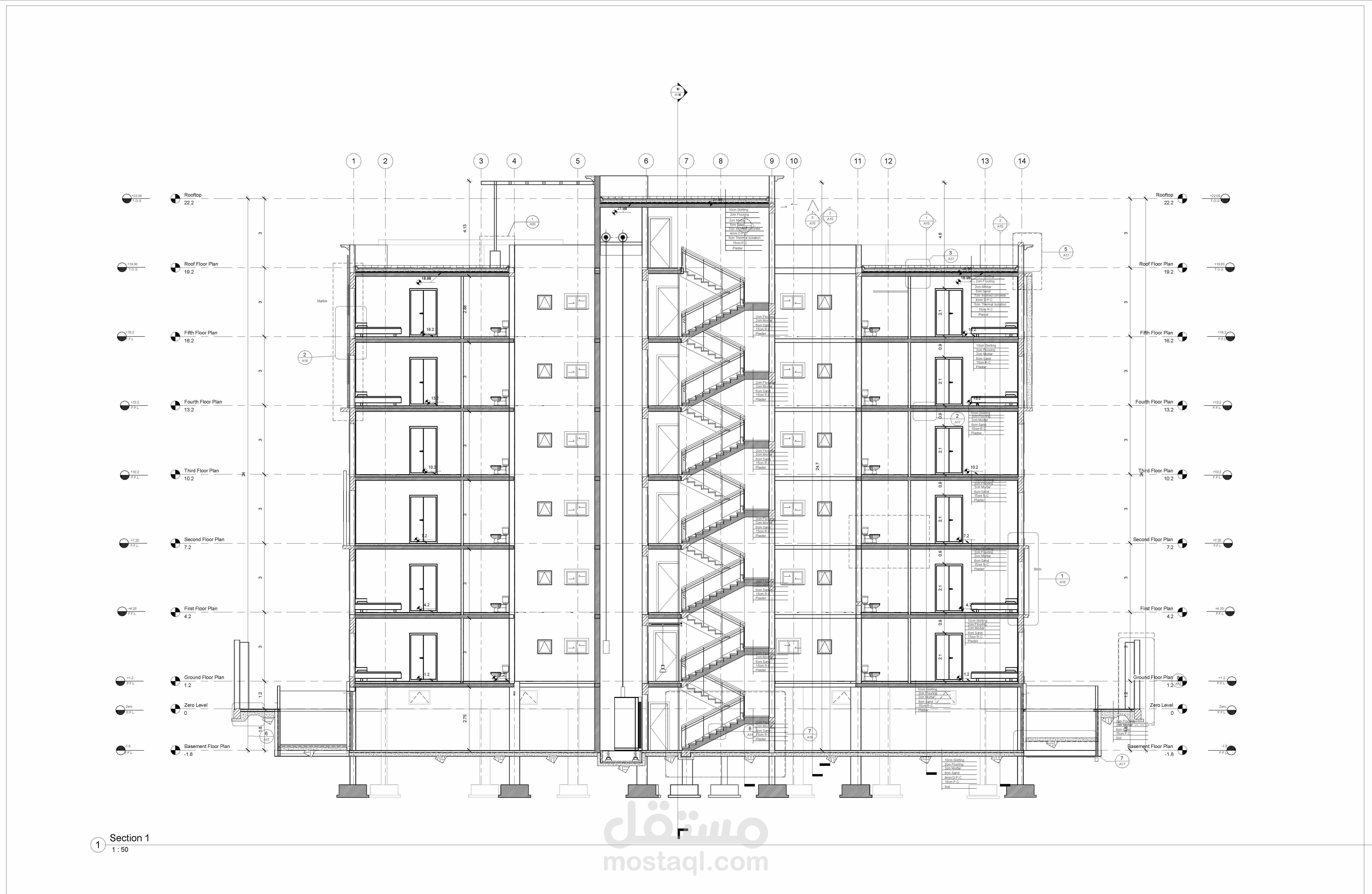
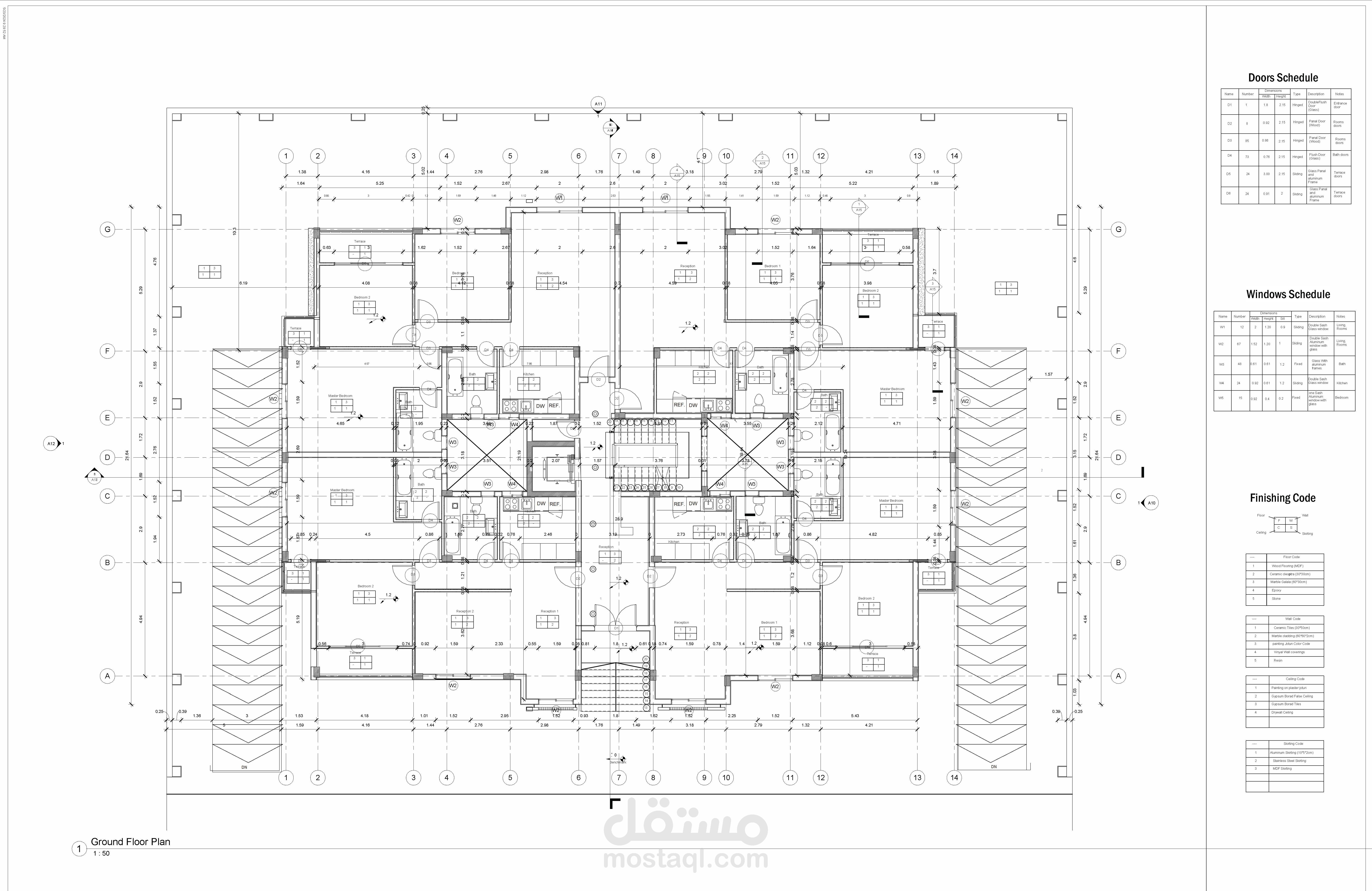
This project is a multi-storey residential apartment building designed with a modern architectural style, and I prepared all coordinated working drawings based on the architectural design. The scope includes complete architectural drawings (plans, elevations, sections, and details) as well as plumbing and electrical drawings, all developed to construction level. The plumbing design covers water supply, drainage, and fixture layouts, while the electrical design includes lighting, power distribution, and panel layouts. All systems were carefully coordinated with the architectural layout to avoid clashes and ensure functionality, safety, and constructability, resulting in a fully integrated and execution-ready apartment building project.

بطاقة العمل

اسم المستقل
عدد الإعجابات
0
عدد المشاهدات
22
تاريخ الإضافة
تاريخ الإنجاز
المهارات