تفاصيل العمل

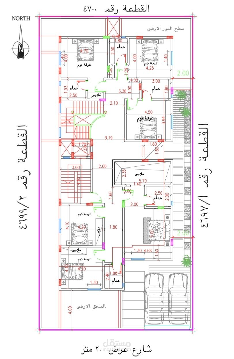
تصميم فيلا سكنية متكاملة تشمل المساقط (Ground Floor + First Floor)، الواجهات (Front & Side Elevations)، والقطاعات (Section A-A).

بطاقة العمل

اسم المستقل
عدد الإعجابات
0
عدد المشاهدات
15
تاريخ الإضافة
تاريخ الإنجاز
المهارات