تفاصيل العمل

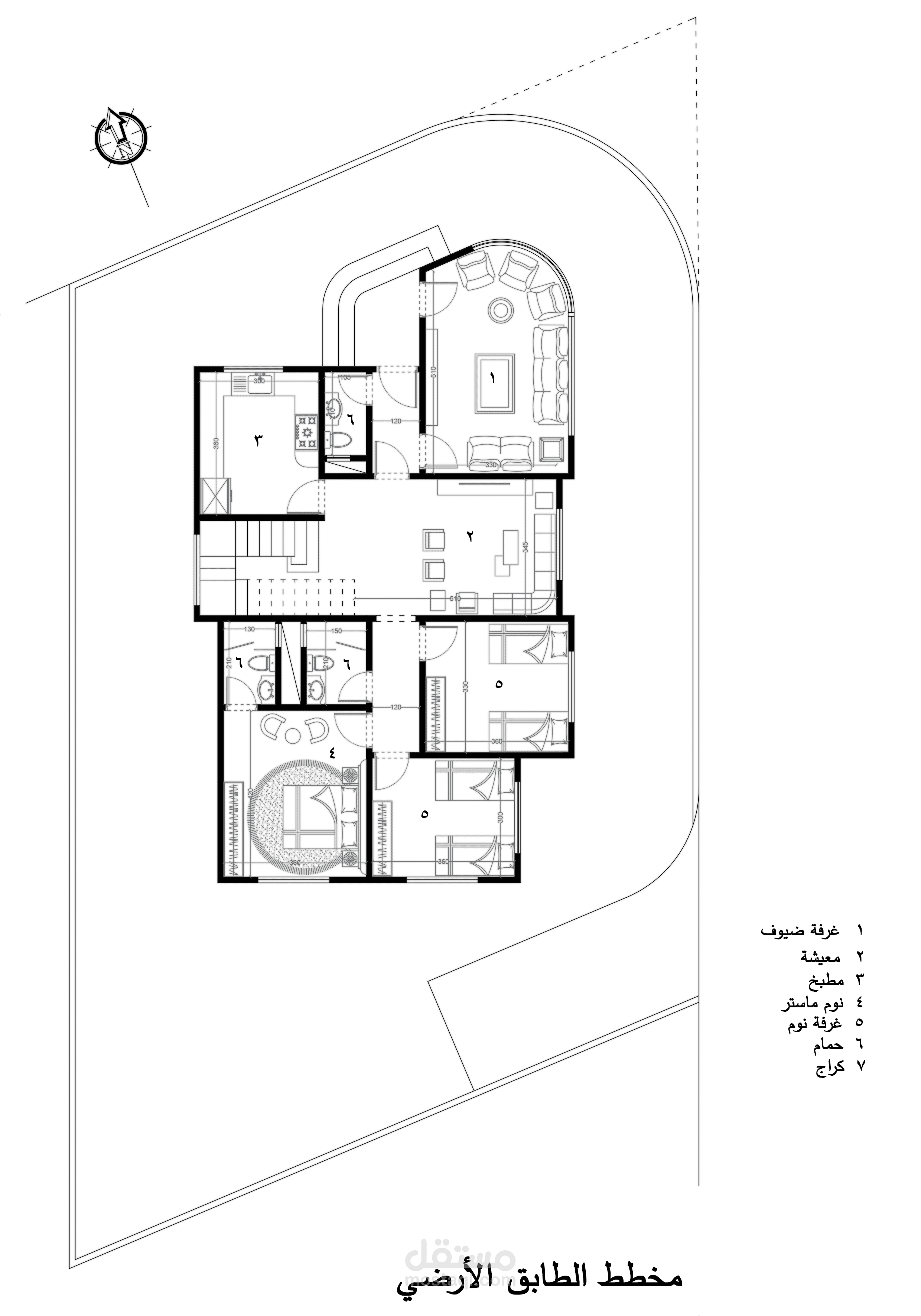
تم تصميم هذا المخطط المعماري لفيلا سكنية ضمن بيئة سكنية هادئة، مع مراعاة توزيع المساحات بشكل عملي ومريح يلبي احتياجات العائلة. يشمل التصميم:

- غرف نوم متعددة مع خصوصية تامة وتوزيع مدروس.

- مجلس وصالة معيشة بتصميم مفتوح يحقق الانسيابية والراحة.

- مطبخ واسع ومريح .

- حمامات موزعة لخدمة جميع الغرف.

- مساحات خارجية تشمل جلسة خارجية وحديقة.

- مراعاة التهوية الطبيعية والإضاءة في جميع الفراغات.

- تصميم قابل للتنفيذ وفق المعايير الهندسية المعتمدة.

بطاقة العمل

اسم المستقل
عدد الإعجابات
0
عدد المشاهدات
19
تاريخ الإضافة
تاريخ الإنجاز
المهارات