تفاصيل العمل

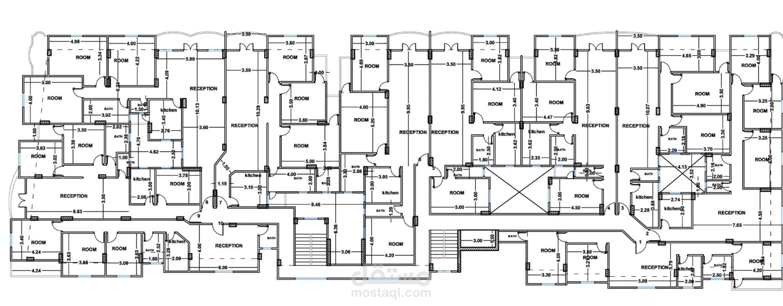
يمزج هذا البرج السكني بين عظمة الماضي وذكاء الحاضر؛ حيث يطل بواجهة كلاسيكية تعكس الفخامة في أدق تفاصيلها وزخارفها. وخلف هذا الغلاف الأنيق، يكمن تخطيط هندسي بارع نجح في استيعاب 10 شقق سكنية في الطابق الواحد، معتمداً على استغلال مثالي للمساحات يضمن الرحابة والخصوصية، ليحقق المعادلة الصعبة بين جمال المظهر وكفاءة الجوهر

بطاقة العمل

اسم المستقل
عدد الإعجابات
0
عدد المشاهدات
10
تاريخ الإضافة