تفاصيل العمل

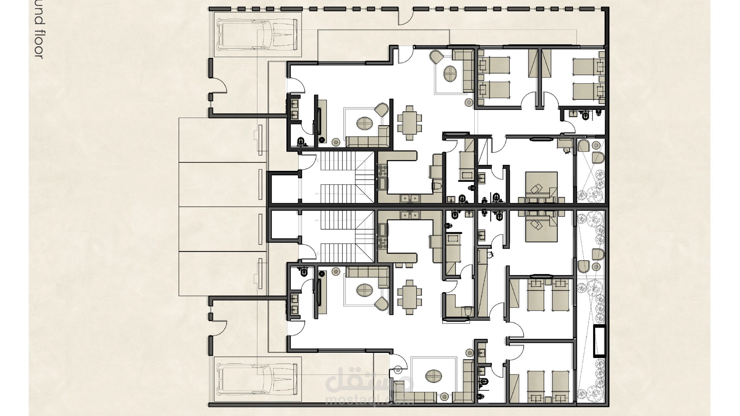
فلل آل إن (Allin Villas) هو مشروع سكني حديث في مدينة الرياض، المملكة العربية السعودية، يتكوّن من فيلتين توأم متماثلتين تتشاركان جدارًا فاصلًا واحدًا، مع عمل كل فيلا كوحدة سكنية مستقلة بالكامل. وقد روعي في تصميم كل وحدة تحقيق أعلى درجات الخصوصية، من خلال مداخل مستقلة، وحدائق خاصة، ومرافق منفصلة.

يركّز التصميم على المساحات الرحبة، وتدفّق الإضاءة الطبيعية، والتشطيبات الراقية، ليحقق توازنًا متناغمًا بين الأناقة والراحة والوظيفية. وتُعد فلل آل إن خيارًا مثاليًا للعائلات التي ترغب في القرب المكاني مع الحفاظ على الاستقلالية، حيث تمزج بين العمارة المعاصرة والطابع السكني السعودي الأصيل، لتوفّر أسلوب حياة عصريًا وشعورًا حقيقيًا بالانتماء إلى المنزل.

بطاقة العمل

اسم المستقل
عدد الإعجابات
0
عدد المشاهدات
3
تاريخ الإضافة