تفاصيل العمل

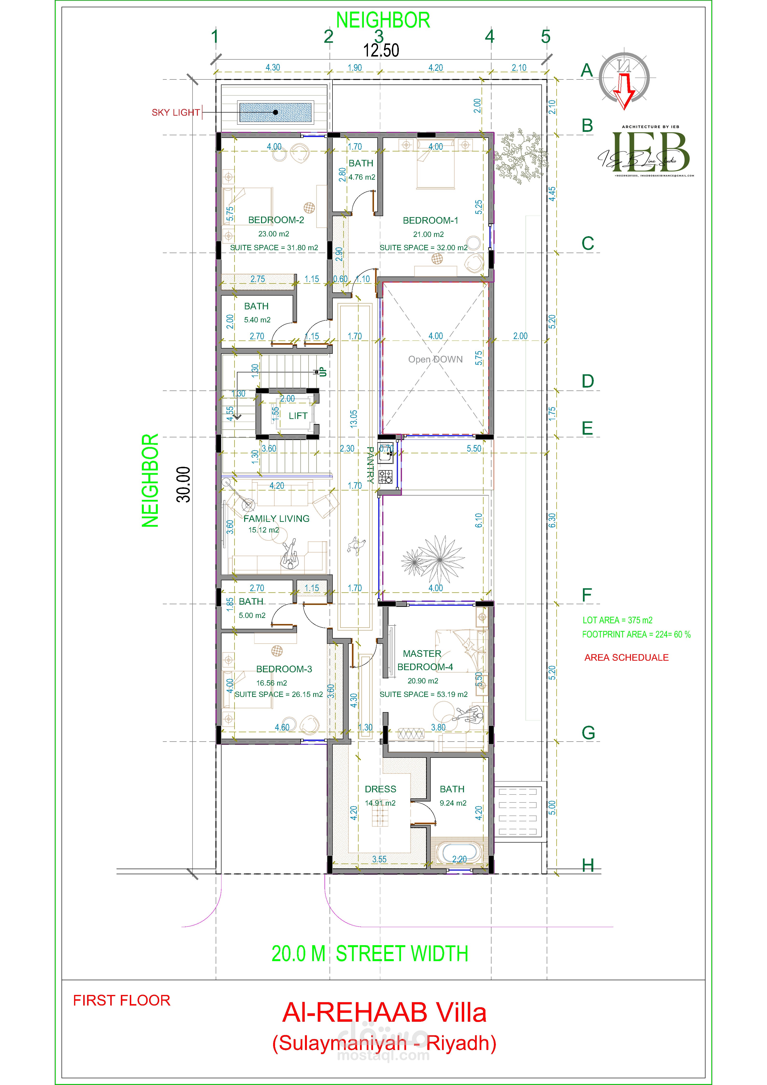
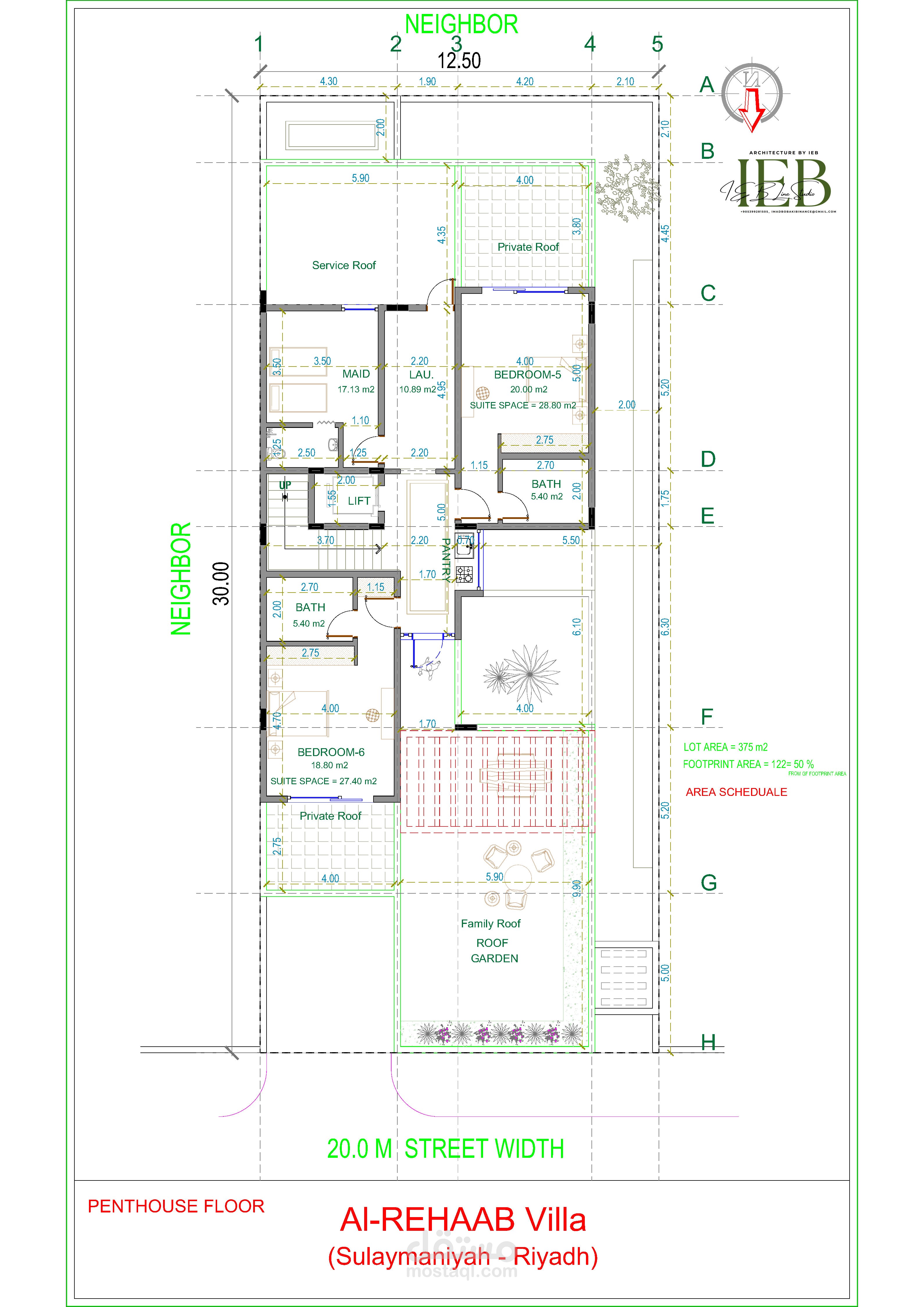
مشروع فيلا مميزة تقع ( فيلا الرحاب ) في حي السليمانية – الرياض وفق كود وادي حنيفة T3.2 (الفلل الصغيرة والمتوسطة)، وقد تم تقديم تصميم معماري مبدع ومتوازن يجمع بين الجمال والوظيفية والالتزام التام بالاشتراطات النظامية.

هذا النوع من المشاريع هو ما أبرع فيه تحديدًا، حيث يتطلب تصميمًا متكاملًا يجمع بين حسن توزيع الفراغات، مراعاة حركة الإضاءة والتهوية، وضبط العلاقات الرأسية بين الأدوار المتعددة (قبو – أرضي – أول – سطح) بما يتماشى مع طبيعة الكود ومتطلبات كفاءة البناء.

و أسعى لتقديم تصميم عملي واقعي يراعي البيئة المحلية، ويعكس تطلعات العملاء في فيلا مريحة وجذابة من جميع النواحي.

بطاقة العمل

اسم المستقل
عدد الإعجابات
0
عدد المشاهدات
23
تاريخ الإضافة
تاريخ الإنجاز
المهارات