تفاصيل العمل

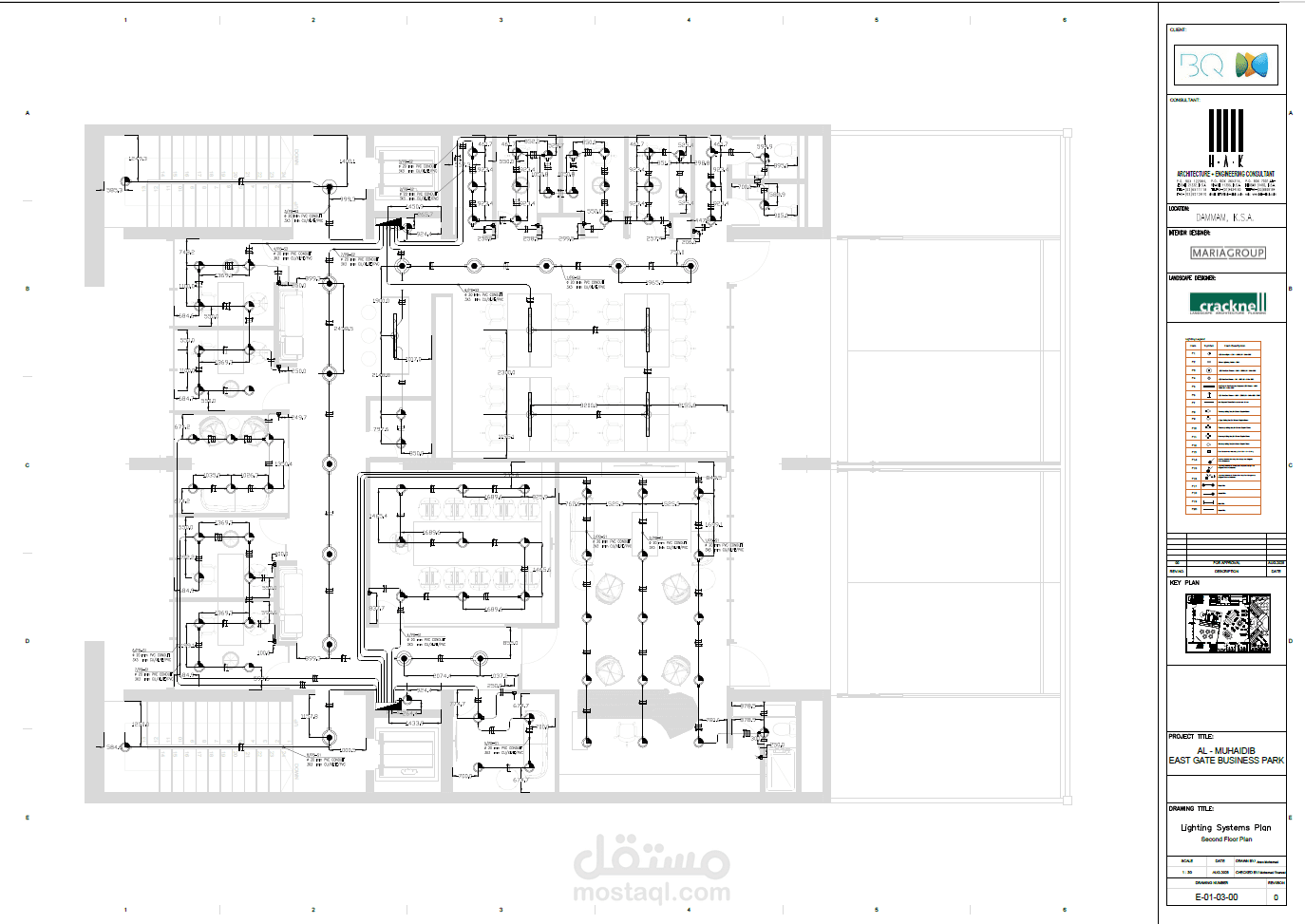
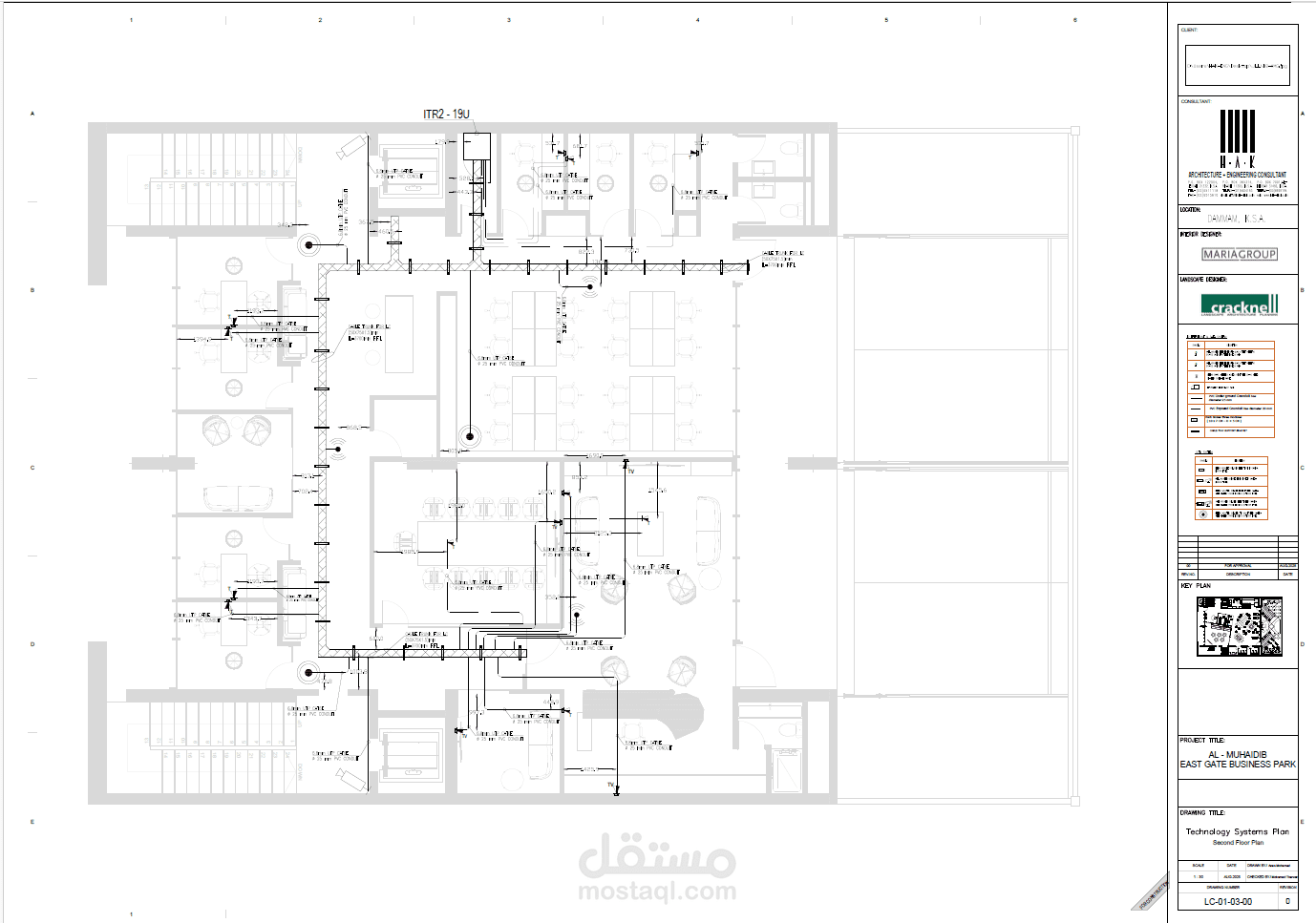
مشروع تصميم كهربائي كامل لمبنى، يشمل تطوير LOD & LOG، إعداد مخططات البيان والـ Legend Plans، وتجهيز رسومات تنفيذية احترافية لأنظمة الإنارة والقوى.

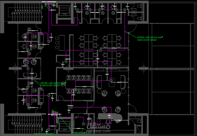
كما يتضمن تصميم أنظمة Fire Alarm و Data & CCTV، مع إعداد SLD و Panel Schedule، وإجراء حسابات مقاسات Cable Trunk Sizing بدقة

بطاقة العمل

اسم المستقل
عدد الإعجابات
0
عدد المشاهدات
10
تاريخ الإضافة
تاريخ الإنجاز
المهارات