مشروع تأسيس كهربي كامل لمطبخ مركزي خاص بمجموعة مطاعم – مصر

تفاصيل العمل

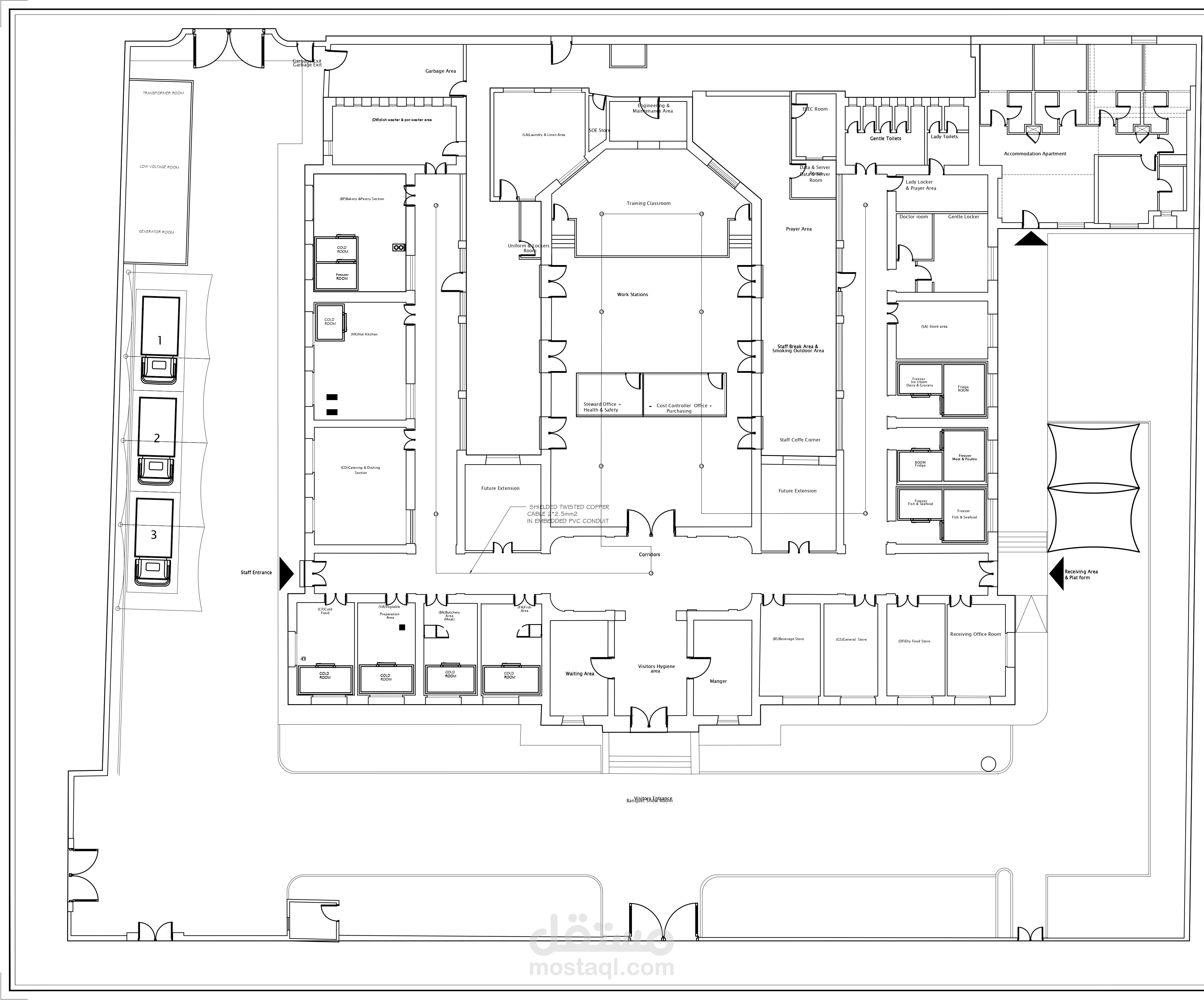
مشروع مطبخ مركزي لمجموعة مطاعم – مصر

التخصص: تصميم كهرباء متكامل (إضاءة – قوى – تأريض – تيار خفيف)

الوصف العام:

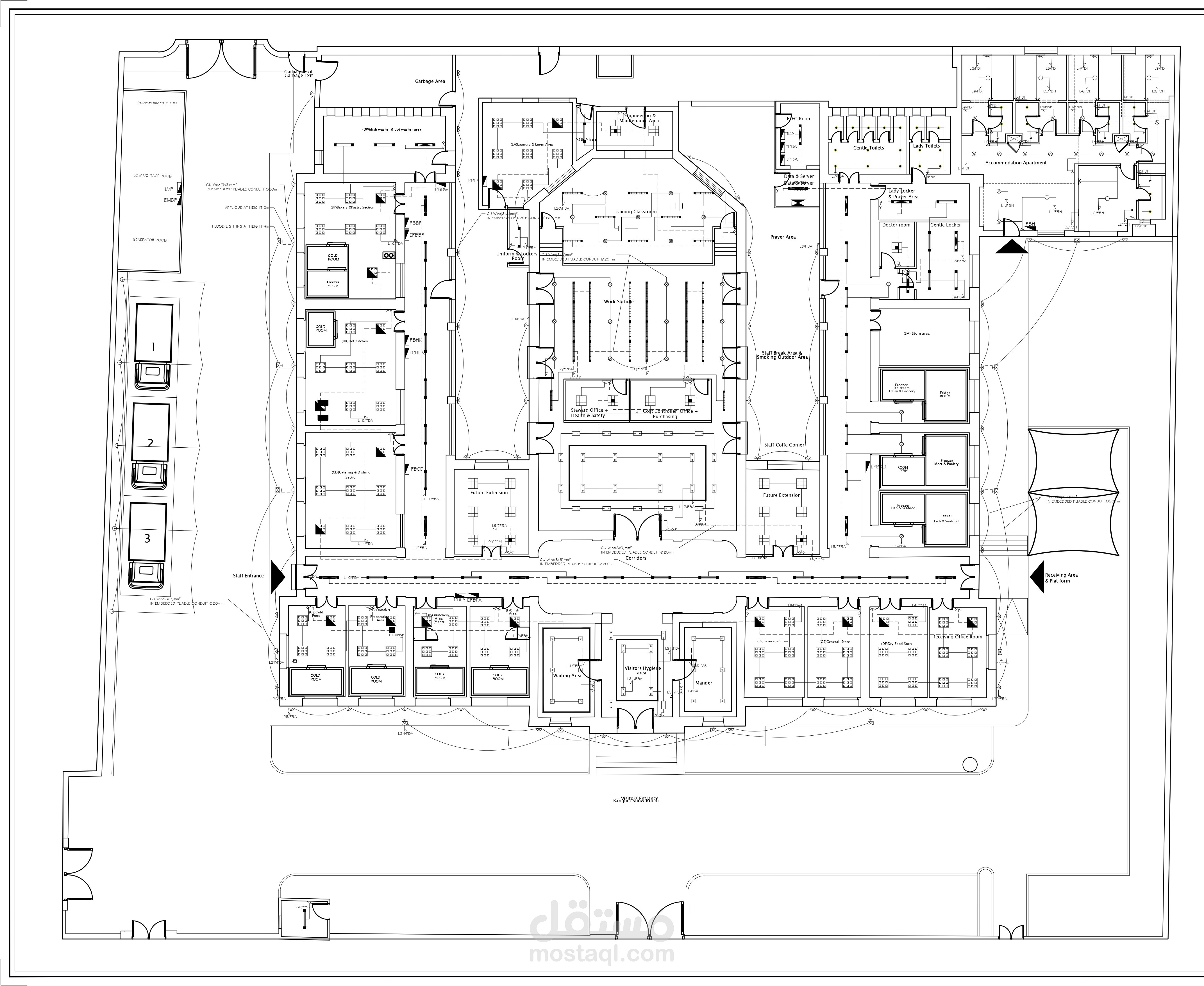
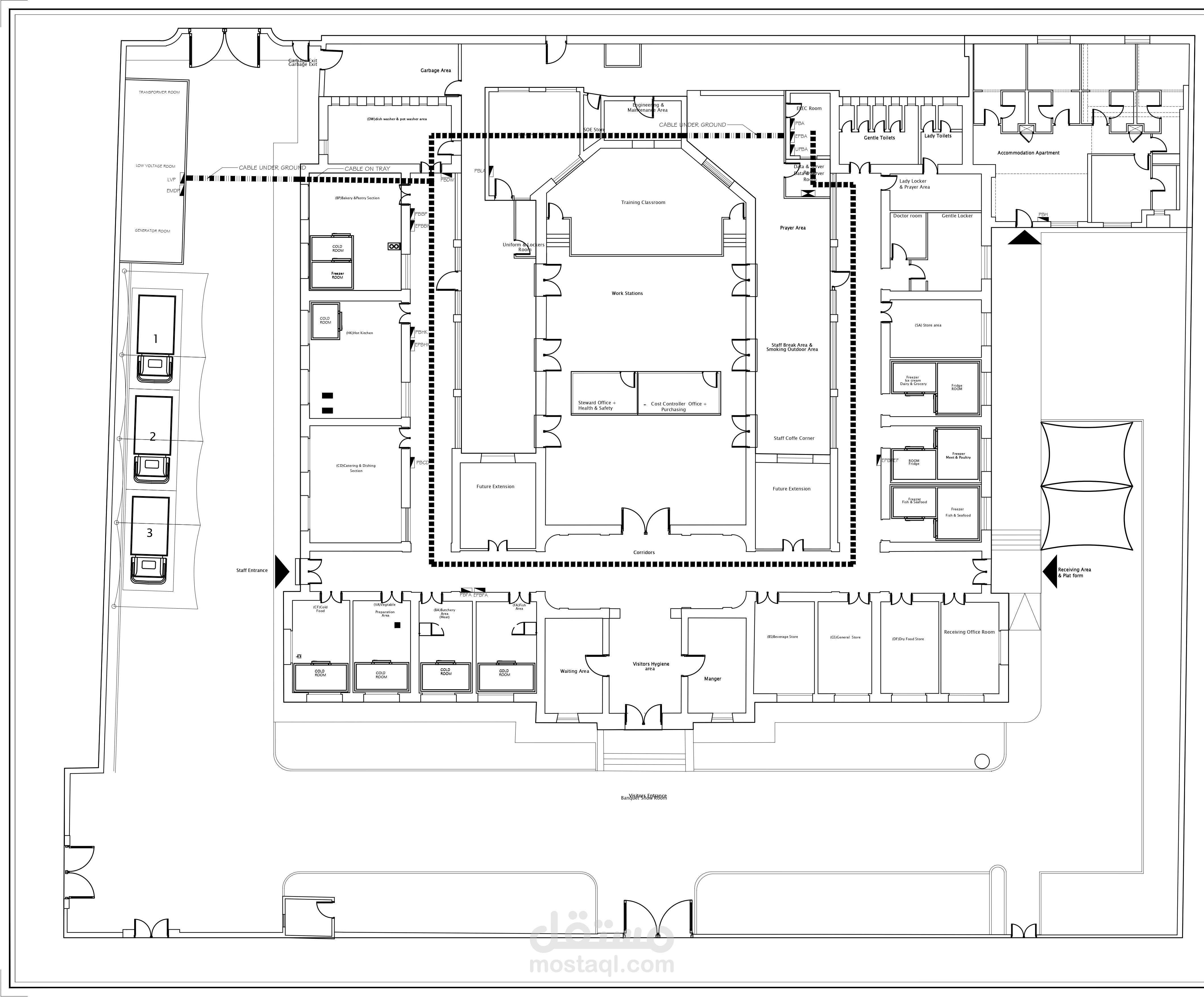
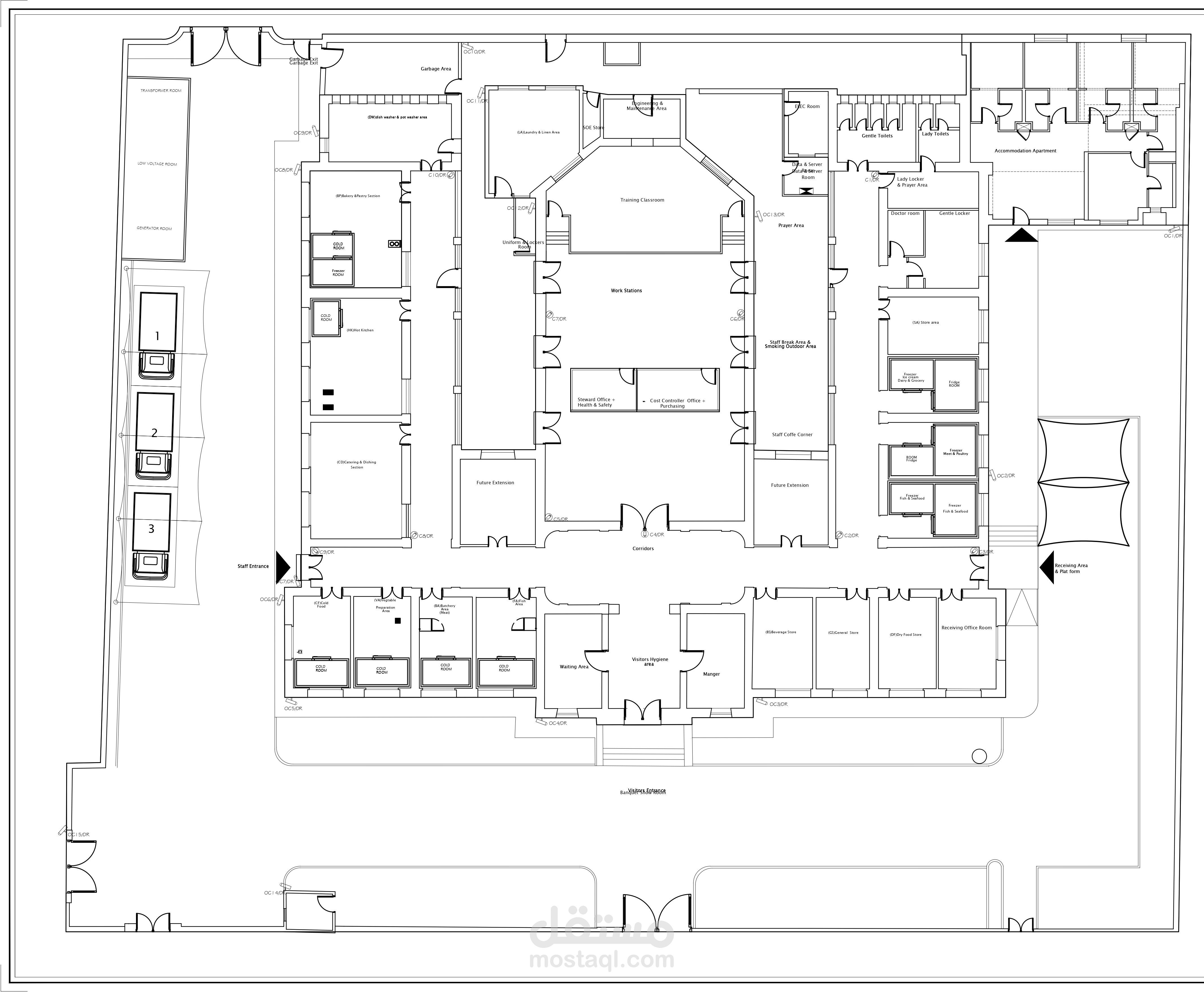
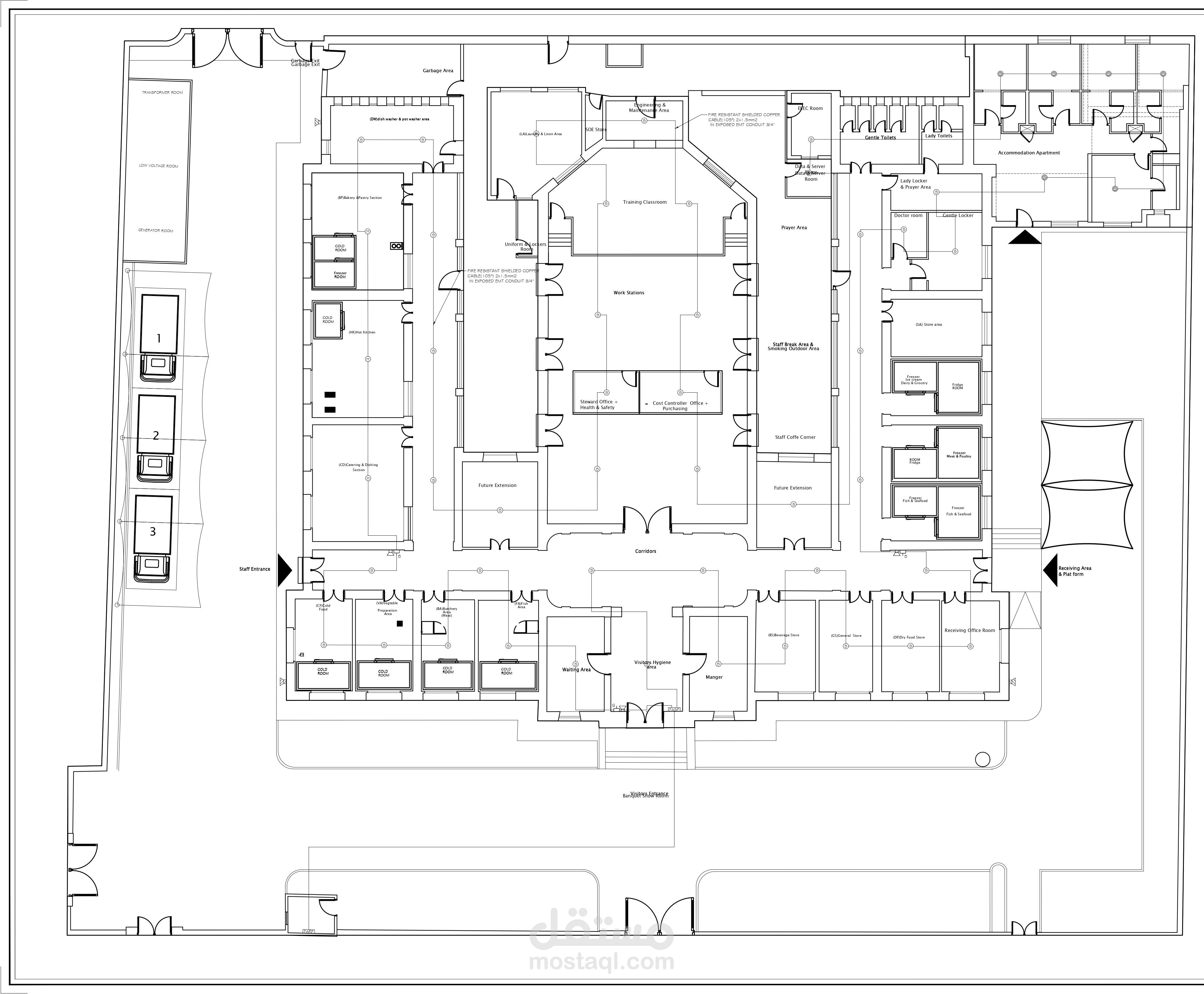
تم تنفيذ التصميم الكهربائي الكامل لمبنى مطبخ مركزي يخدم مجموعة مطاعم، يتضمن مناطق إعداد وطهي وتخزين وخدمات إدارية، مع الالتزام بأعلى معايير الأمان والسلامة الكهربائية داخل بيئة تشغيلية عالية الكثافة.

نطاق الأعمال:

* تصميم نظام الإضاءة (Lighting Layout) وفق مستويات إضاءة مناسبة للمناطق المختلفة (تحضير، طهي، تخزين، مكاتب).

* تصميم نظام القوى (Power Layout) متضمناً توزيع الأحمال، لوحات التوزيع الفرعية، مسارات الكابلات، وحسابات الجهد والتيار.

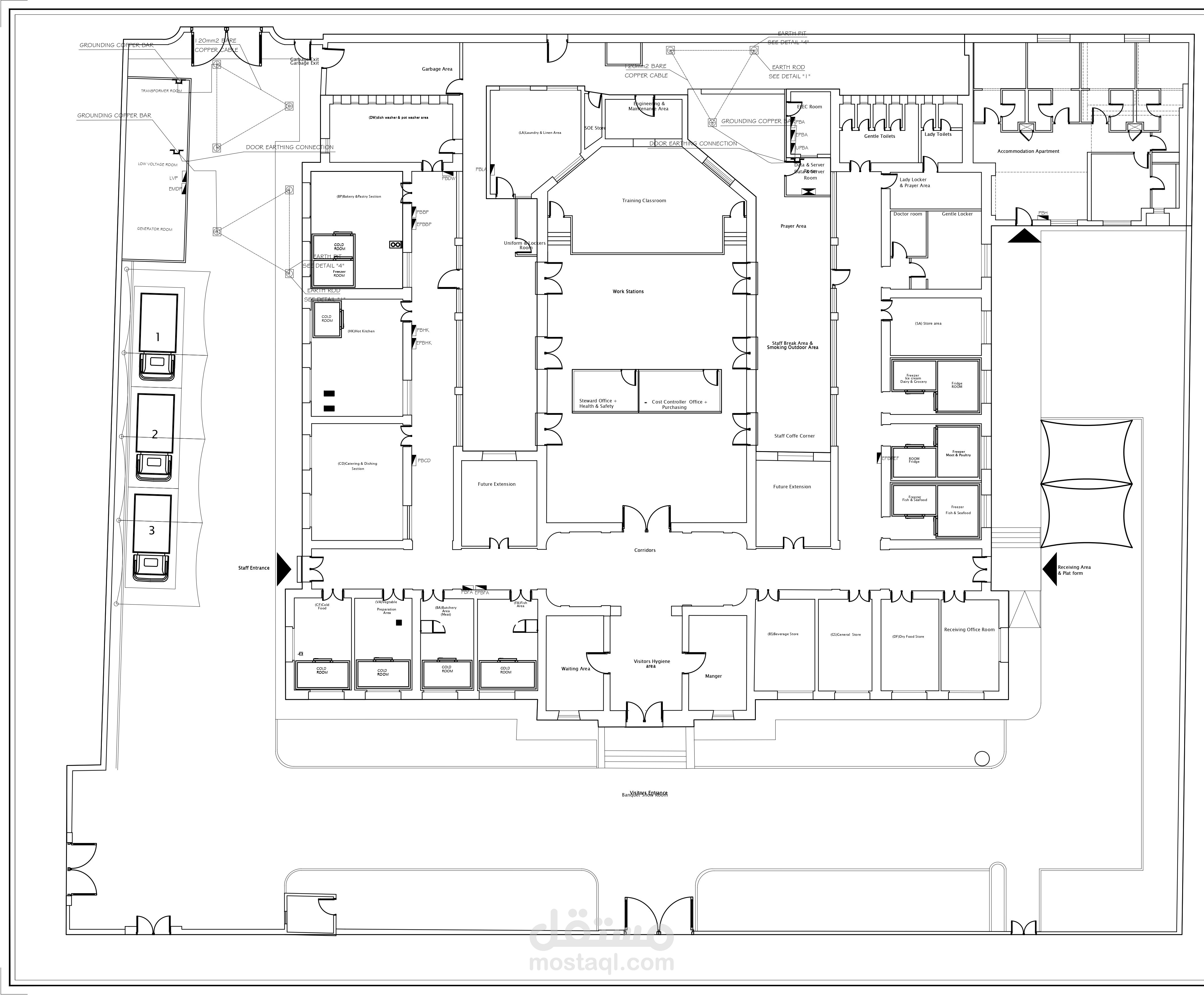
* إعداد نظام التأريض (Earthing & Bonding System) لضمان سلامة الأجهزة والمعدات.

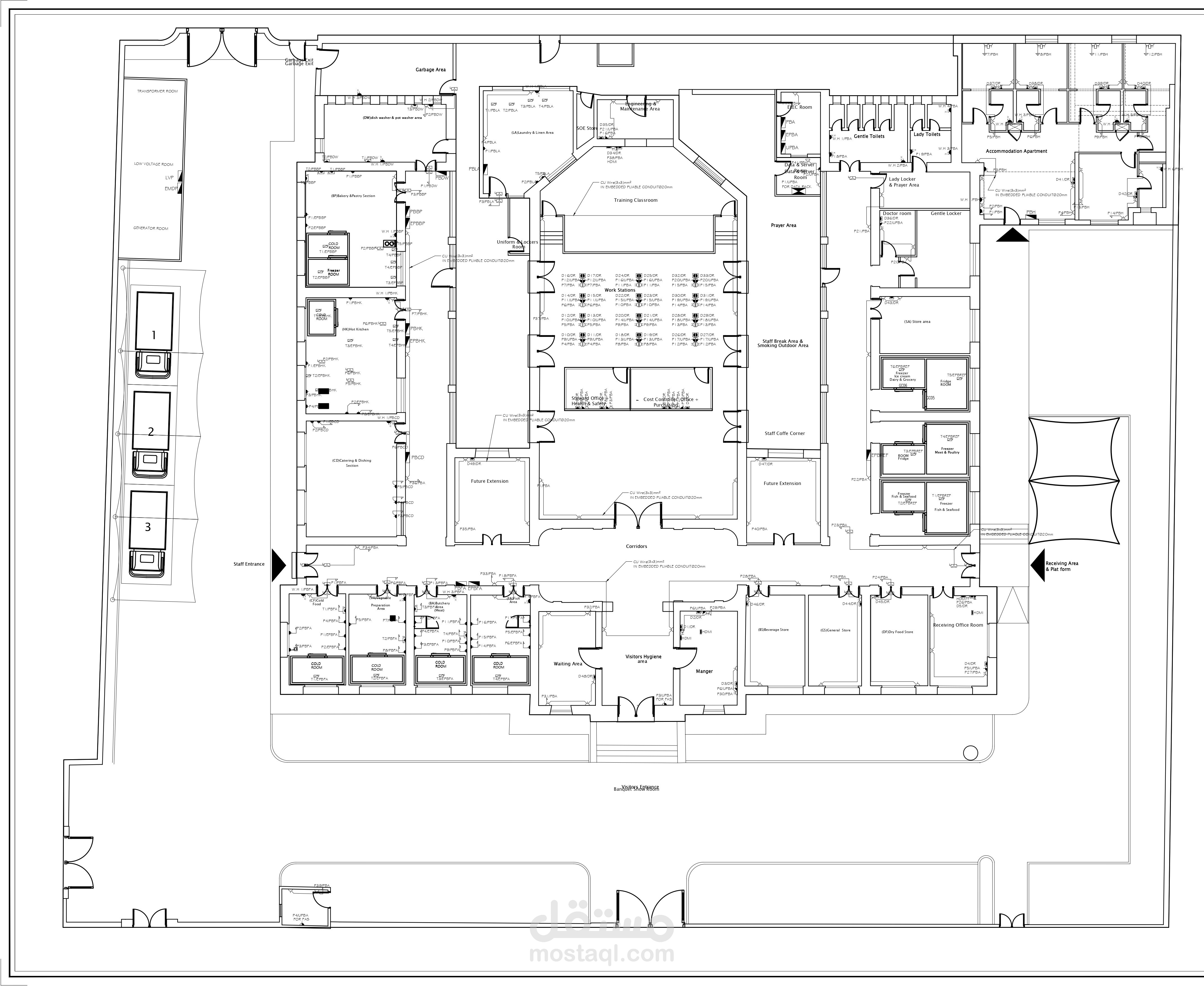
* تصميم منظومات التيار الخفيف (ELV Systems) وتشمل:

* نظام كاميرات المراقبة (CCTV)

* نظام إنذار الحريق (Fire Alarm)

* نظام البيانات (Data Network)

* النظام الصوتي الداخلي (Public Address System)

* إعداد مخططات المسارات الكهربائية والإنفرا (Cable Routing & Infrastructure) بما يتوافق مع متطلبات التشغيل وسهولة الصيانة المستقبلية.

عمل حصر كميات (BOQ) دقيق ومطابق للمخططات النهائية.

إعداد مقايسة تفصيلية (Cost Estimation) للأعمال الكهربائية الكاملة.

البرامج المستخدمة:

AutoCAD – Dialux – Excel – Word – PDF

بطاقة العمل

اسم المستقل
عدد الإعجابات
0
عدد المشاهدات
3
تاريخ الإضافة
تاريخ الإنجاز
المهارات