الرئيسية
المستقلين
Radwa E.
معرض الأعمال
اطلب عمل مماثل
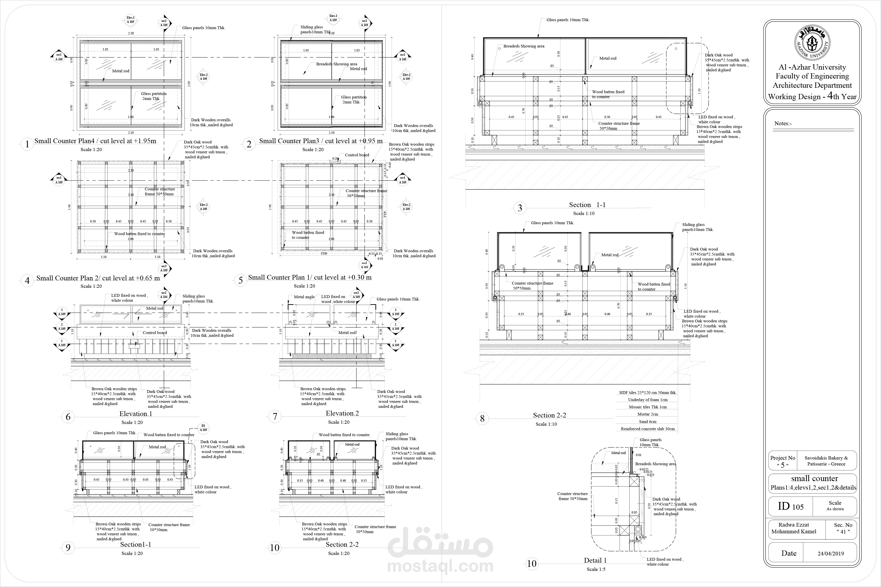
counter working details
تفاصيل العمل
Savoidakis Bakery,Greece -Working design- Main counter details
بطاقة العمل
اسم المستقل
Radwa E.
عدد الإعجابات
0
عدد المشاهدات
868
تاريخ الإضافة
17/08/2019
المهارات
ريفيت
فوتوشوب
أوتوكاد
×