الرئيسية
المستقلين
Dalia N.
معرض الأعمال
مخططات تنفيذية
معرض الأعمال
اطلب عمل مماثل
تفاصيل العمل
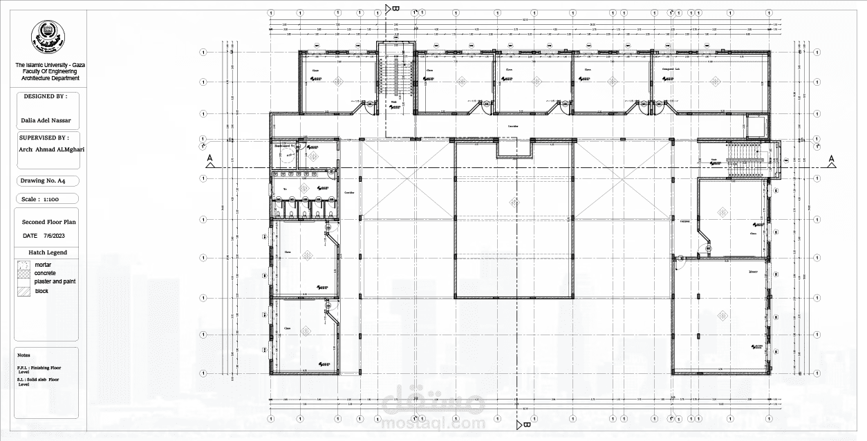
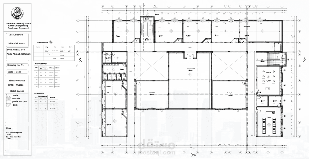
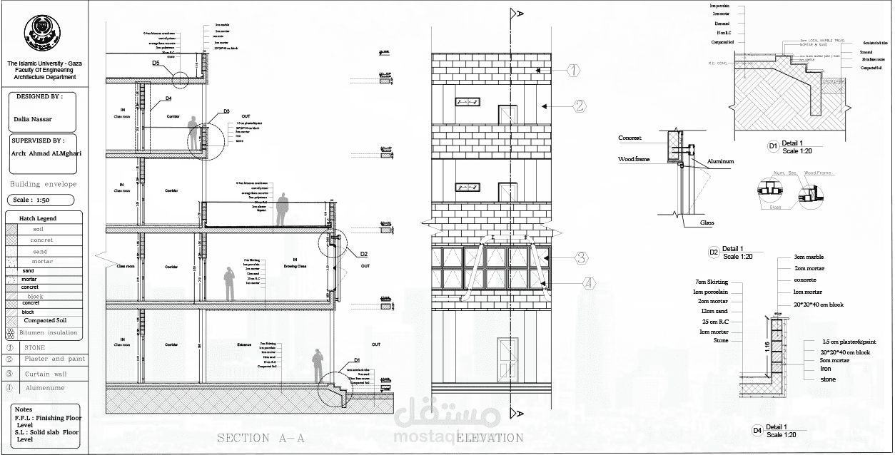
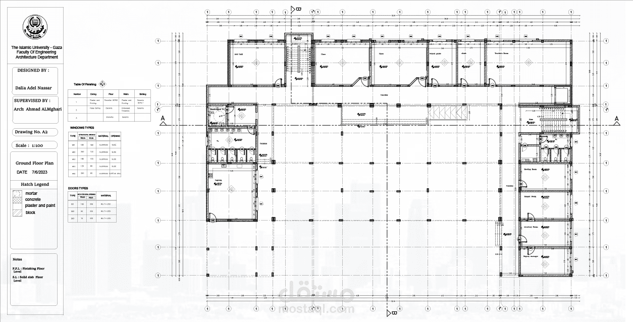
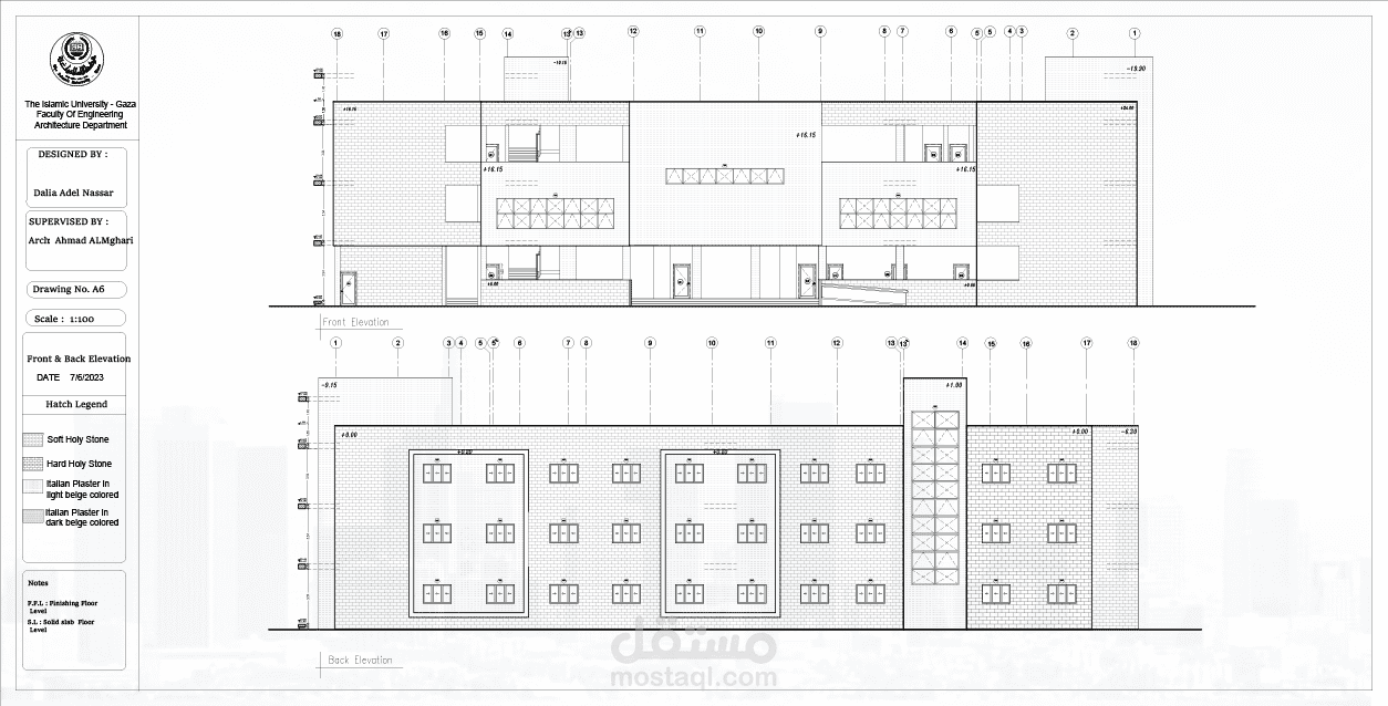
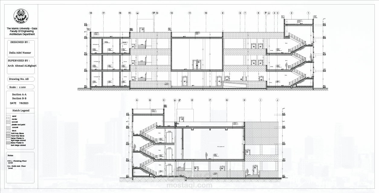
مخططات تنفيذية لمدرسة
بطاقة العمل
اسم المستقل
Dalia N.
عدد الإعجابات
0
عدد المشاهدات
9
تاريخ الإضافة
27/10/2025
تاريخ الإنجاز
10/05/2022
المهارات
أوتوكاد
تصميم معماري
مخططات تنفيذية
تصميم مخططات معمارية
×