الرئيسية
المستقلين
Radwa E.
معرض الأعمال
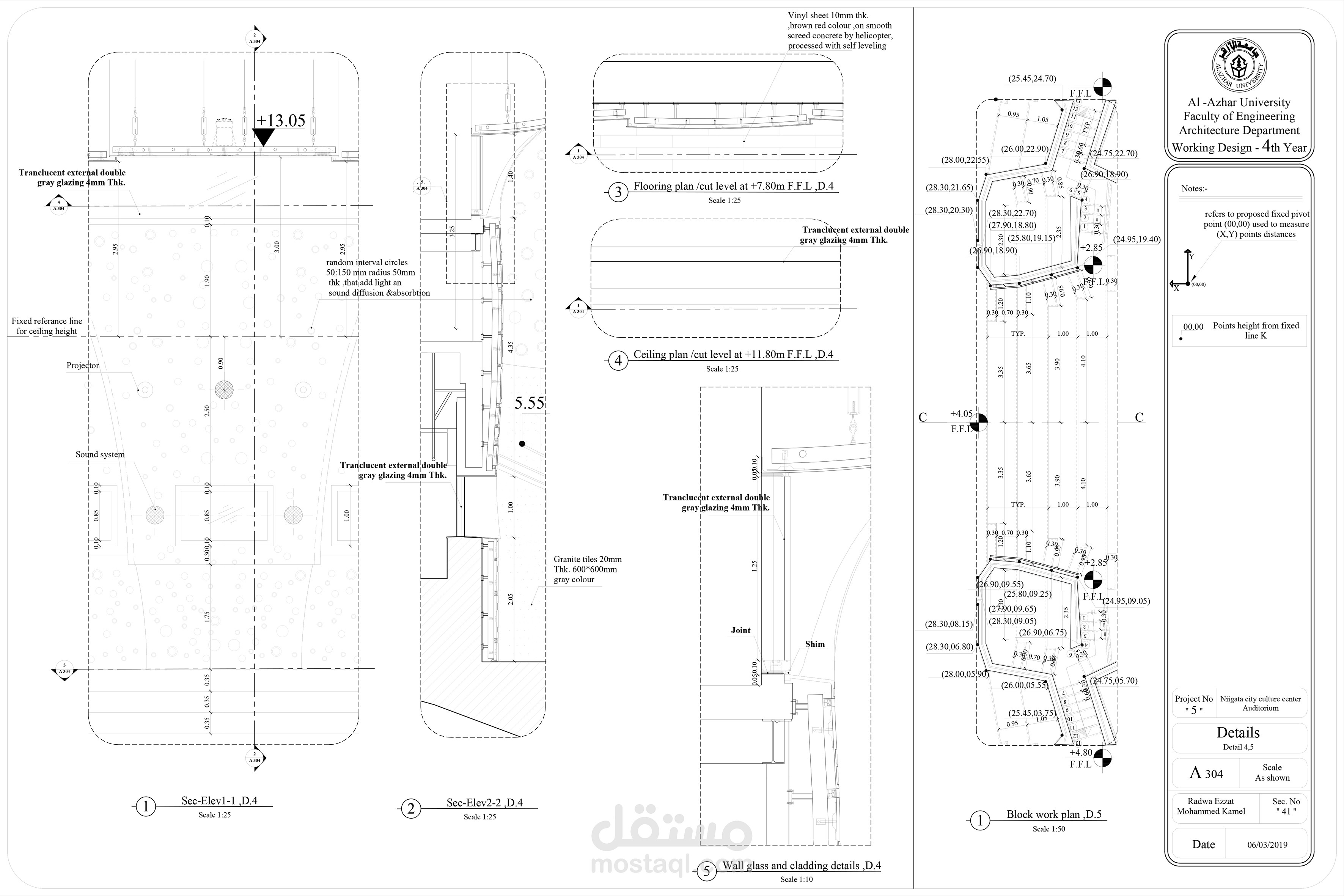
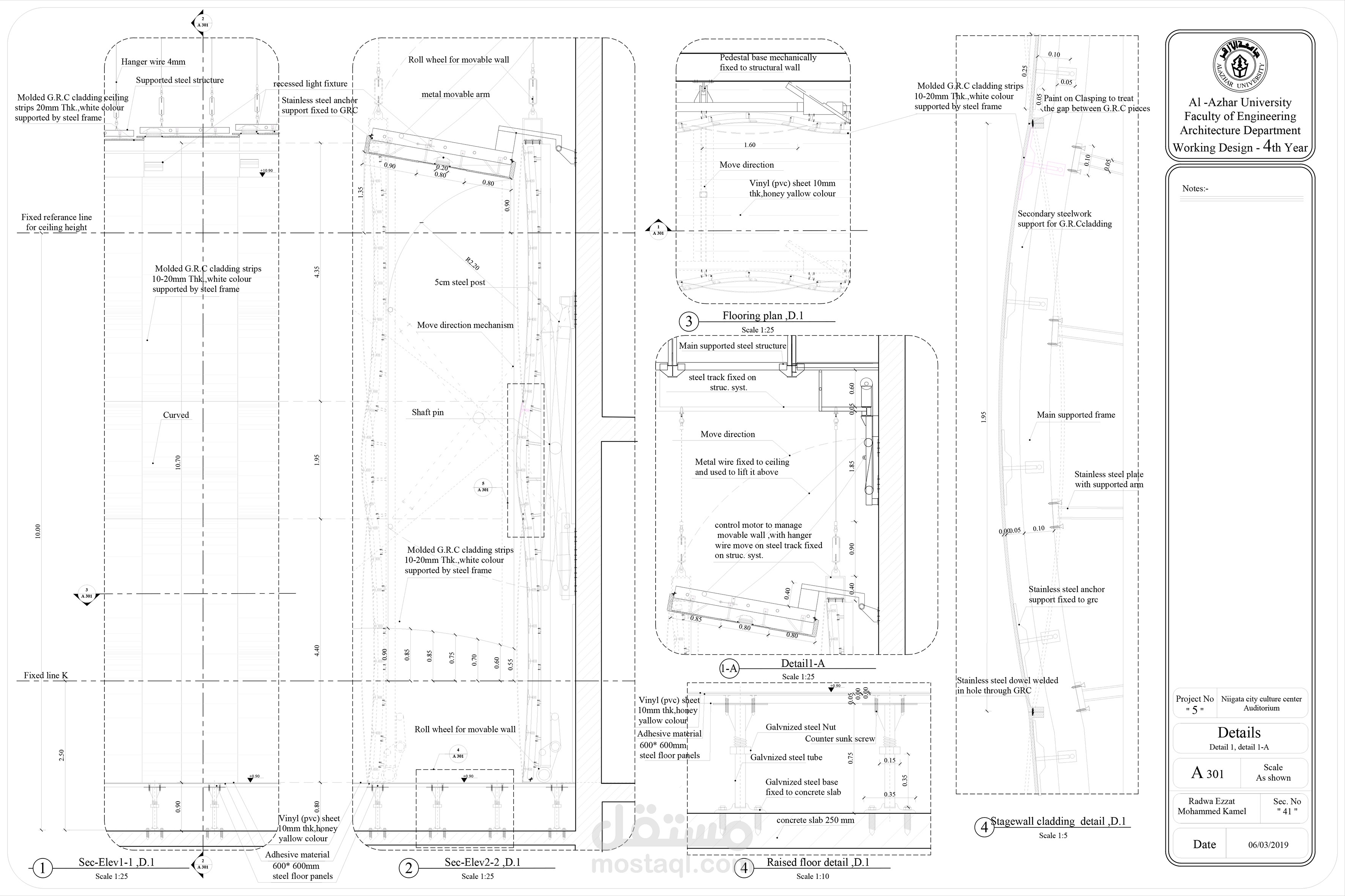
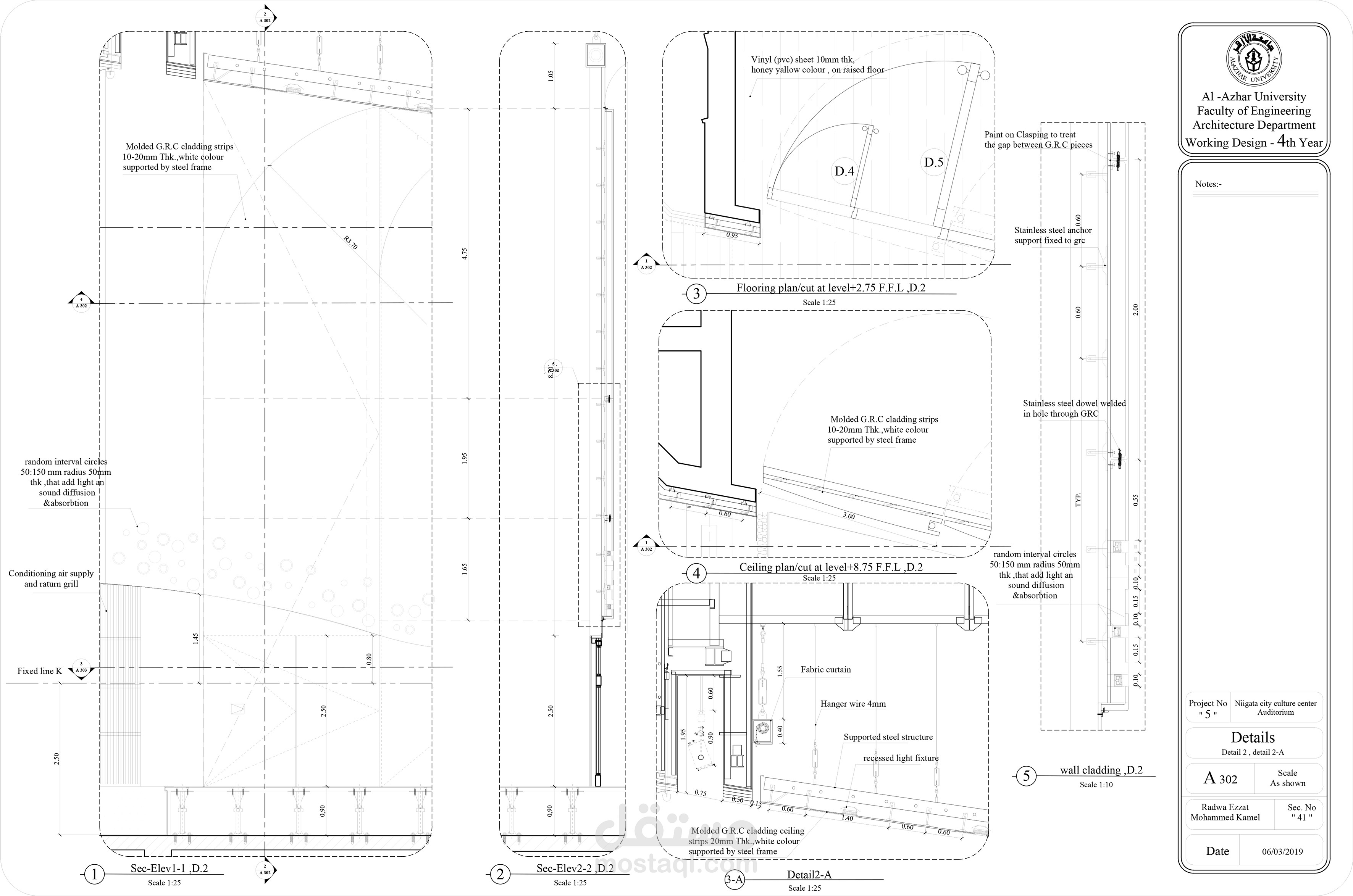
Auditorium Working design
معرض الأعمال
اطلب عمل مماثل
تفاصيل العمل
Niigata city culture center Auditorium ,Japan -Working design
بطاقة العمل
اسم المستقل
Radwa E.
عدد الإعجابات
0
عدد المشاهدات
166
تاريخ الإضافة
17/08/2019
المهارات
فوتوشوب
أوتوكاد
×