تفاصيل العمل

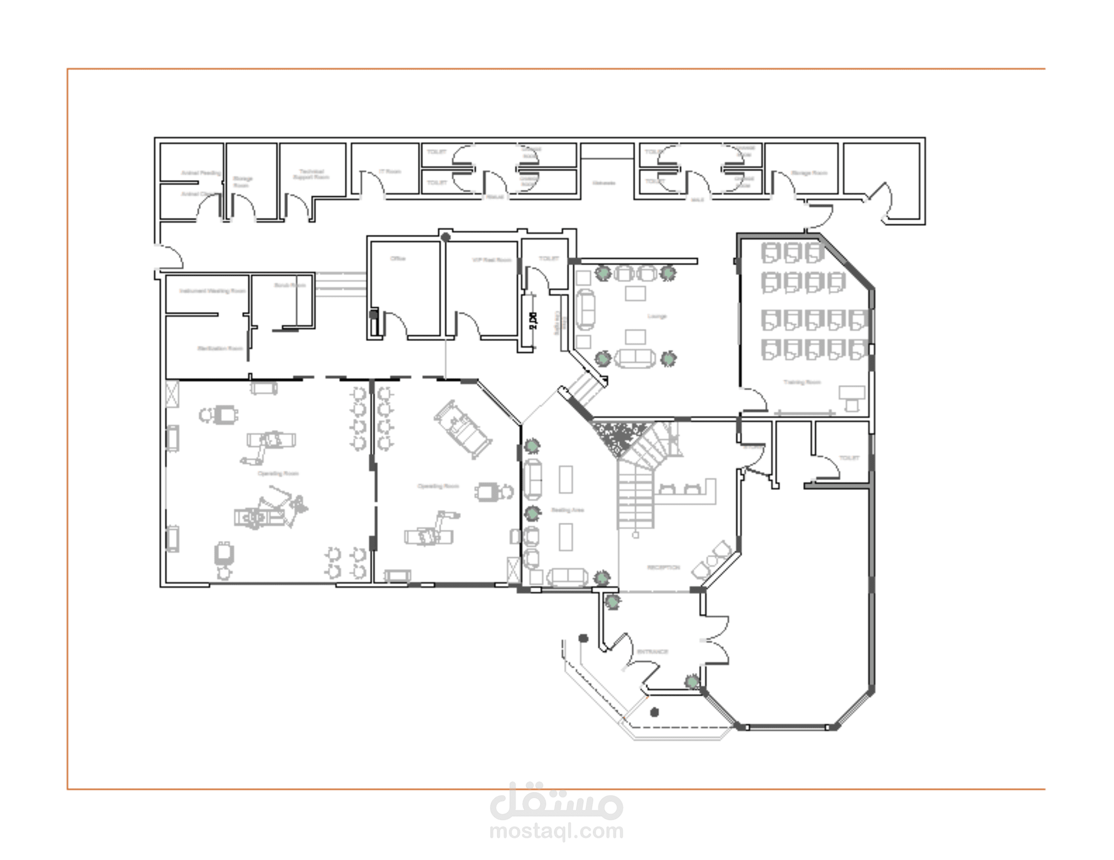
project is a Smart Medical Center that explores how robotics and advanced technologies can be integrated into healthcare to enhance treatment efficiency and the overall patient experience. The design concept combines futuristic architecture with innovative technology, reflecting the spirit of progress and precision in the medical field.

The center includes specialized departments such as intelligent operating rooms, robotic research labs, medical training areas, outpatient clinics, and innovation hubs. The project is designed to suit the climatic conditions of Saudi Arabia, emphasizing sustainable materials and energy-efficient solutions.

The main concept focuses on the interaction between humans and machines, creating a visionary model for the future of healthcare driven by technology and smart architecture.

بطاقة العمل

اسم المستقل
عدد الإعجابات
0
عدد المشاهدات
5
تاريخ الإضافة
تاريخ الإنجاز
المهارات