تفاصيل العمل

المصنع مصمم لصناعة الفوم

يتكون المصنع من 8 باكيات كاملة

المصنع مصمم ببرنامج ال Auto CAD

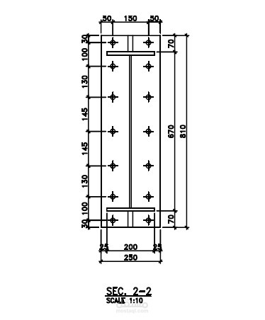
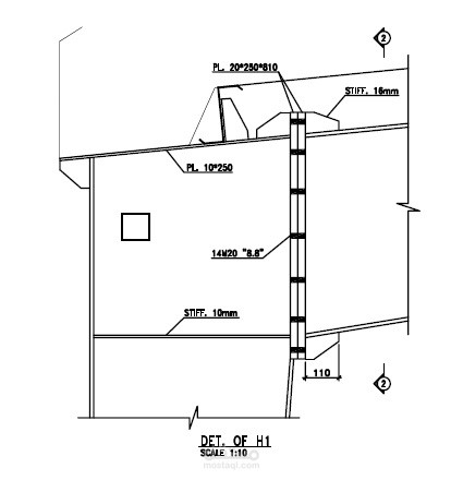
يوضح الرسم الهندسى المرفق كافة مخططات المصنع من الواجهة الرئيسية والواجهة الجانبية وكافة ال Details والسكاشن المرفقة

صمم المصنع بباكيتين من ال Bracing وباكية وسطى .. وذلك لأقصى مقاومة لعامل الرياح وذلك أيضا يعطى المبنى عوامل أمان أكثر فاعلية.

بطاقة العمل

اسم المستقل
عدد الإعجابات
0
عدد المشاهدات
7
تاريخ الإضافة
تاريخ الإنجاز
المهارات