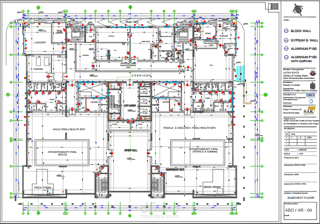
Sheikh Hamad Bin Khalifa Al Thani Hospital for Rehabilitation And Prostheic Limbs Project

تفاصيل العمل

مستشفى الشيخ حمد في غزة

متابعة أعمال التنفيذ كافة و اعداد مخططات shop drawing و أعمال حصر الكميات و المستخلصات

بطاقة العمل

اسم المستقل
عدد الإعجابات
0
عدد المشاهدات
546
تاريخ الإضافة
تاريخ الإنجاز