تفاصيل العمل

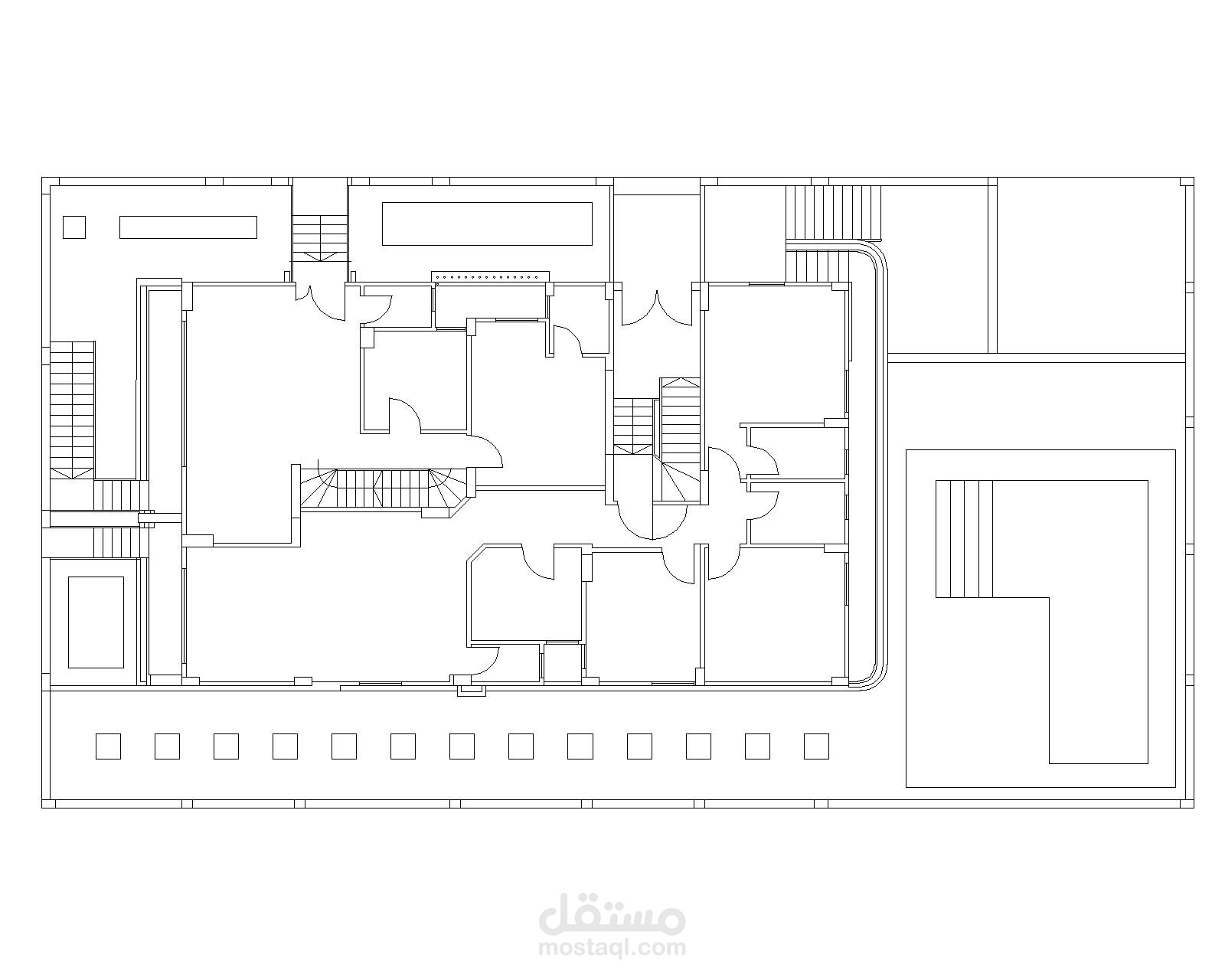
يتميز هذا المطعم بتصميم داخلي صناعي عصري يمزج بين العملية والطابع الجريء، مع توزيع فراغات مدروس يعزز انسيابية الحركة وسرعة الخدمة، وهو ما يتناسب مع طبيعة مطاعم الـFast Food.

مساحة الجلوس: توزيع مرن للطاولات والكراسي الخشبية مع قواعد معدنية سوداء وأسطح داكنة، مما يعكس الطابع الصناعي. تم دمج جلسات فردية وطاولات جماعية وكبائن جانبية لتحقيق الخصوصية وتنوع الاستخدام.

الخامات والألوان: أرضيات خرسانية رمادية، أثاث خشبي بألوان طبيعية، ولمسات معدنية سوداء في الفواصل والديكورات لإبراز الروح الـIndustrial.

الإضاءة والزينة: نباتات صغيرة متناثرة على الأطراف لتخفيف حدة الطابع الصناعي ومنح إحساس بالدفء، مع إمكانية استخدام إضاءة معدنية معلقة أو إضاءات سبوتات مكشوفة تضيف جو المصانع.

منطقة المطبخ والخدمة: مطبخ مفتوح طويل في منتصف التصميم يتيح سهولة تحضير الطلبات وسرعة التوزيع، مع وجود كاونترات تقديم واضحة وأجهزة متطورة في منطقة العمل.

الخدمات والمرافق: حمامات منظمة، وغرف إدارية صغيرة للموظفين، مع ممرات واضحة الحركة لضمان خدمة فعالة للعملاء.

هذا الدمج بين الخامات الخام والألوان المحايدة والمساحات المفتوحة يمنح المكان هوية قوية وحديثة تناسب تمامًا مفهوم مطعم فاست فود سريع الإيقاع بستايل صناعي أنيق.

بطاقة العمل

اسم المستقل
عدد الإعجابات
0
عدد المشاهدات
2
تاريخ الإضافة
تاريخ الإنجاز
المهارات