Residential Serviced Apartments Fire Fighting & Water Supply Design

تفاصيل العمل

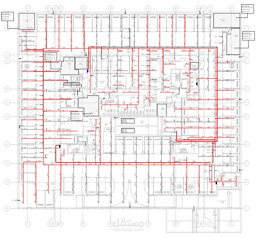
Key Deliverables:

Fire Fighting system drawings (plans, sections, and details) showing:

− Fire water storage tank layout & capacity.

− Fire pump room layout.

− Underground & aboveground fire water network plans.

− Sprinkler & standpipe systems layout.

− FHC, fire extinguisher, & landing valve locations.

− Special suppression system layouts (FM200, Foam, Co2, etc.).

Water Supply system drawings (plans, sections, and details) showing:

− Site water supply layout (connection from main to building).

− Underground water tank and pump room layout.

− Riser diagrams for cold & hot water supply.

− Distribution layouts for each floor (including pipe sizing & fixture connections).

− Hot water generation system (solar collectors with storage tanks).

− Solar collector layout on the roof with piping from collectors to storage tanks.

بطاقة العمل

اسم المستقل
عدد الإعجابات
0
عدد المشاهدات
10
تاريخ الإضافة