تفاصيل العمل

الهدف من المشروع:

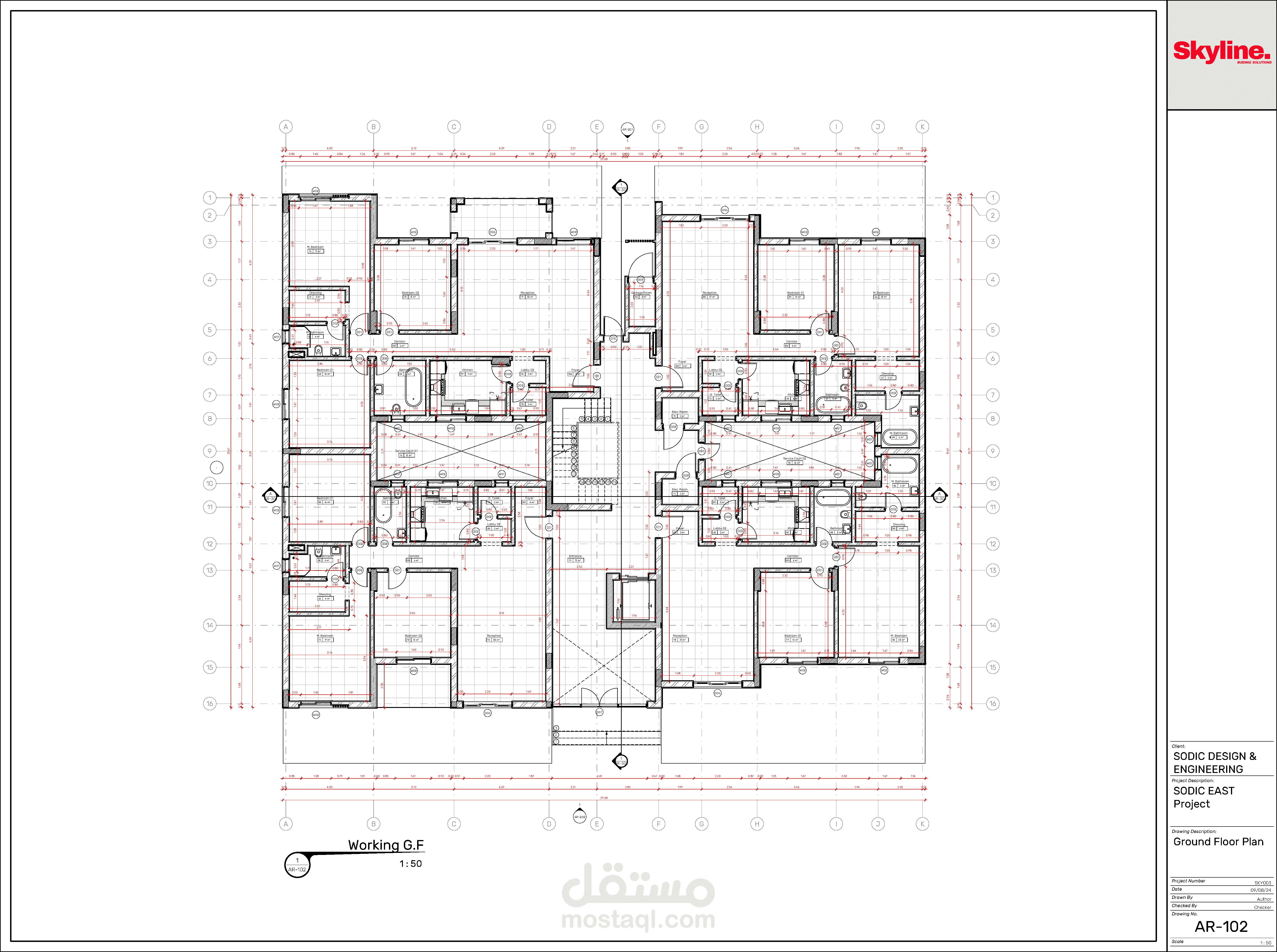
تحويل تصميم كامل لمبنى سكني مكون من أربعة طوابق من رسومات ثنائية الأبعاد (AutoCAD) إلى نموذج معلومات بناء (BIM) ثلاثي الأبعاد ومتكامل باستخدام برنامج Revit. الهدف كان تطبيق مهارات التحويل الرقمي لرفع دقة التصميم وتسهيل استخراج الرسومات التنفيذية.

منهجية العمل:

التحويل والنمذجة (CAD to BIM): تم استخدام ملفات الأوتوكاد الأصلية كمرجع أساسي لبناء النموذج بالكامل داخل بيئة الريفيت. تم نمذجة كافة العناصر المعمارية والإنشائية، بدءاً من الحوائط والأعمدة وحتى أدق التفاصيل في الأبواب والشبابيك، مما ضمن تطابقاً كاملاً مع التصميم الأصلي مع إضافة بُعد معلوماتي جديد.

التوثيق واستخراج الرسومات: بعد اكتمال النموذج، تم استخراج كافة المساقط الأفقية والواجهات والقطاعات بشكل تلقائي من النموذج ثلاثي الأبعاد، مما يضمن دقة عالية وتناسقاً كاملاً بين جميع الرسومات.

الإظهار والعرض النهائي (Presentation Design): لتقديم المشروع بصورة احترافية وجذابة، تم تصدير اللقطات والمناظير من نموذج الريفيت. بعد ذلك، تم تصميم لوحات العرض النهائية (Presentation Boards) بالكامل باستخدام برنامج Photoshop، حيث تم دمج اللقطات مع المخططات والرسومات في تكوين فني متكامل يبرز جماليات التصميم ويوضح فكرته بأسلوب بصري مميز.

الأدوات والبرامج:

Revit, AutoCAD, Photoshop.