تفاصيل العمل

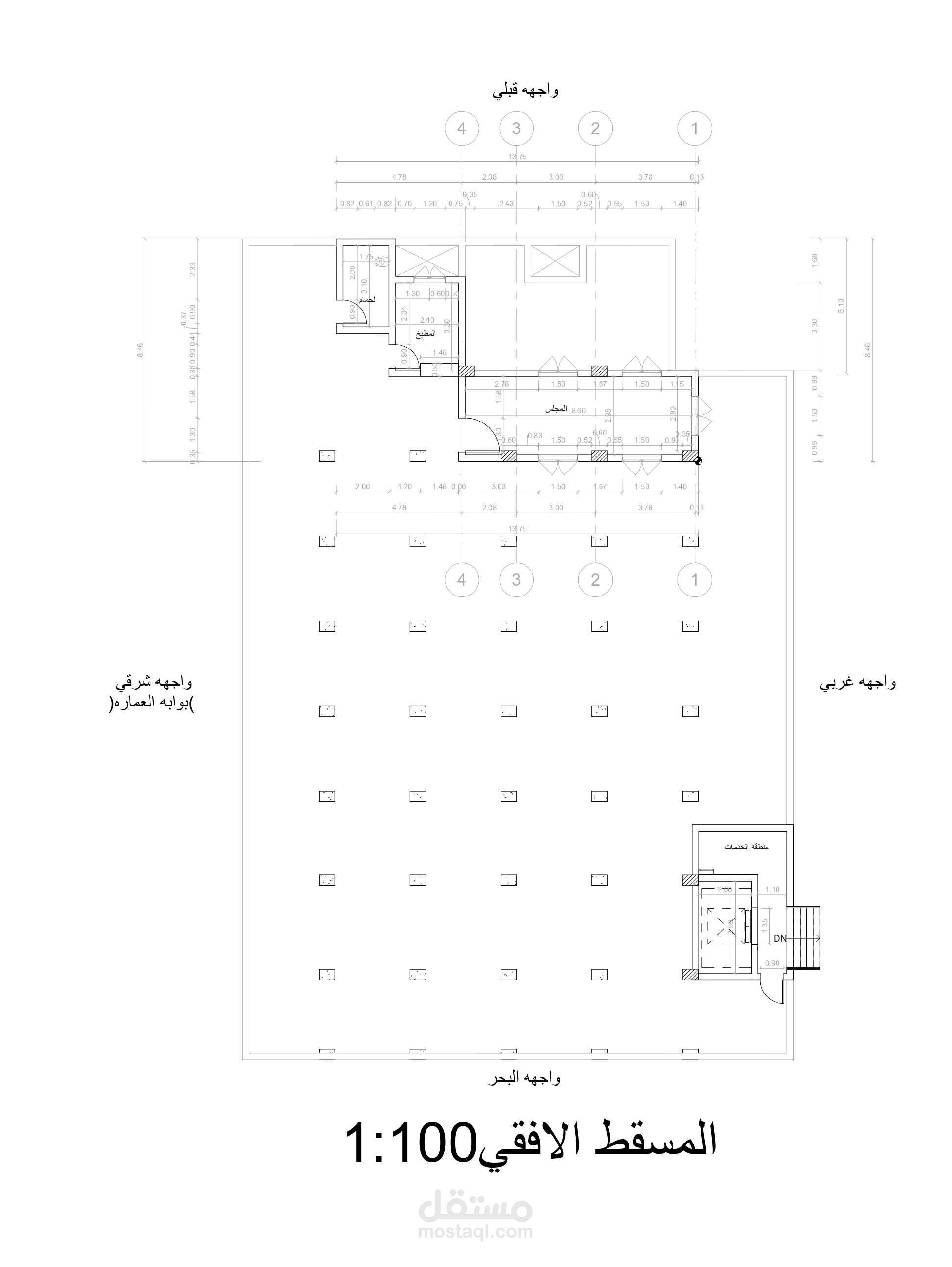
تصميم معماري لروف سكني يضم مجلس واسع للاستقبال، مطبخ عملي، وحمام، مع استغلال المساحة لتحقيق أقصى درجات الراحة والخصوصية. تم الاهتمام بربط الفراغات بشكل سلس وتوفير إضاءة وتهوية طبيعية. التصميم تم تنفيذه باستخدام Revit

بطاقة العمل

اسم المستقل
عدد الإعجابات
0
عدد المشاهدات
12
تاريخ الإضافة
تاريخ الإنجاز