الرئيسية
المستقلين
Ahmed O.
معرض الأعمال
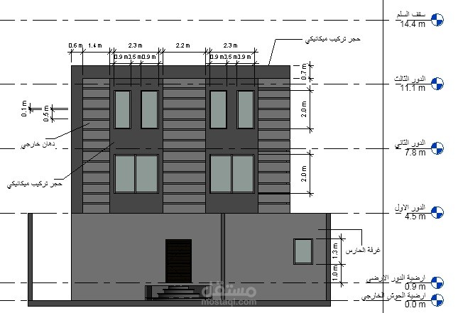
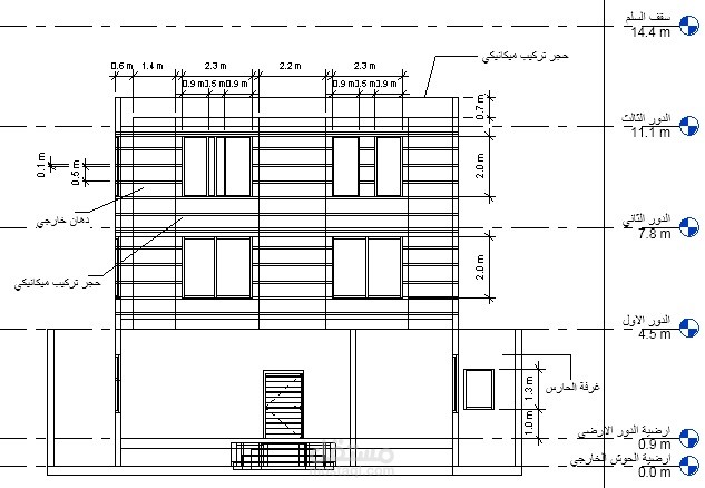
مخطط واجهة
معرض الأعمال
اطلب عمل مماثل
تفاصيل العمل
مخطط واجهة
بطاقة العمل
اسم المستقل
Ahmed O.
عدد الإعجابات
0
عدد المشاهدات
354
تاريخ الإضافة
30/06/2019
تاريخ الإنجاز
12/06/2019
المهارات
تصميم منزل
×