تفاصيل العمل

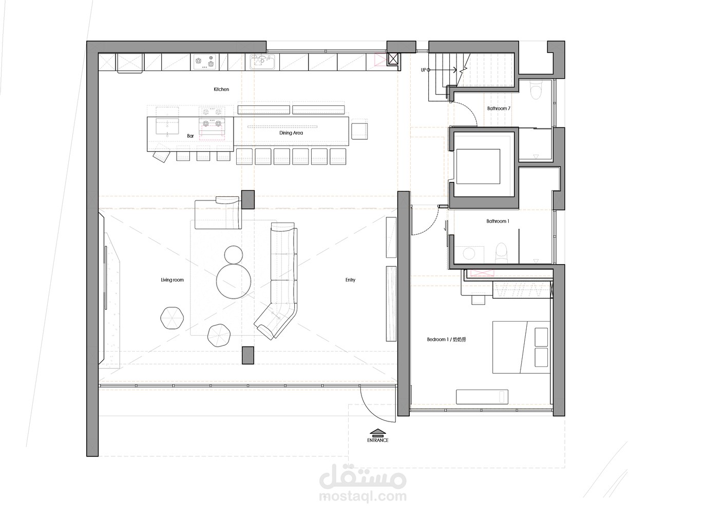
التصميم يظهر ال imperfections و جمال عدم الانتظام و جمال البساطة في التصميم و الهدوء، التصميم على اسلوب Wabi-sabi style باستخدام الخامات الطبيعية و الالوان الهادئة.

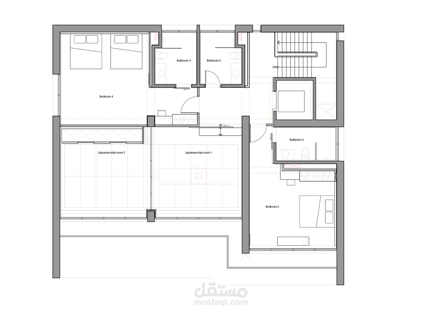
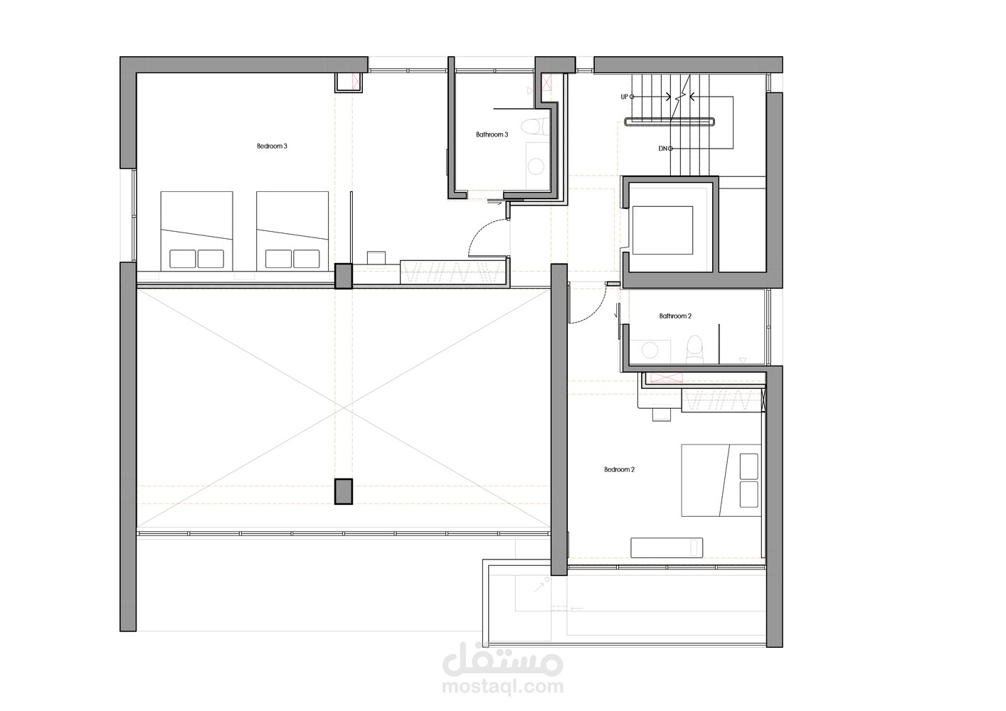
العمل اعتمد على قراءة مخططات هندسية ثم بناء النموذج ثلاثي الابعاد ببرنامج 3ds max و بلندر و تصميم الفراغ باسلوب الوابي سابي

بطاقة العمل

اسم المستقل
عدد الإعجابات
0
عدد المشاهدات
9
تاريخ الإضافة
تاريخ الإنجاز
المهارات