مخطط معماري لـ قطعة أرض مساحة 400 م2 - المملكة العربية السعودية

تفاصيل العمل

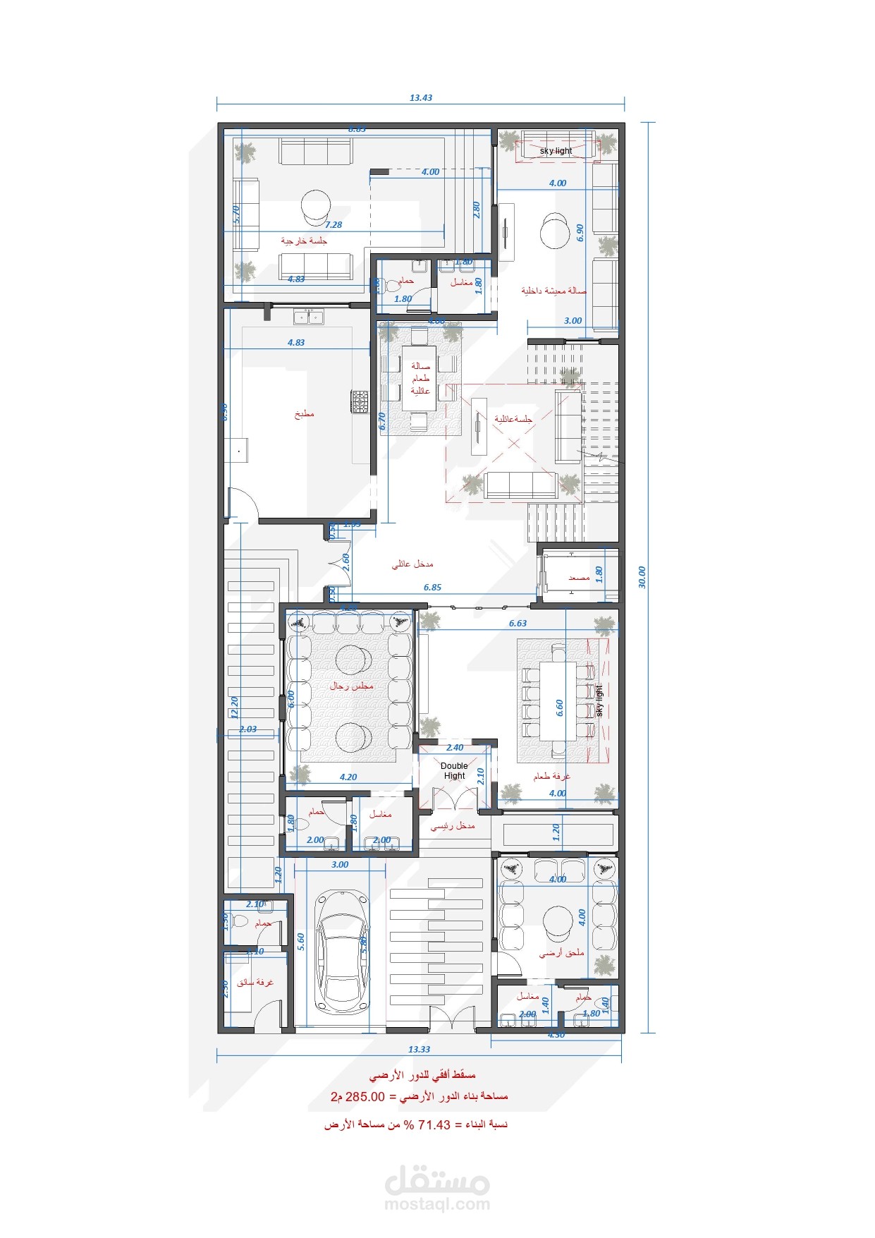
تصميم معماري لـ فيلا سكنية – مساحة الأرض 400 م2

قمت بإعداد تصميم معماري متكامل لـ فيلا سكنية على مساحة بناء 400 م² بنسبة بناء 71.43%، مع توزيع وظيفي عملي ومراعاة كاملة للخصوصية والتهوية والإضاءة الطبيعية.

مواصفات التصميم:

مدخل رئيسي ومجلس رجال مع دورة مياه مستقلة.

مجلس نساء مطل على فناء داخلي مفتوح لتوفير الإضاءة والتهوية.

صالة معيشة عائلية مركزية بجوار الدرج لتوزيع الفراغات بمرونة.

مطبخ رئيسي واسع مع مخزن، ومطبخ تحضيري منفصل.

غرفتا نوم (إحداهما ماستر بحمام داخلي).

غرفة خادمة + غرفة سائق بدورات مياه خاصة.

جراج سيارة .

فناء داخلي مكشوف في قلب التصميم لخلق بيئة مريحة ومنفتحة.

دورات مياه موزعة تخدم جميع الفراغات بكفاءة.

بطاقة العمل

اسم المستقل
عدد الإعجابات
0
عدد المشاهدات
5
تاريخ الإضافة
تاريخ الإنجاز
المهارات