تفاصيل العمل

مشروع فيلا سكنيةWorking Drawings

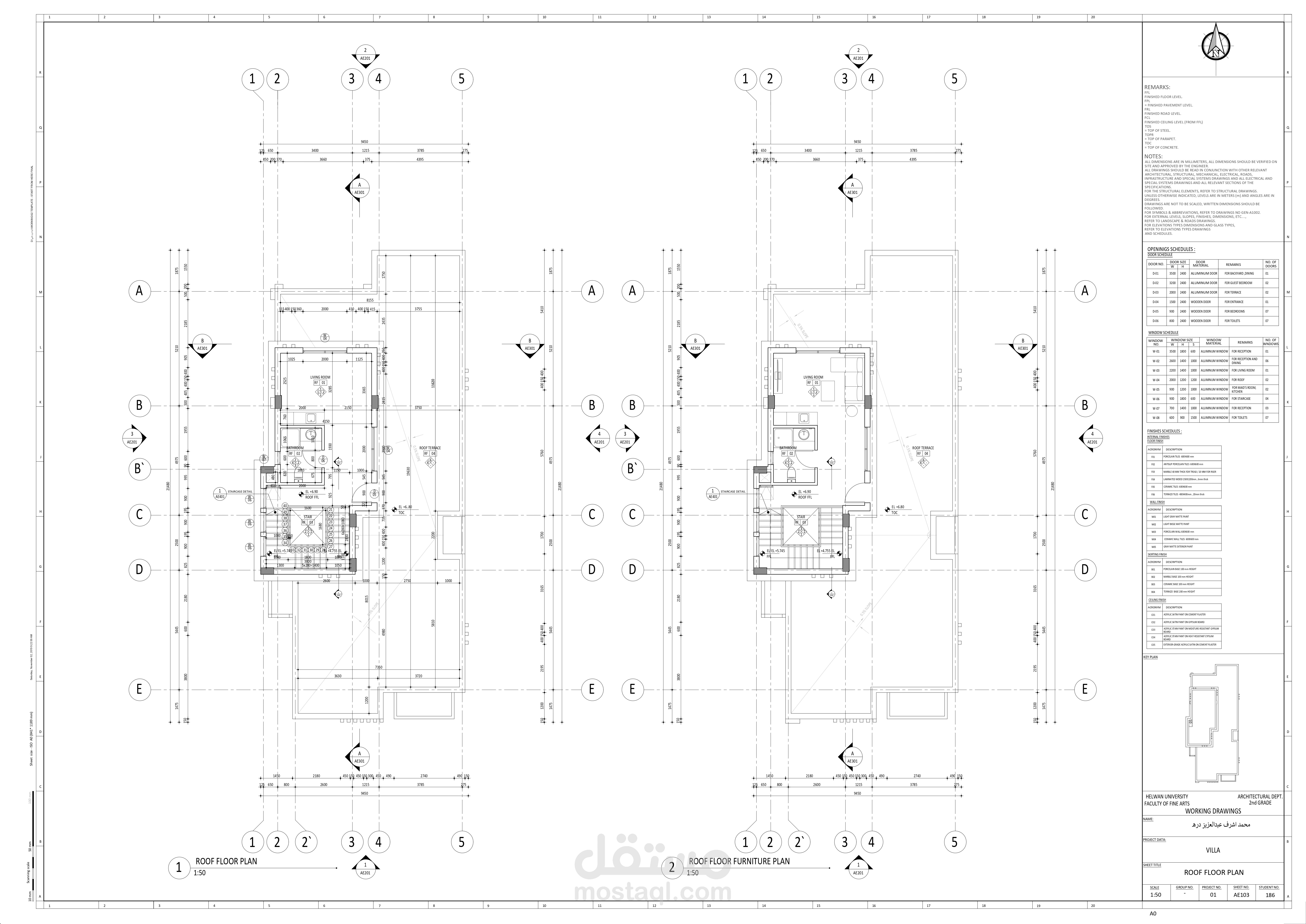
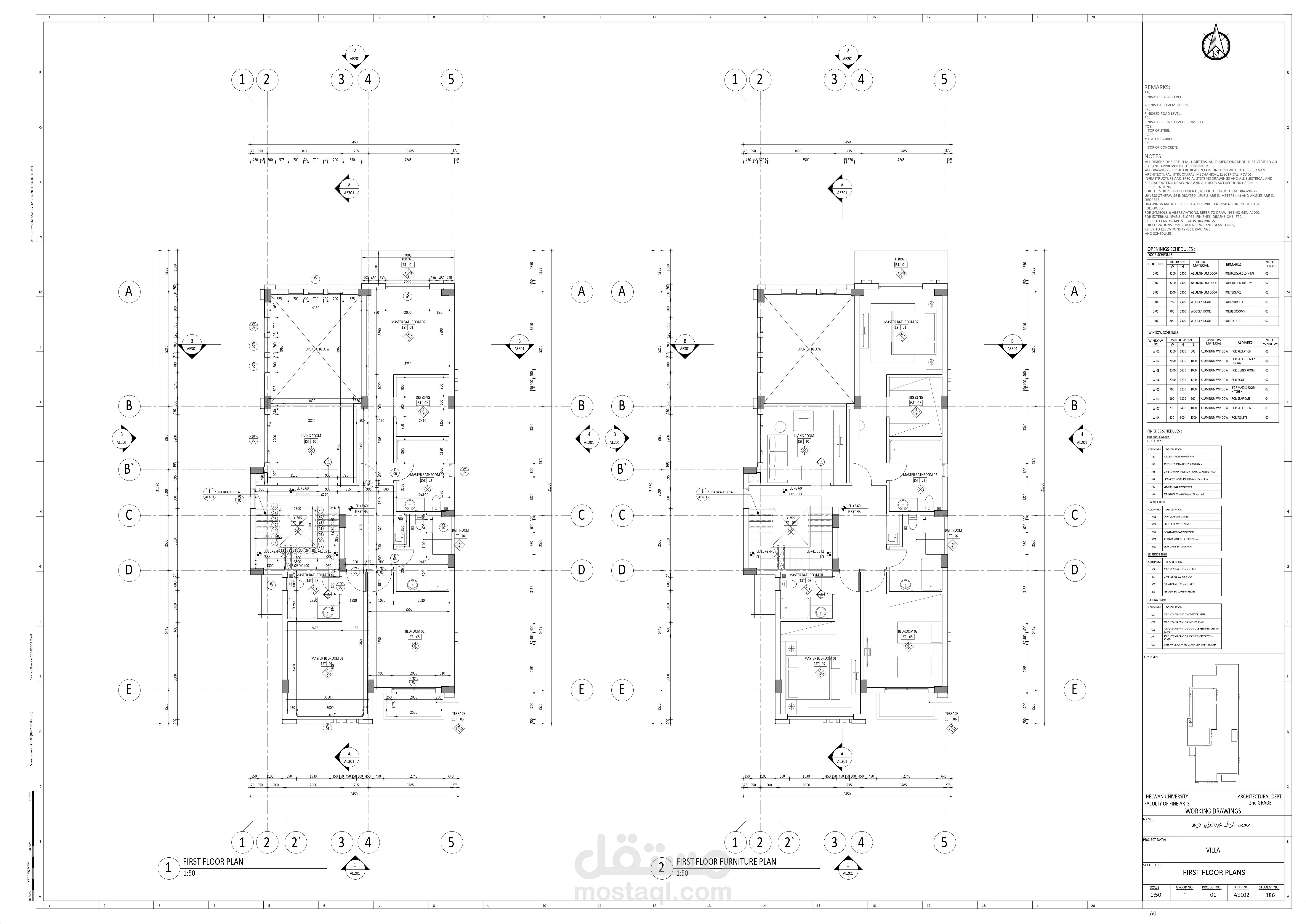
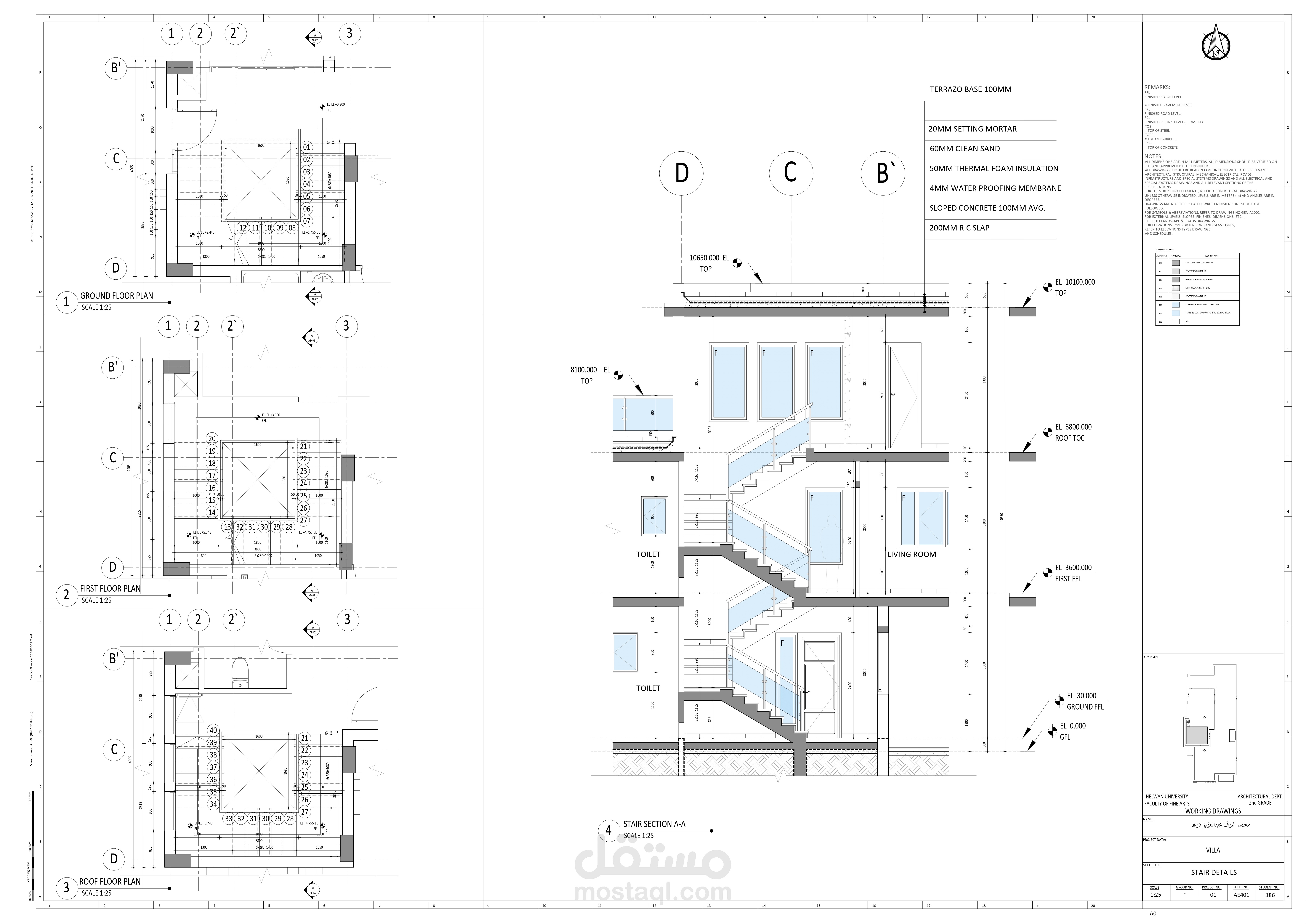
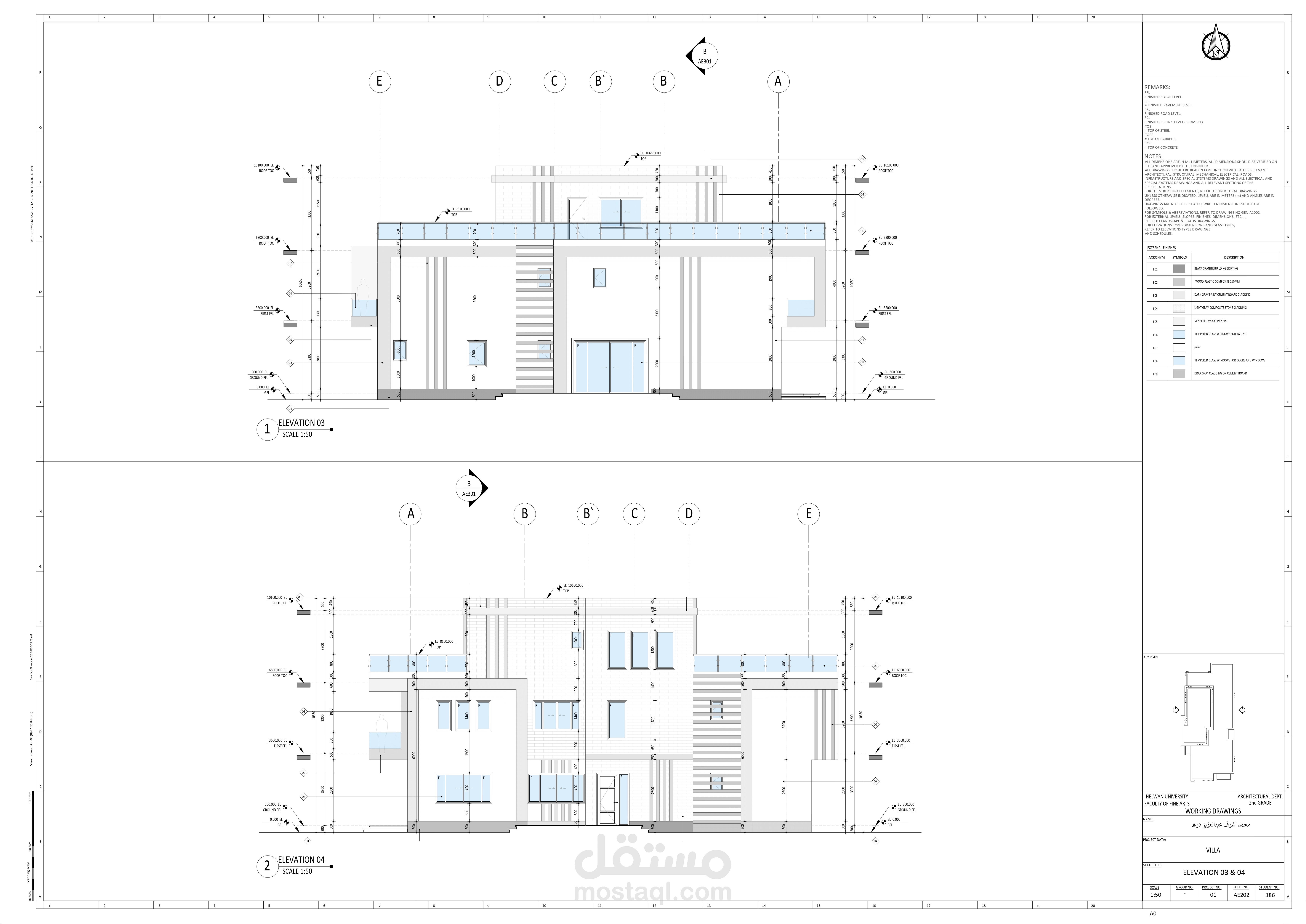
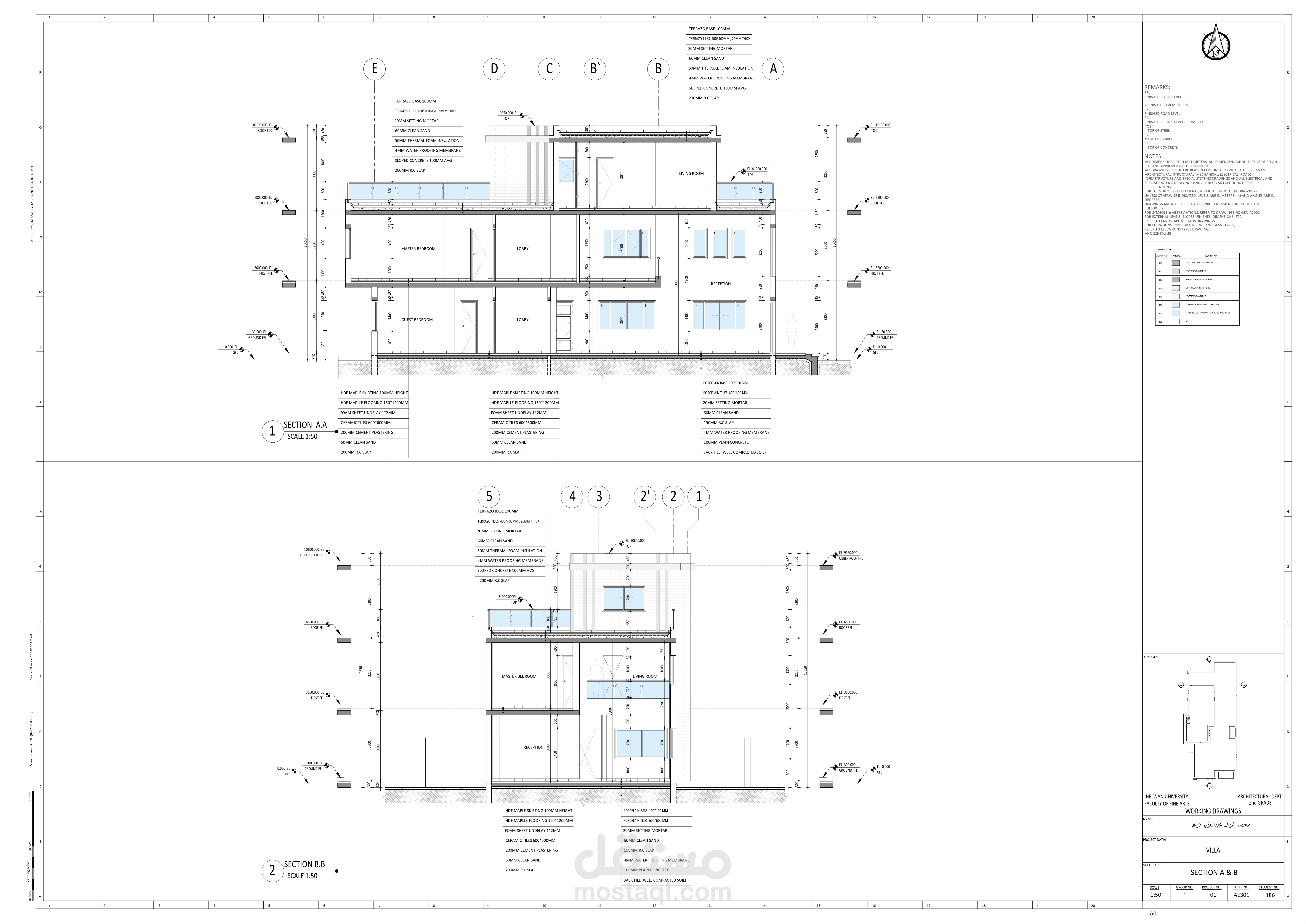
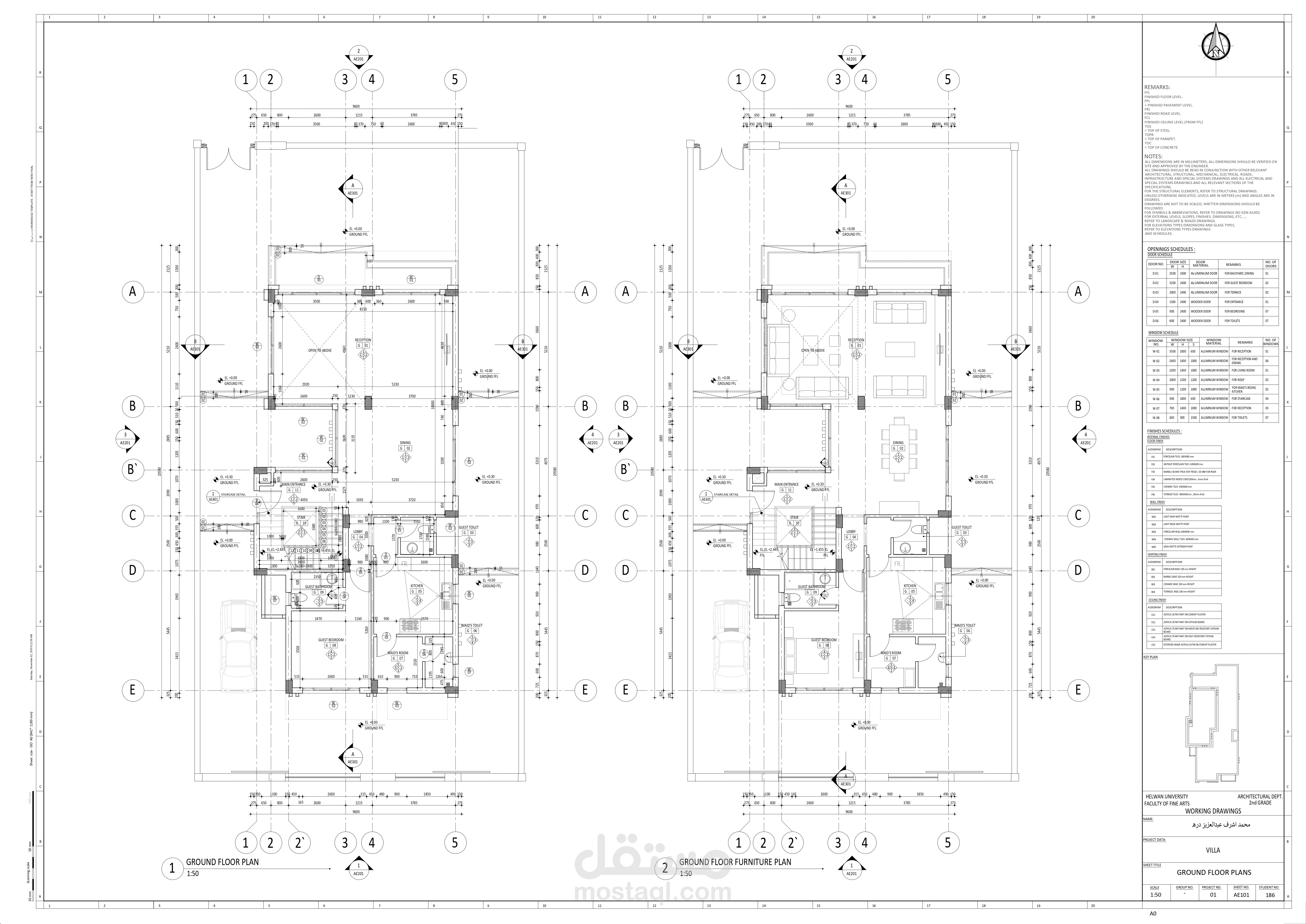
يتضمن المشروع مجموعة شاملة من اللوحات التنفيذية تغطى جميع الجوانب المعمارية و التفصيلية من المبنى منها:

المساقط الأفقية المفروشة

الواجهات

القطاعات

تفاصيل الأدراج والنوافذ والأبواب

جداول التشطيبات والخامات

الأسقف والسطح

يتجه المشروع لتقديم وثائق تنفيذية دقيقة قابلة للتطبيق في الموقع، مع مراعاة المواصفات القياسية والاشتراطات المعمارية الفعلية

بطاقة العمل

اسم المستقل
عدد الإعجابات
1
عدد المشاهدات
11
تاريخ الإضافة
تاريخ الإنجاز
المهارات