الرئيسية
المستقلين
Hanan G.
معرض الأعمال
اطلب عمل مماثل
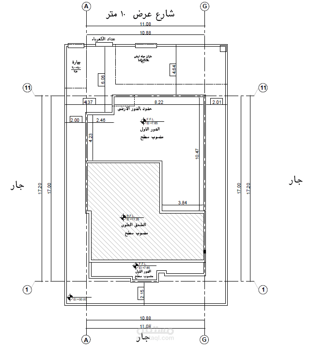
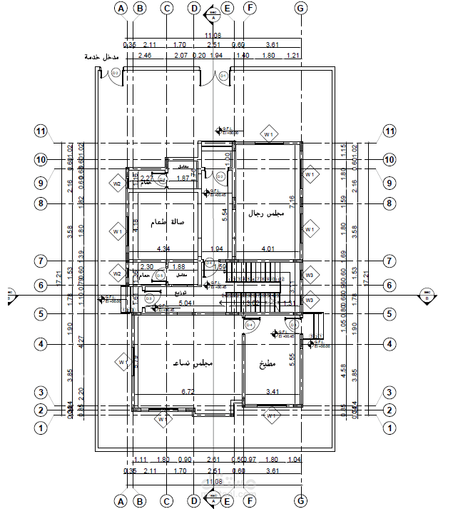
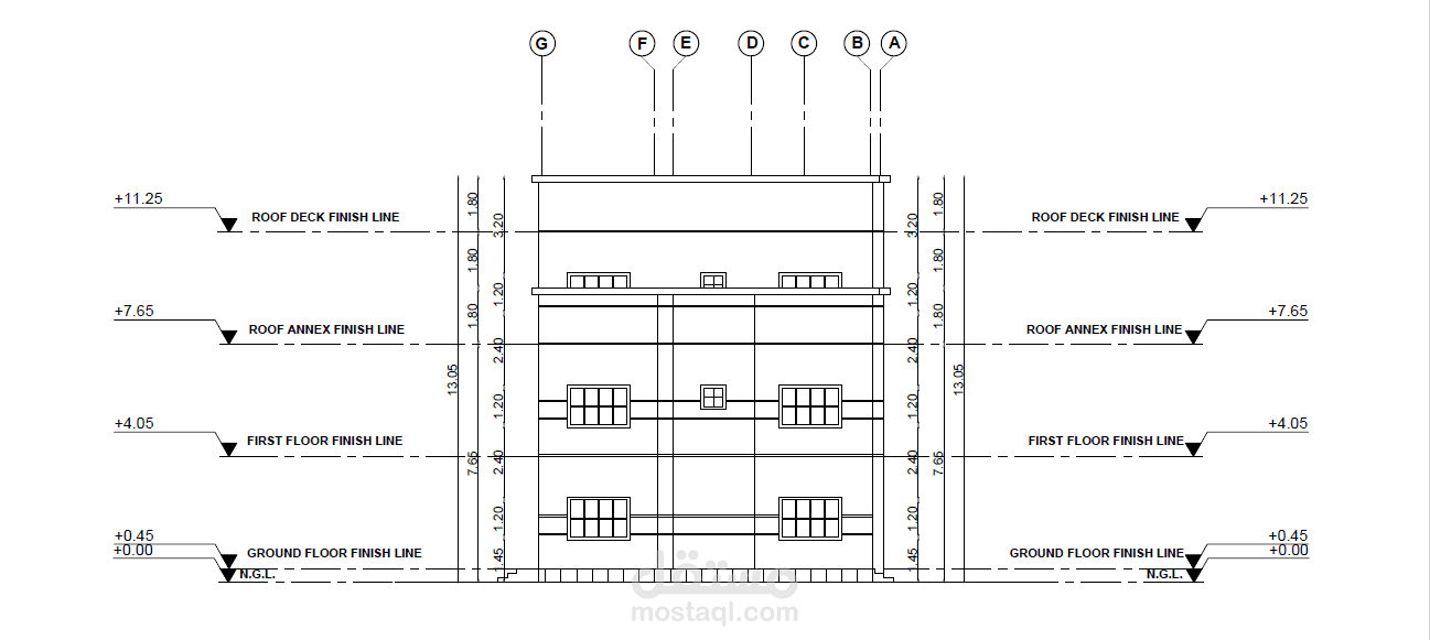
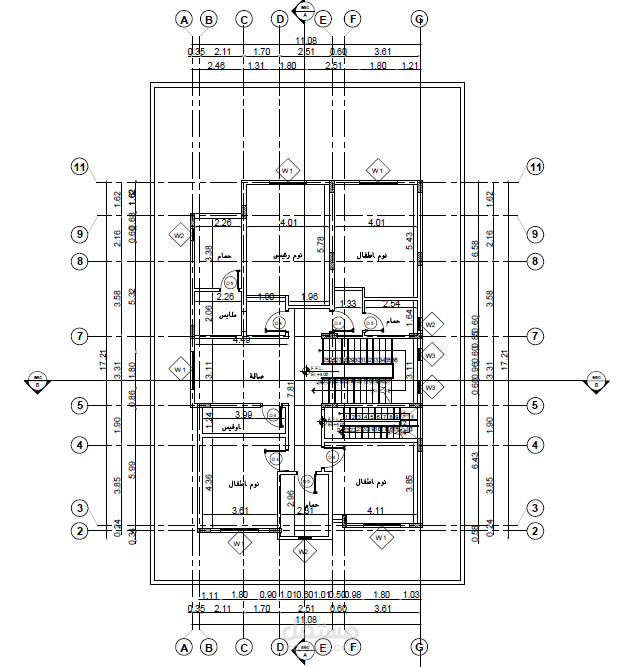
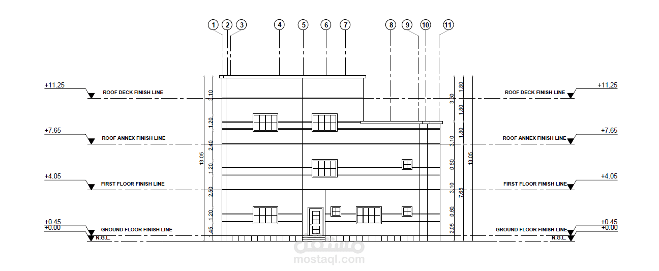
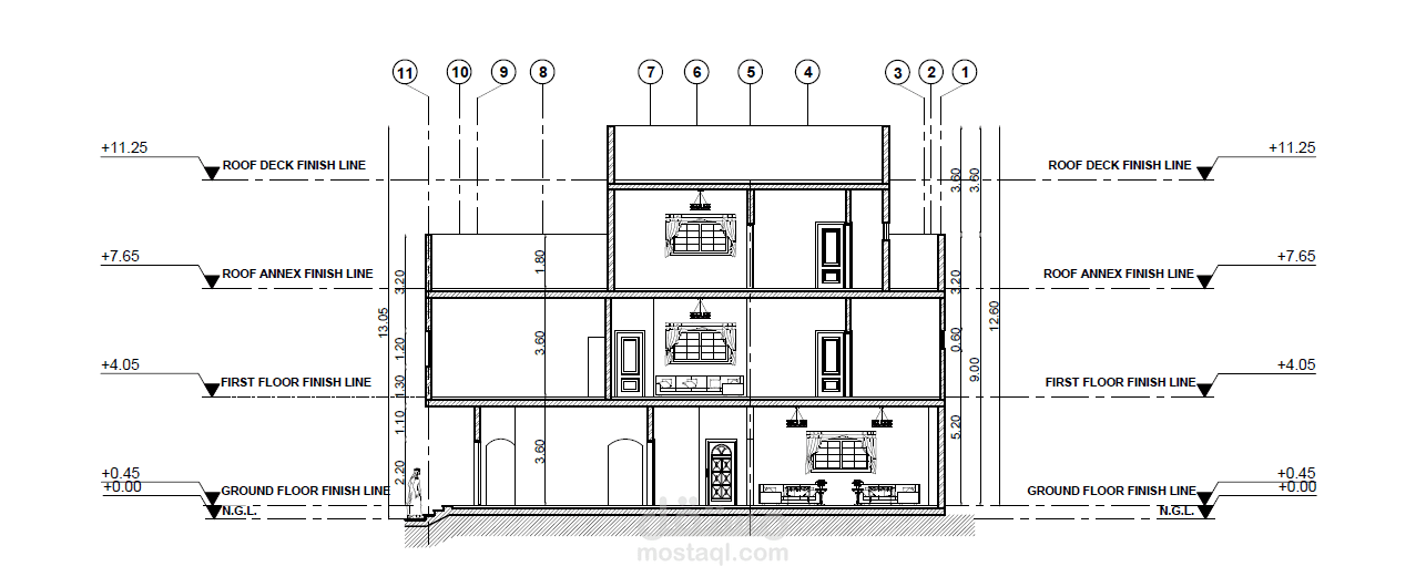
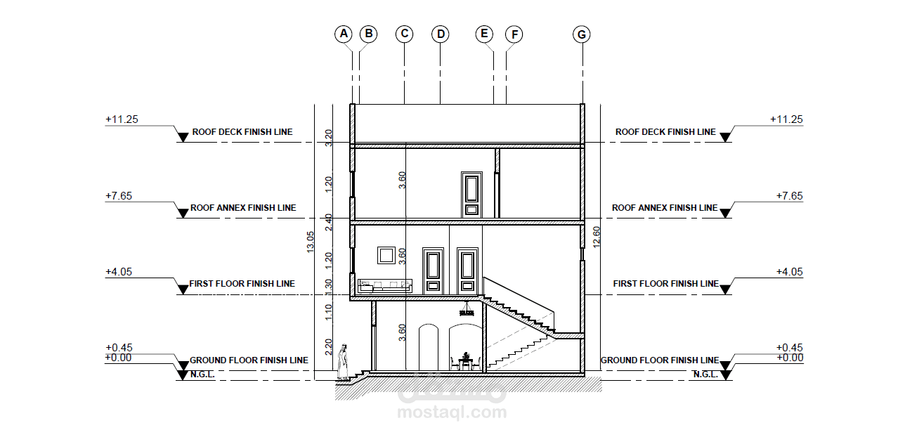
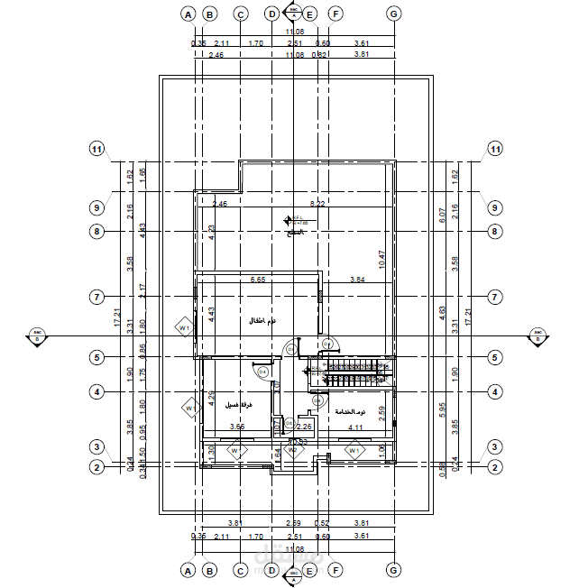
تصميم معماري لفيلا سكنية 2D بالرسومات التنفيذية
تفاصيل العمل
تصميم معماري لفيلا سكنية و العمل علي الرسومات التنفيذية
بطاقة العمل
اسم المستقل
Hanan G.
عدد الإعجابات
0
عدد المشاهدات
8
تاريخ الإضافة
05/08/2025
المهارات
أوتوكاد
تصميم منزل
تصميم معماري
تصميم مخططات معمارية
مخططات فلل
×