الرئيسية
المستقلين
Ahmed E.
معرض الأعمال
اطلب عمل مماثل
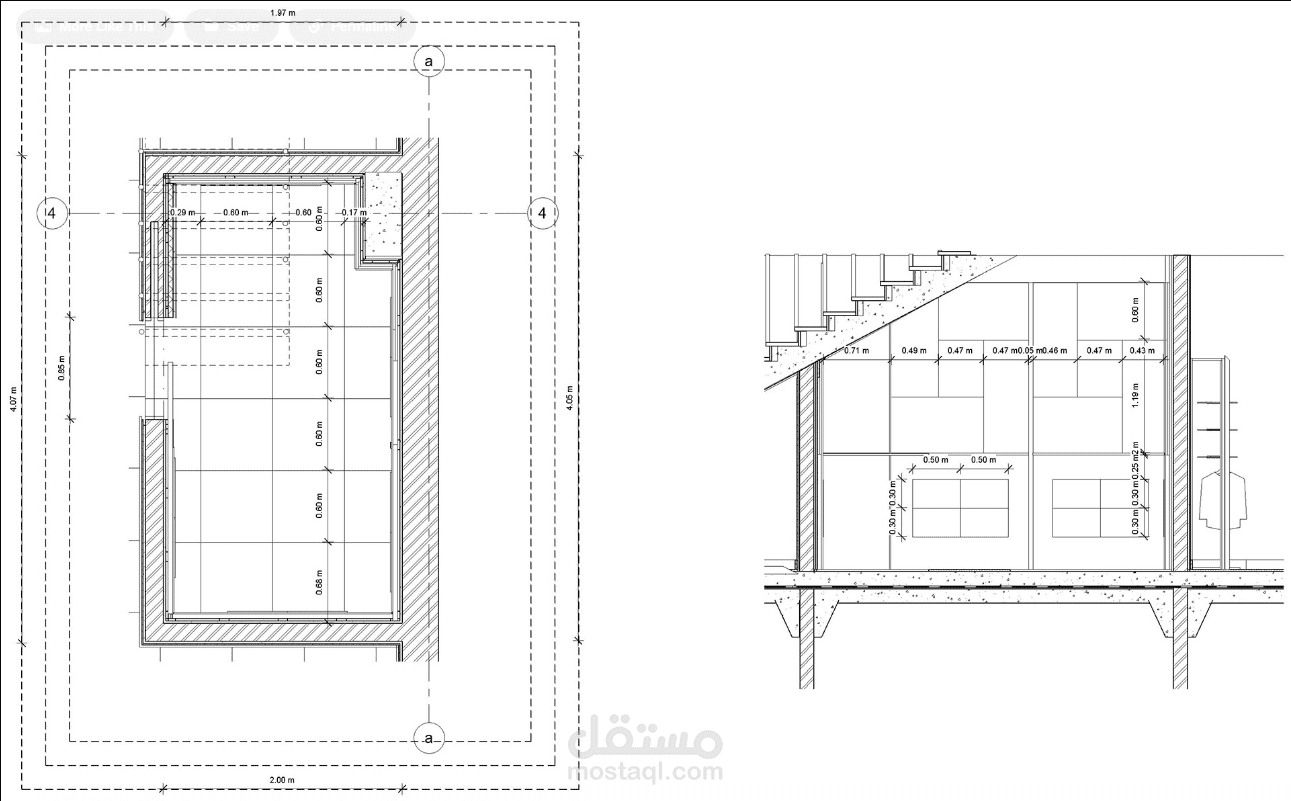
Execution Drawings for Dressing Shop
تفاصيل العمل
Execution Drawings for Dressing Shop Using Revit to make Schedules for the Drawings
بطاقة العمل
اسم المستقل
Ahmed E.
عدد الإعجابات
0
عدد المشاهدات
18
تاريخ الإضافة
25/07/2025
تاريخ الإنجاز
01/02/2023
المهارات
ريفيت
التصميم الإبداعي
×