الرئيسية
المستقلين
محمد م.
معرض الأعمال
اطلب عمل مماثل
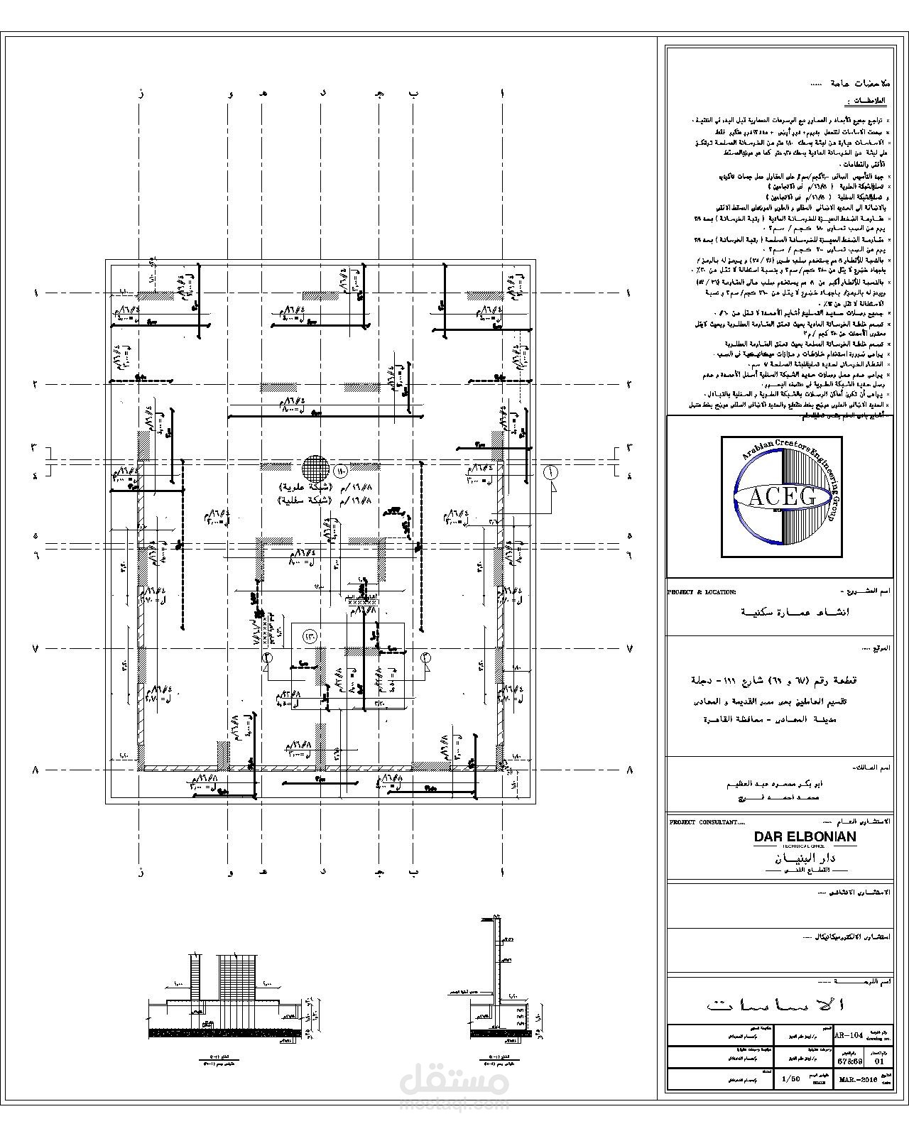
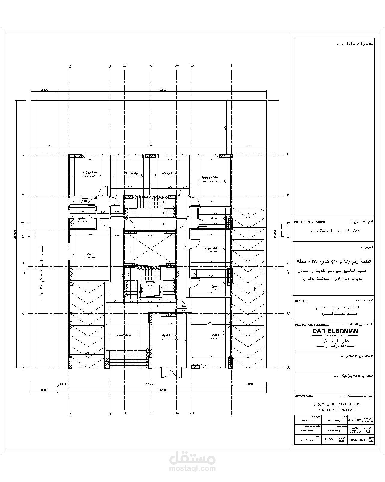
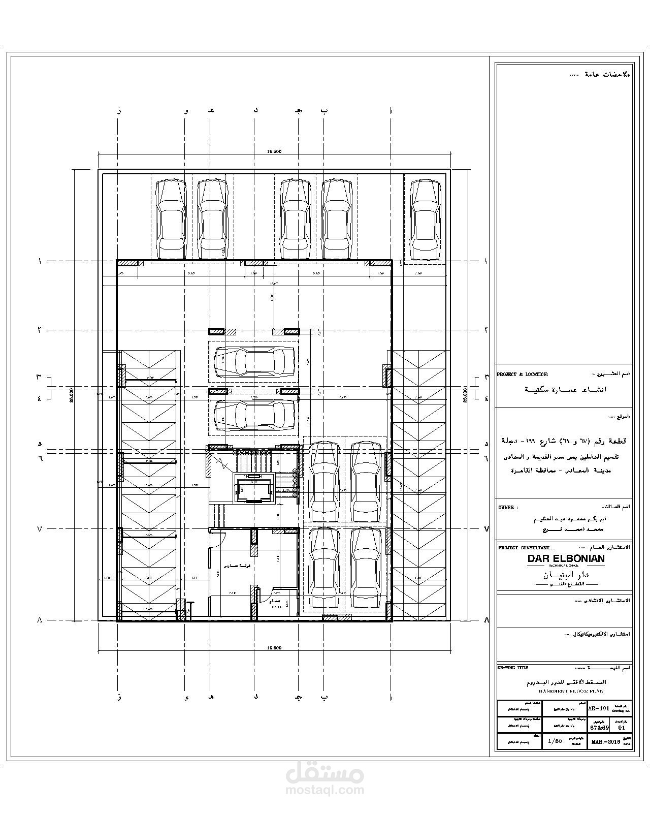
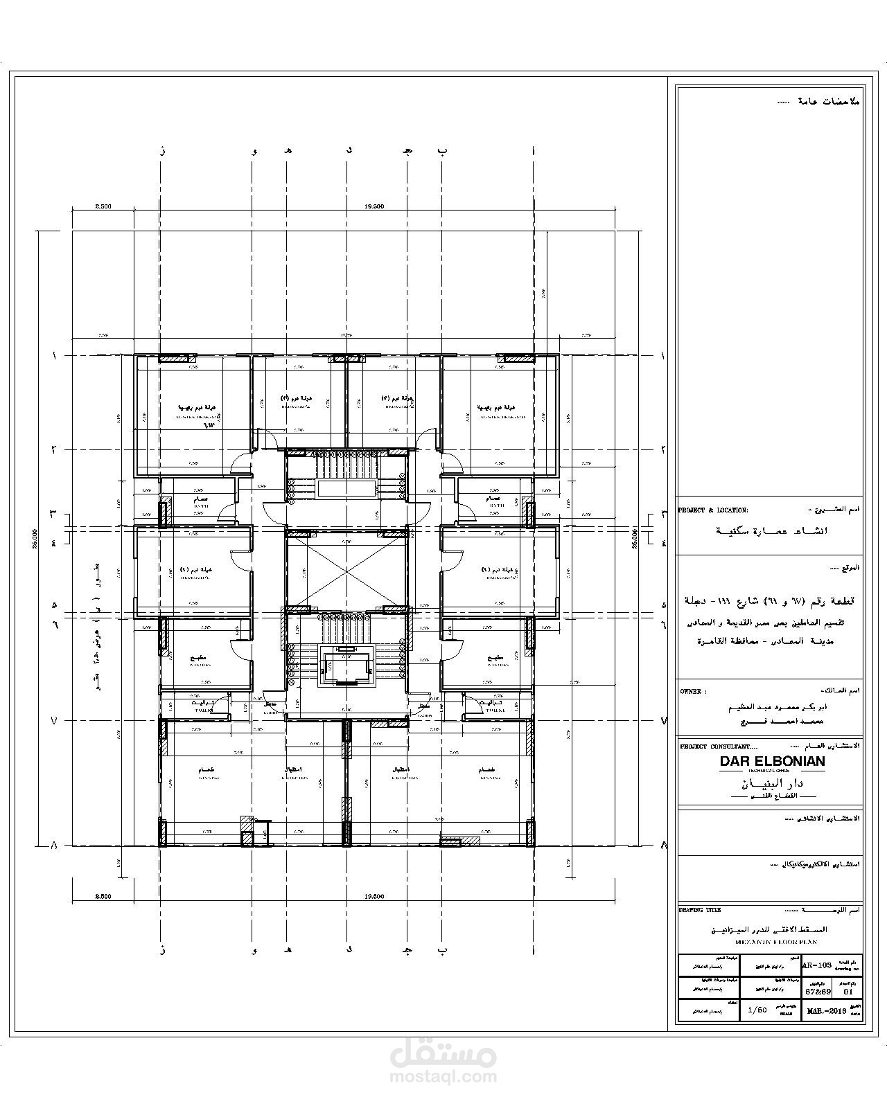
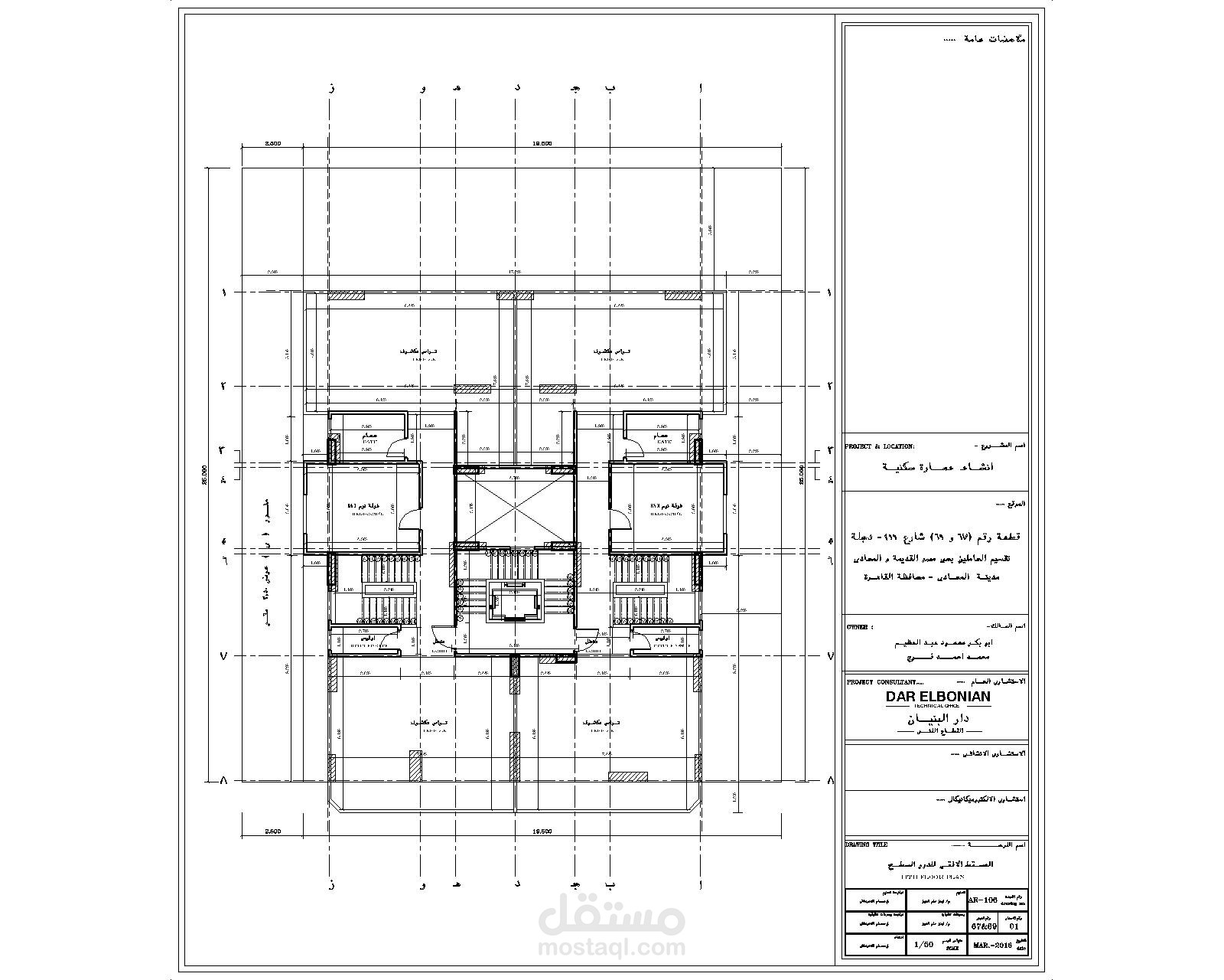
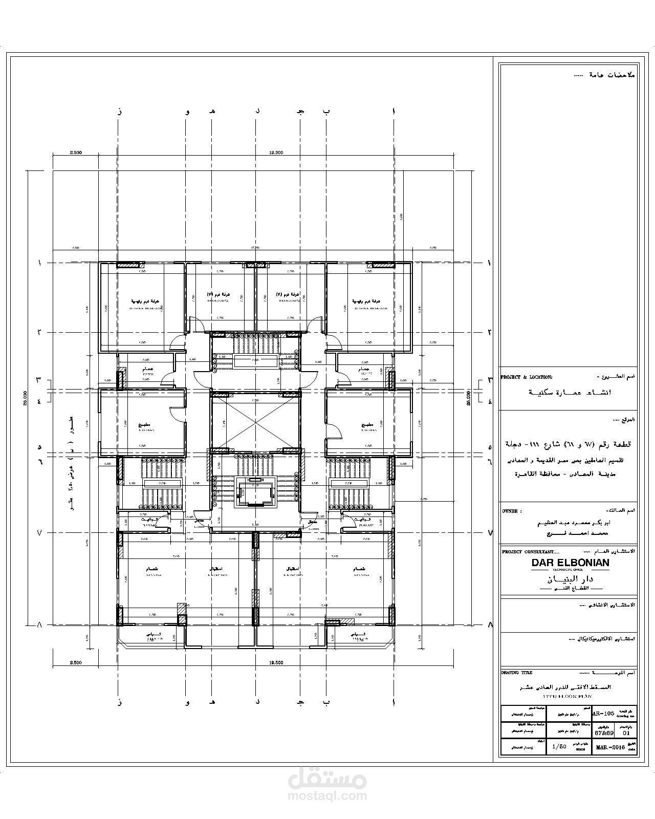
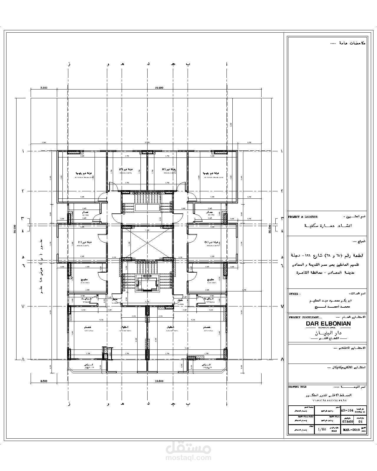
برج دجلة
تفاصيل العمل
تم عمل التصميم الانشائي لبرج 12 دور بمنطقة المعادي
معاينة
بطاقة العمل
اسم المستقل
محمد م.
عدد الإعجابات
0
عدد المشاهدات
116
تاريخ الإضافة
29/05/2019
تاريخ الإنجاز
09/08/2018
المهارات
أوتوكاد
نظام ساب
×