الرئيسية
المستقلين
Ahmed K.
معرض الأعمال
اطلب عمل مماثل
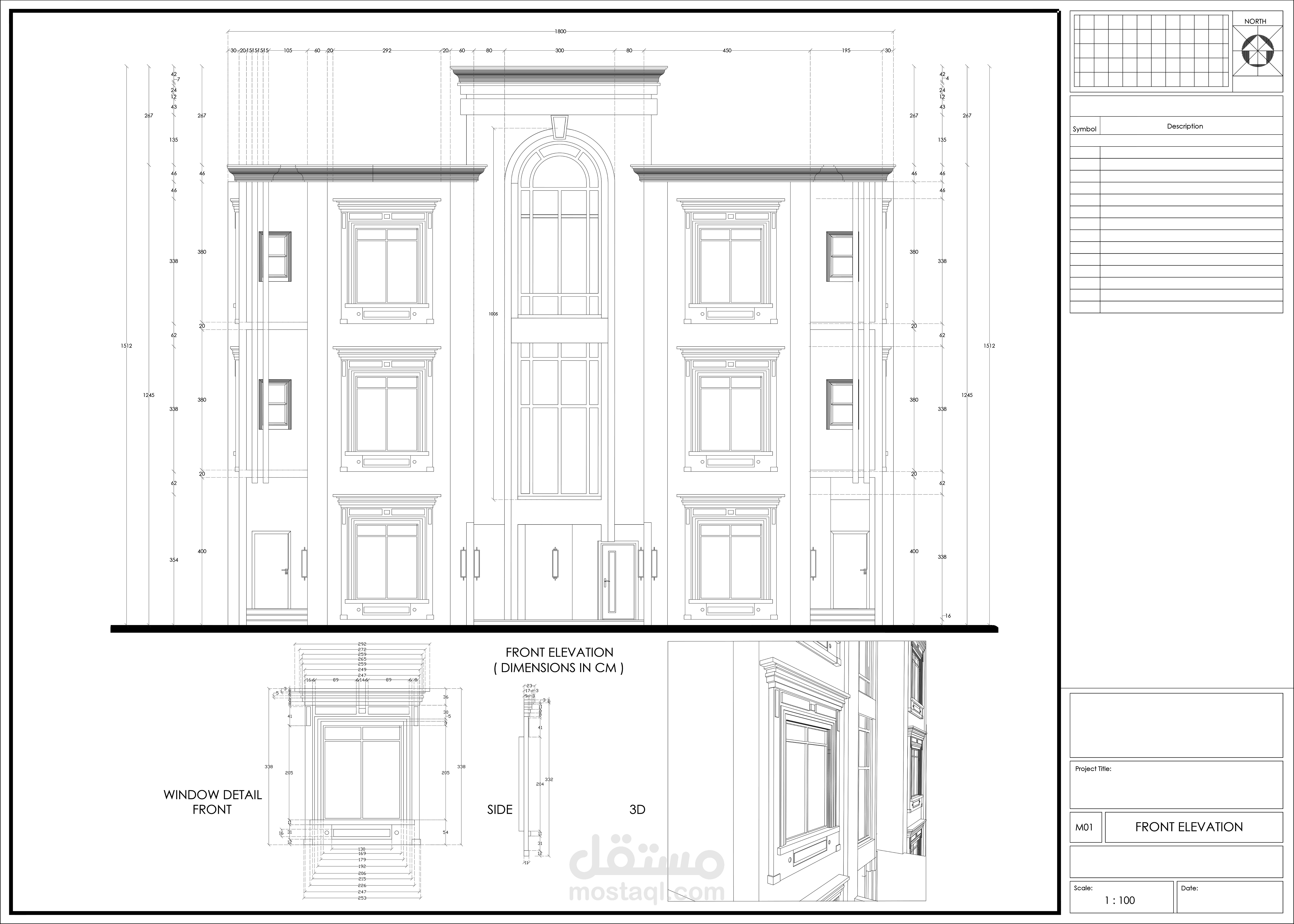
تصميم خارجي سكني
تفاصيل العمل
تصميم خارجي لواجهه فيلا سكني بعد عرض مقترحات بطابع مختلف و تم الاستقرار علي الطابع نيو كلاسيك بسيط
بطاقة العمل
اسم المستقل
Ahmed K.
عدد الإعجابات
0
عدد المشاهدات
35
تاريخ الإضافة
22/06/2025
المهارات
إدارة المشاريع
تصميم 3D
البناء المعماري
الفكرة التصميمية
التصميم الإبداعي
تصميم داخلي
أوتوكاد
تصميم معماري
×