الرئيسية
المستقلين
سلطان ا.
معرض الأعمال
اطلب عمل مماثل
مصنع بريدج
تفاصيل العمل
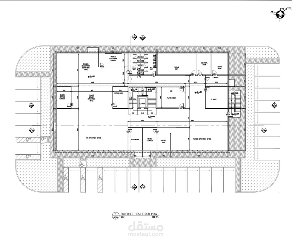
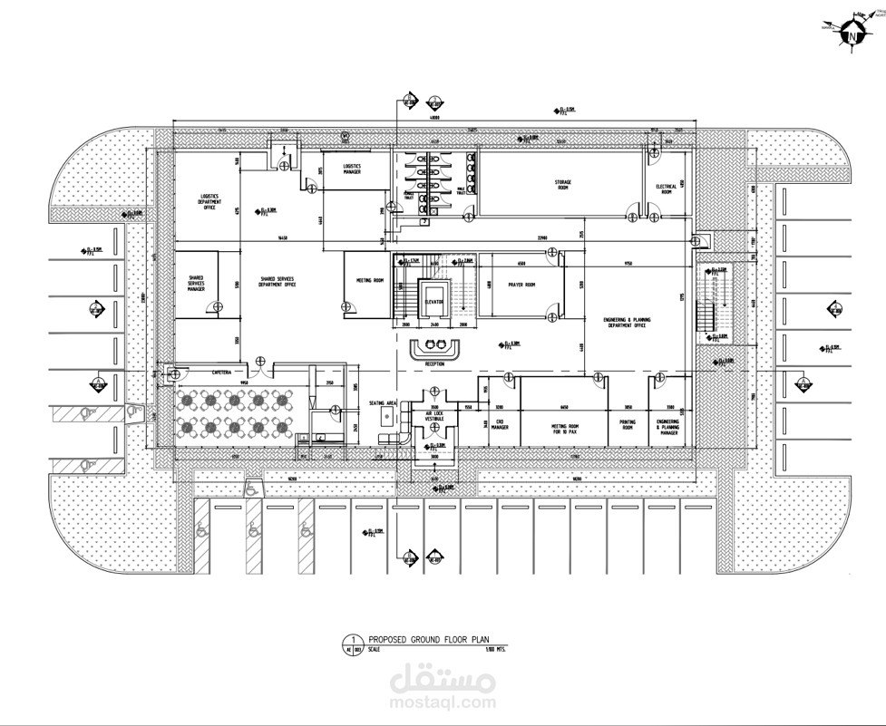
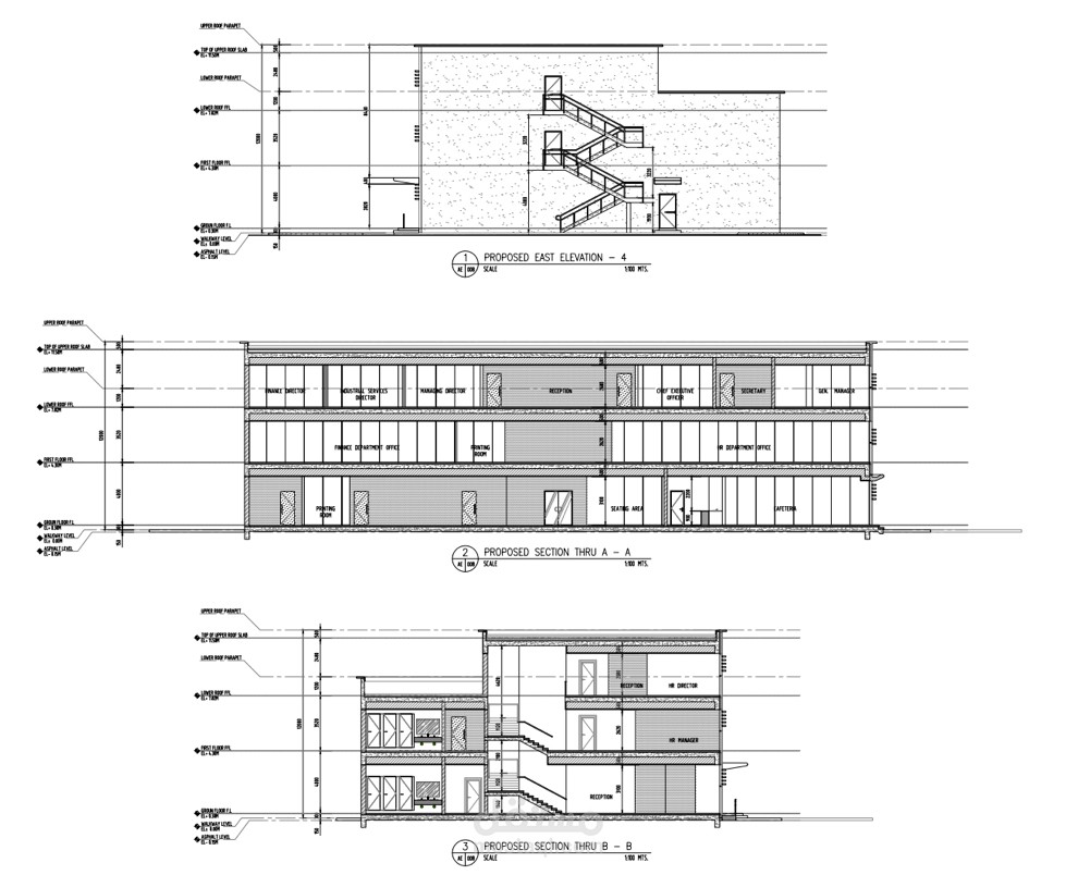
تم العمل على مصنع في مدينة الجبيل الصناعية، من الافكار التصميميه الى الرسومات التنفيذية
بطاقة العمل
اسم المستقل
سلطان ا.
عدد الإعجابات
1
عدد المشاهدات
70
تاريخ الإضافة
07/05/2025
تاريخ الإنجاز
15/05/2024
المهارات
أوتوكاد
تصميم معماري
هندسة معمارية
×