تفاصيل العمل

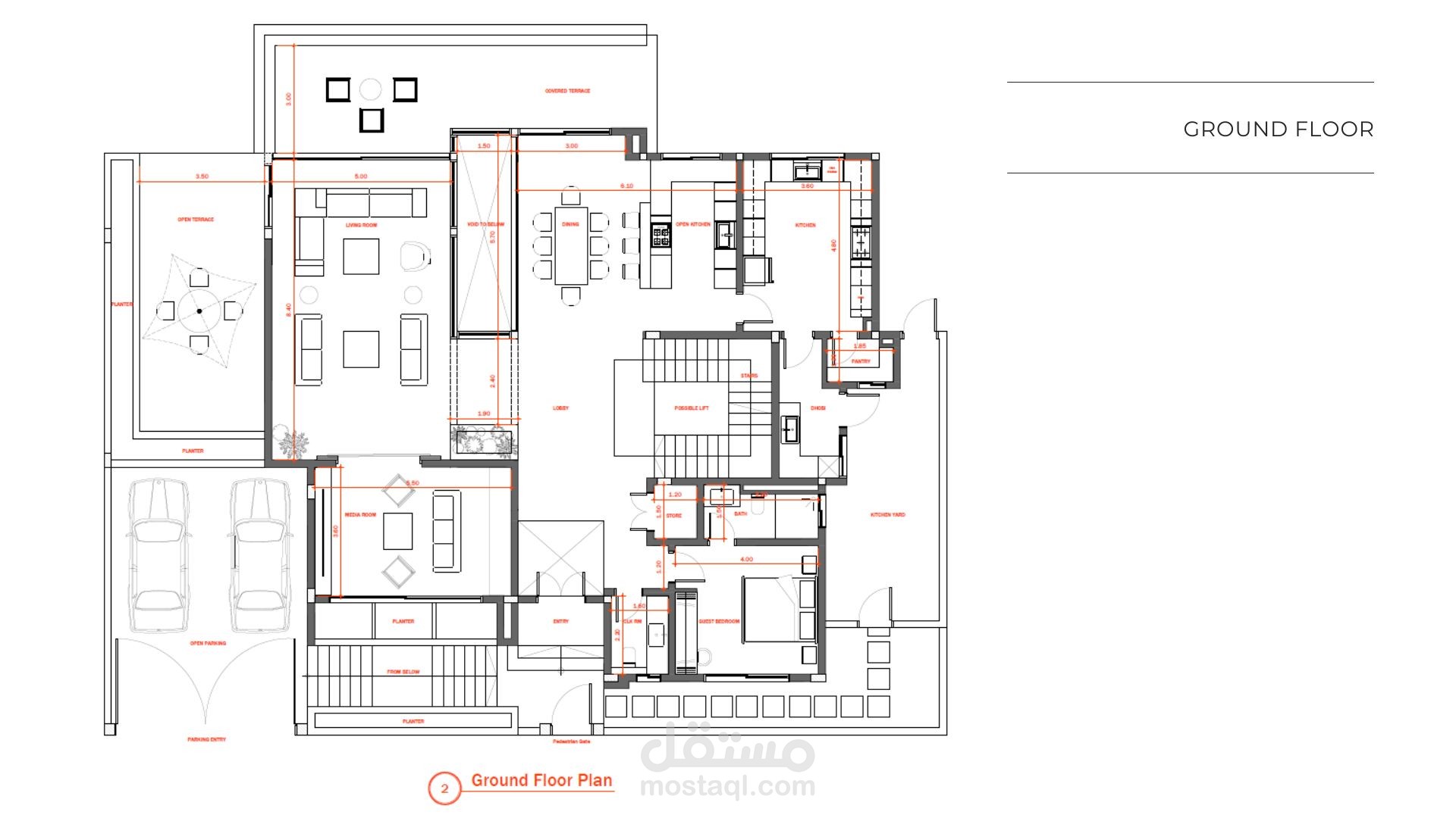
This 2D architectural layout illustrates a villa designed for comfort and functionality. The plan features clearly defined spaces including a main entrance, living and dining areas, kitchen, bathrooms, and multiple bedrooms. The layout ensures smooth circulation, natural light, and a balanced distribution of private and shared areas.

يعرض هذا المخطط المعماري ثنائي الأبعاد تصميم فيلا يتميز بالراحة والوظيفية. يشمل المخطط مساحات محددة بوضوح مثل المدخل الرئيسي، مناطق المعيشة والطعام، المطبخ، الحمامات، وعدة غرف نوم. يراعي التصميم سهولة الحركة داخل الفراغات، والإضاءة الطبيعية، والتوزيع المتوازن بين المناطق الخاصة والمشتركة.

بطاقة العمل

اسم المستقل
عدد الإعجابات
0
عدد المشاهدات
12
تاريخ الإضافة
تاريخ الإنجاز
المهارات