Structural design and drafting of multiple structural elements multiple projects using Robot, AutoCAD and ArmaCAD

تفاصيل العمل

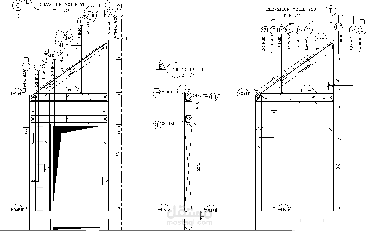
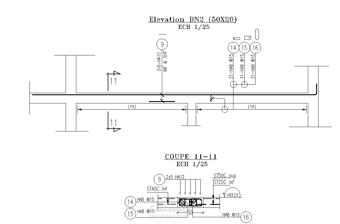
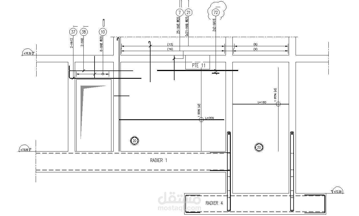
عملت على نمذجة وتحليل وتصميم العناصر الإنشائية لمشروع Juvisy باستخدام Robot Structural Analysis، بالإضافة إلى إعداد الرسومات التنفيذية الدقيقة باستخدام AutoCAD وArmaCAD. شملت الأعمال تصميم الأعمدة، الجدران، البلاطات، والكمرات، مع التركيز على تحقيق التوازن بين السلامة والفعالية الإنشائية.

بطاقة العمل

اسم المستقل
عدد الإعجابات
4
عدد المشاهدات
126
تاريخ الإضافة
تاريخ الإنجاز
المهارات