عمل الرسومات التنفيذية لمستشفى كوم امبو باسوان

تفاصيل العمل

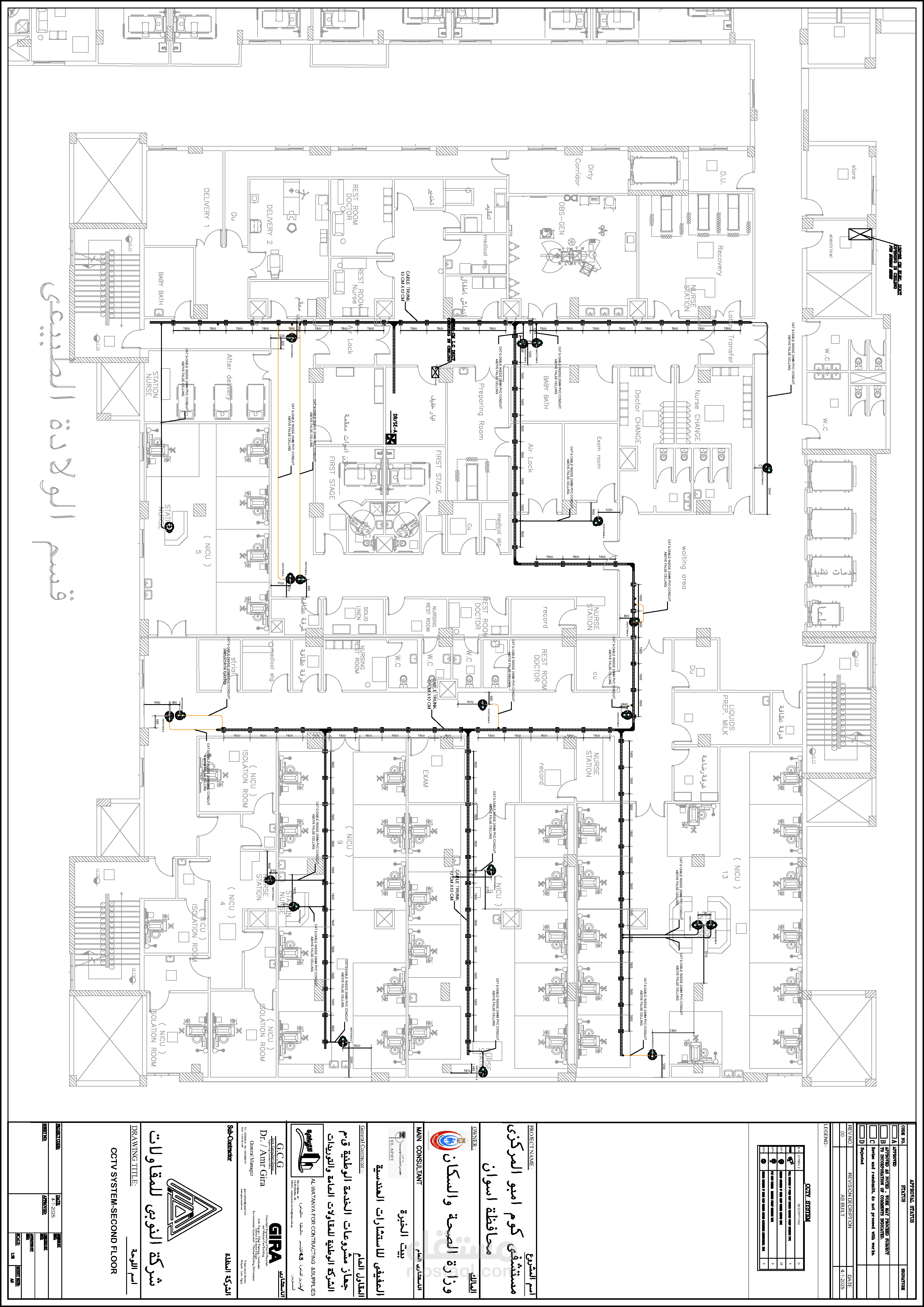
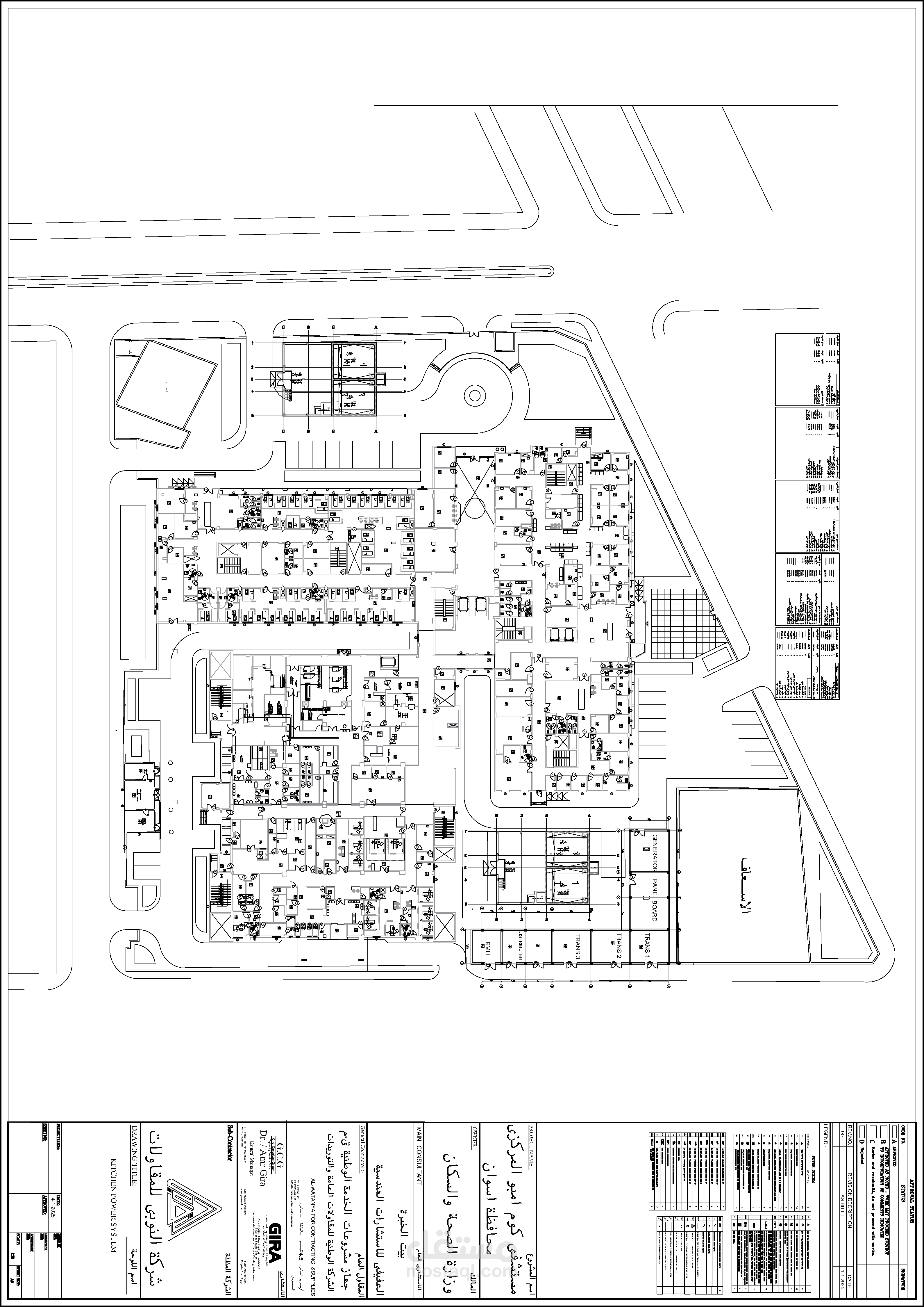
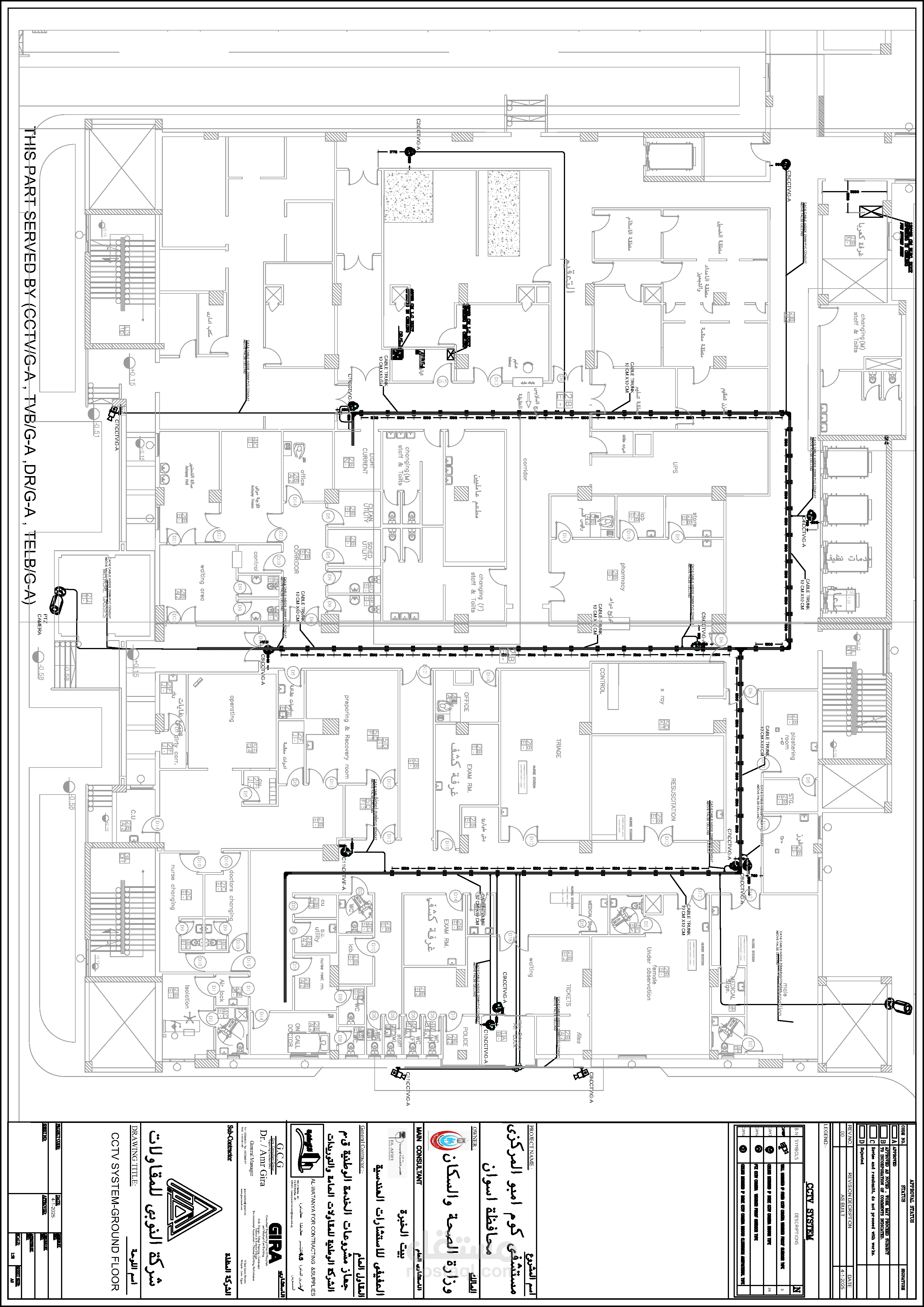
عمل رسومات تنفيذية مستشفى كوم امبو ببرامج الريفت والوتوكاد

عمل مقايسة الاعمال للبنود والبنود المستجدة

عمل load schedule

عمل رسومات الاسبلت

بطاقة العمل

اسم المستقل
عدد الإعجابات
0
عدد المشاهدات
15
تاريخ الإضافة
تاريخ الإنجاز
المهارات